Designed by PAUL CREMOUX studio, The Nirau House foresees the opportunity to use reinterpretation as a consistent creative tool. By mimicking orientation strategy and a very simple functional diagram, the new construction relinks to the notion of history and accustomed-living behavior patterns.
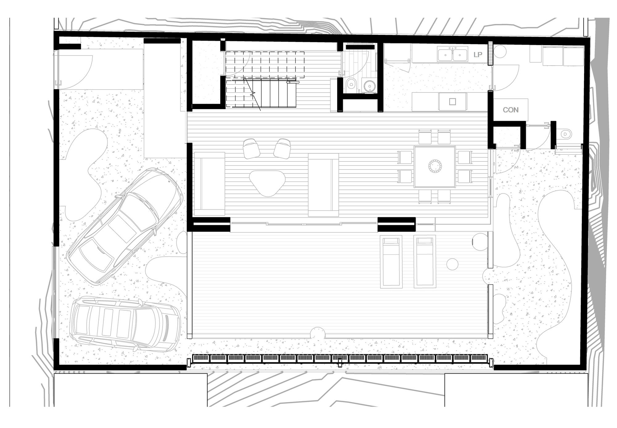
Open space allows direct sunlight to enter from the south side, east and west side are offset inner plot, so the only north side is at the property line. The idea is to transit from a 2,754 sq.ft. Old construction to a 1,937 sq.ft. one, mainly same program, roughly different space quality experience.
Weather analysis helps us to decide various key features: Mexico City climate plays a very important role since 70% of the days per year can be used for outdoor living. The main living-dining area can be completely open into the deck terrace making the relatively small indoor space larger. The deck floor transforms itself into the façade, this is the patio elevation that mostly will be enjoyed at all times.
All rainwater is picked up by the roof and the main terrace, then passes thru two main carbon activated filters and becomes drinking water, so there is almost no water dependency from the grid. By using our performance-based design procedure, we envision a maintenance cost of $15usd per month (electricity consumption and natural gas comprised). We worked with Green Building Studio and Sefaira metrics to achieve energy savings and 2030 challenge (yet to be performance proved).
Project Info:
Architects: PAUL CREMOUX studio
Project Year: 2016
Project Area: 170.0 m2
Manufacturers: CASTEL, ESTEVEZ
Photographs: Paul Cremoux Wanderstok
Constructor: ARCO y PAUL CREMOUX studio
Project Location: Ciudad de México, Mexico
Architect in Charge: Paul Cremoux Wanderstok
Project Name: Nirau House































Tags: ConstructionMexican HouseMexicoNirau HousePaul Cremoux StudioPaul Cremoux WanderstokResidential ArchitectureWood
