Hungary Pavilion | Tamas Levai

Showcased in the 2010 World Expo in Shanghai, Tamas Levai’s design incorporated a plexiglas model of Gömböc (a Hungarian object with two equilibria) within the pavilion structure and concept. Levai took advantage of the objects nature conceptually and represented it through materials he used. This can be experienced through the lighting achieved through use of wooden poles and the reflectivity of the floor surface. The overall atmosphere of the pavilion seems serene, and in my opinion highlighting the one state of equilibrium, when everything is just. According to Levai, the wooden poles (in which lamps are embedded for extra light) double as a musical instrument. They are hung from the supporting framework of the structure and therefore can be interpreted to represent the second form of equilibrium, when there is constant motion.

1251389040 dia 095 inner structure with artificial light

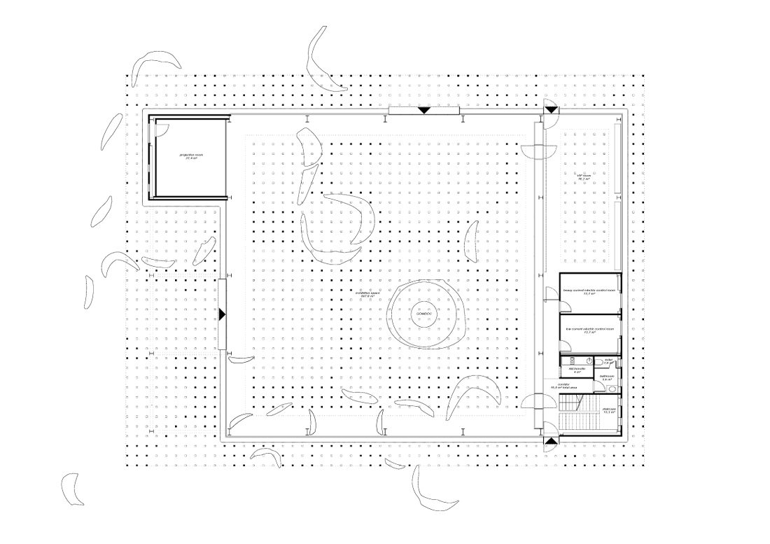
This pavilions aspirational concept is executed well and the thoughtfulness on the material used is appropriate. The concept ties the physical form of the pavilion with the abstract, because it’s evident that the functionality, cultural identity, and the physical appearance respond to the same idealistic cues. For a public space, the Hungarian pavilion looks a little bit private due to its immaculate rendering. It looks like a space where you would go to get away from people, specifically children, expecting to be alone with the contents and your thoughts. This contemplative nature makes me uncertain of the type of programme which one could find in the pavilion. The plan of the pavilion looks deceptively simple, and based on a modular, reminiscent of Mies van der Rohe. Overall, the sophisticated design is an aesthetically pleasing one, along with its calculated geometry found in the section, even though it seems uninviting as a public building.

Thelma Ndebele
Show full profile Thelma Ndebele

Thelma Ndebele is an editor at Arch2O and a part-time lecturer at the University of Johannesburg. With a background in architecture and critical spatial research, Thelma’s academic work explores the intersections of urbanism, cultural identity, and public space. Their editorial contributions reflect a commitment to unpacking the socio-political dimensions of architecture, especially within African urban contexts. Through both teaching and writing, Thelma engages with emerging discourse on inclusive design, making them a thoughtful and vital voice in Arch2O’s academic and editorial landscape.

Arch2O.com
Logo