Xu Wei Art Museum and Qingteng Square | UAD – ACRC
Xu Wei Art Museum and Qingteng Square stand as integral components of our project in Shaoxing Ancient City, playing a pivotal role in the urban renewal initiative “Seeing Qingteng Again.” These spaces, serving as the primary venue for the “500th Anniversary of Xu Wei’s Birth and the Opening Ceremony of Xu Wei’s Hometown,” were officially inaugurated in May 2021.
The conceptual framework for the Xu Wei Art Museum emerged during the initial site survey, drawing inspiration from the architectural and landscaping elements of Qingteng Bookstore. The aim was to introduce a novel spatial language, fostering a connection with the surrounding built environment dominated by traditional small-scale dwellings. This approach sought to address the contemporary requirements of expansive exhibition spaces while engaging in a discourse on the interplay between “modernity and historical context” within the context of the ancient city’s renewal.
Xu Wei Art Museum’s Design Concept
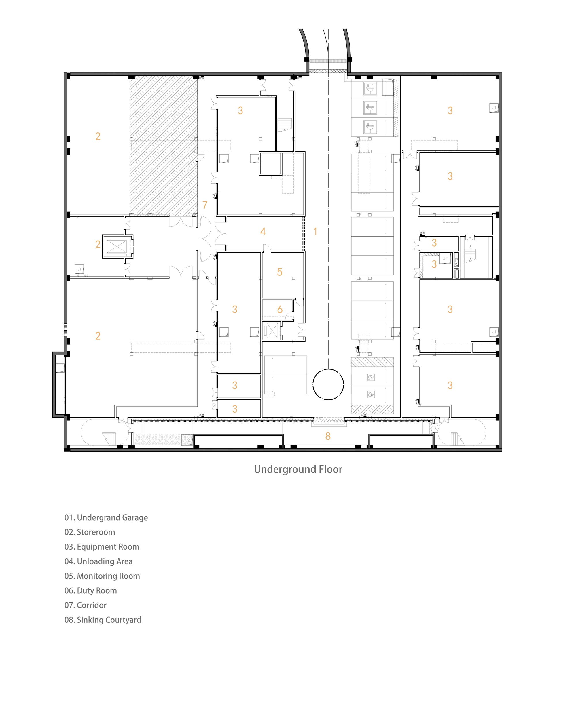
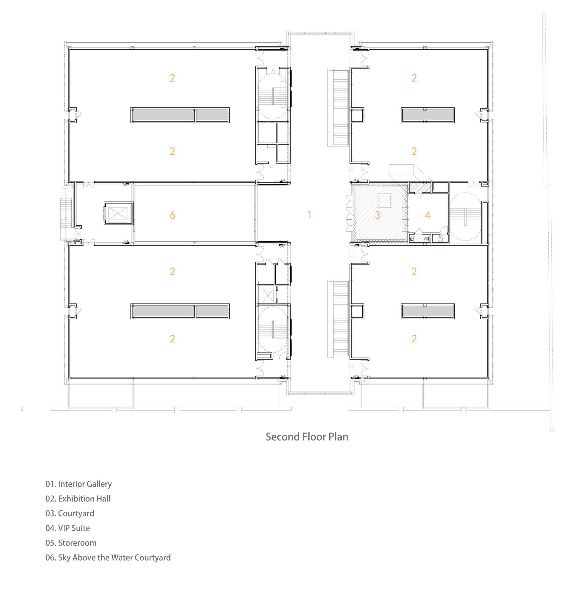
The Xu Wei Art Museum, nestled amidst the former Shaoxing Machine Tool Plant, draws inspiration from the expansive layout of the old plant. Utilizing the construction logic of “longitudinal five-entry and horizontal three-fold unequal herringbone slope modeling,” the design unfolds with two primary exhibition spaces on the east and west sides, bridged by a middle floor that spans two levels. The ground floor acts as a north-to-south foyer, housing shared spaces like the hall and a temporary lecture hall. This arrangement forms a seamless transfer hub connecting exhibition halls on both sides.
Adding a touch of tranquility, we incorporated internal courtyards on varying flat floors on the east and west sides. This thoughtful design effectively divides the exhibition hall’s spatial volumes and elevates indoor permeability. The lush gardening concept, featuring rocks and waterfalls nestled in greenery, offers visitors diverse opportunities for both contemplation and leisure beyond the realm of exhibitions.
Balancing tradition and modernity, the contemporary expression of Shaoxing’s traditional style extends beyond spatial treatments to meticulous material choices. A harmonious blend of elements, such as black metal textures tracing the roof along the herringbone slope, white granite solid walls in the north-south direction above the second floor, and unitized textures on the first floor, showcases a thoughtful interplay of colors and textures. The deliberate use of black, white, and gray tones, local blank spaces, and the positive three-fold herringbone slope contour line collectively craft a contemporary landscape intention resonating with Shaoxing’s distinctive aesthetic.
Preserving a touch of history, the old walls at the east and north ends of the Machine Tool Plant stand as a testament to time’s passage. A deliberate contrast emerges with the contemporary design featuring fully transparent glass curtain walls and elegant white stone plates in the Xu Wei Art Museum. This intentional juxtaposition creates a captivating tension within the spatial narrative, where the echoes of the past harmonize with the modern aesthetic, inviting visitors to traverse the juncture of old and new.
Qingteng Square gracefully interconnects the Northern Xu Wei Art Museum with the southern Qingteng Bookstore, crafting a welcoming frontcourt ambiance on the southern expanse of the site. Beyond its aesthetic role, the square doubles as the Visitor Center, efficiently managing crowd distribution. Embracing the design continuity of the Xu Wei Art Museum, the Square elegantly “lifts up” two herringbone slopes on its east and west flanks. The west side delicately encloses the Square, while the east side rises slightly higher, cleverly concealing the Visitor Center’s volume beneath the herringbone slopes through strategic local sinking.
The Square is artfully adorned with dark stone paving, while the west side weaves a serene water feature into the landscape, enhancing its visual appeal. An iconic “Xu Wei Statue” takes center stage on the Xu Wei Art Museum’s southwest side, strategically positioned at the slope’s northeast edge. This statue not only becomes the Square’s focal point but also serves as a captivating vista for the Xu Wei Art Museum. Moreover, the east slope introduces a step-like arrangement, ingeniously transforming into an open-air auditorium—providing a fitting space for congregation and interaction.
Additionally, through the strategic application of the “viewpoint transformation” spatial technique, a dynamic narrative of “continuous bedding” unfolds. This technique leverages viewpoints’ perpetual shift and evolution to craft a seamless and harmonious experience. The result is a unified and comprehensive spatial encounter, fostering the integration of architecture and landscape at both visual and psychological levels—embracing the essence of the renowned Jiangnan landscape spirit.
Our design of Xu Wei Art Museum endeavors to articulate a perspective amid the rising discourse on urban renewal and preserving ancient cities. We aim to explore how contemporary public art spaces can dynamically intersect with the cultural fabric of the ancient city, seamlessly integrate into the daily lives of its citizens, and contribute to the foundational reconstruction and future vision of a “modern traditional community.” Our aspiration is to enhance the living space in the region, injecting it with renewed vitality and elevating its residents’ overall quality of life.
In the footsteps of Mr. Xu Wei, a calligraphy maestro, our endeavor echoes his mastery. Armed with nothing more than a writing brush and ink, we embark on crafting a vast, fantastical landscape—an architectural realm that straddles the line between the extraordinary and the accessible, a space both tangible and imaginative, open to the ordinary individual.
Project Info:
Architects: UAD – ACRC
Area: 8504 m²
Year: 2021
Photographs: Jonathan Leijonhufvud, Fang Jia, Lanlan Jiang, Chenfan Zhang
Lead Architects: Huifeng Hu
Design Team: Huifeng Hu, Lanlan Jiang, Chenfan Zhang, Lifan Han, Jinyun Zhu, Pengfei Li
Structure Design: Jie Zhang, Xu Chen, Junfeng Lv, Ziwen Ding, Zeping Shen, Xiaodong Chen
Water: Jiasong Yi, Yuran Shao
Hvac Design: Dahong Pan, Yongmei Li
Electrical Design Team: Wei Zhang, Liang Yu, Zhizhi Du
Weak Current Detail Design: Hua Lin, Minjie Ye, Guozhong Yang
Landscape Design: Weiling Wu, Jietao Wang, Di Wu, Jing Zhu, Dandan Ao, Ying He, Teng Lin
Interior Design: Ran Chu, Wanlin Liu, Junzheng Wang, Wenbin Mei
City: Shaoxing
Country: China




















































