Parkrand
The garden communities that were built in the Geuzenveld-Slotermeer suburbs of western Amsterdam in the 1950’s and 1960’s were typically neighborhoods of small houses or minimalist 4-story slabs. The challenge for planners in recent years was how to maintain the garden city qualities of these communities while building better dwellings at increased densities. Parkrand (park edge), because of its location overlooking Eendrachts park, one of the major parks of western Amsterdam, is an example of the new housing being built in this part of the city.
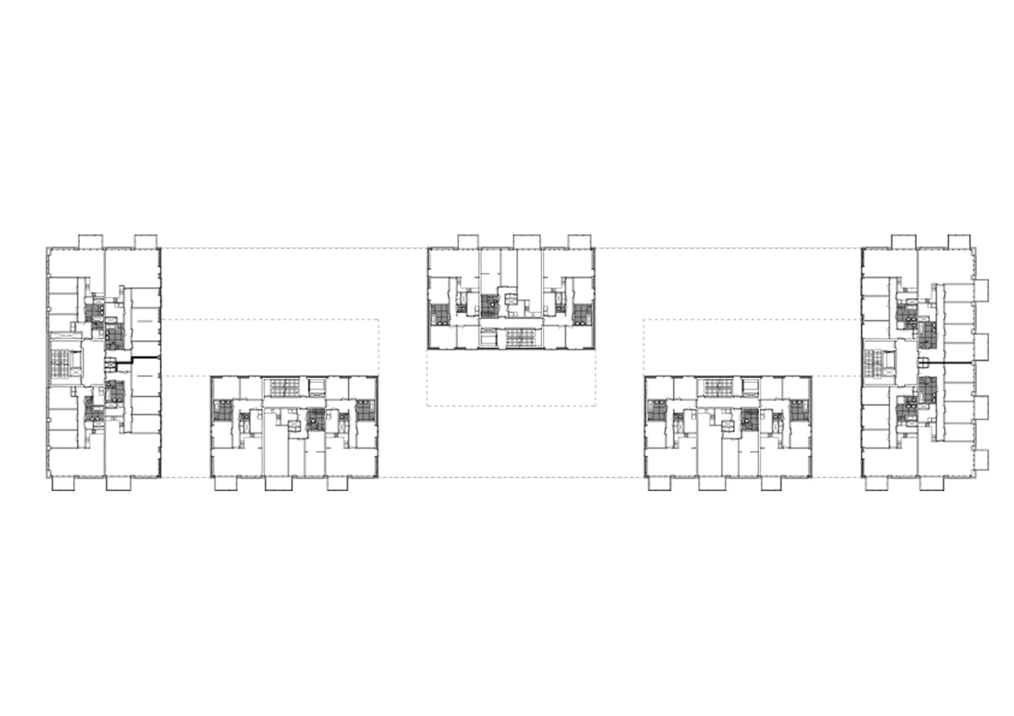
Three, ell-shaped, 4-story ‘zeilenbau‘ from the 1950’s were replaced with a giant free-standing block, 12 floors high, 34 meters wide and 134 meters long containing 224 apartments or about twice the number in the existing buildings. The new building helps to define the edge of the park but also occupies less area so that the area of the park has increased and a much more formal relationship created between the building and the landscaped open space to the west. The building sets back along the sides and front forming a large paved area along the street that is used for parking and the entrance to the building at this floor.
“How do you make a building that is both open and connecting and at the same time housing a lot of apartments?” asks van Rijs. “That was part of the plan, to make kind of one big block of, let’s say, 225 units with one door and a collective interior space with views to the green. So the scale of the building relates to the scale of the park – it’s like a big mansion“.
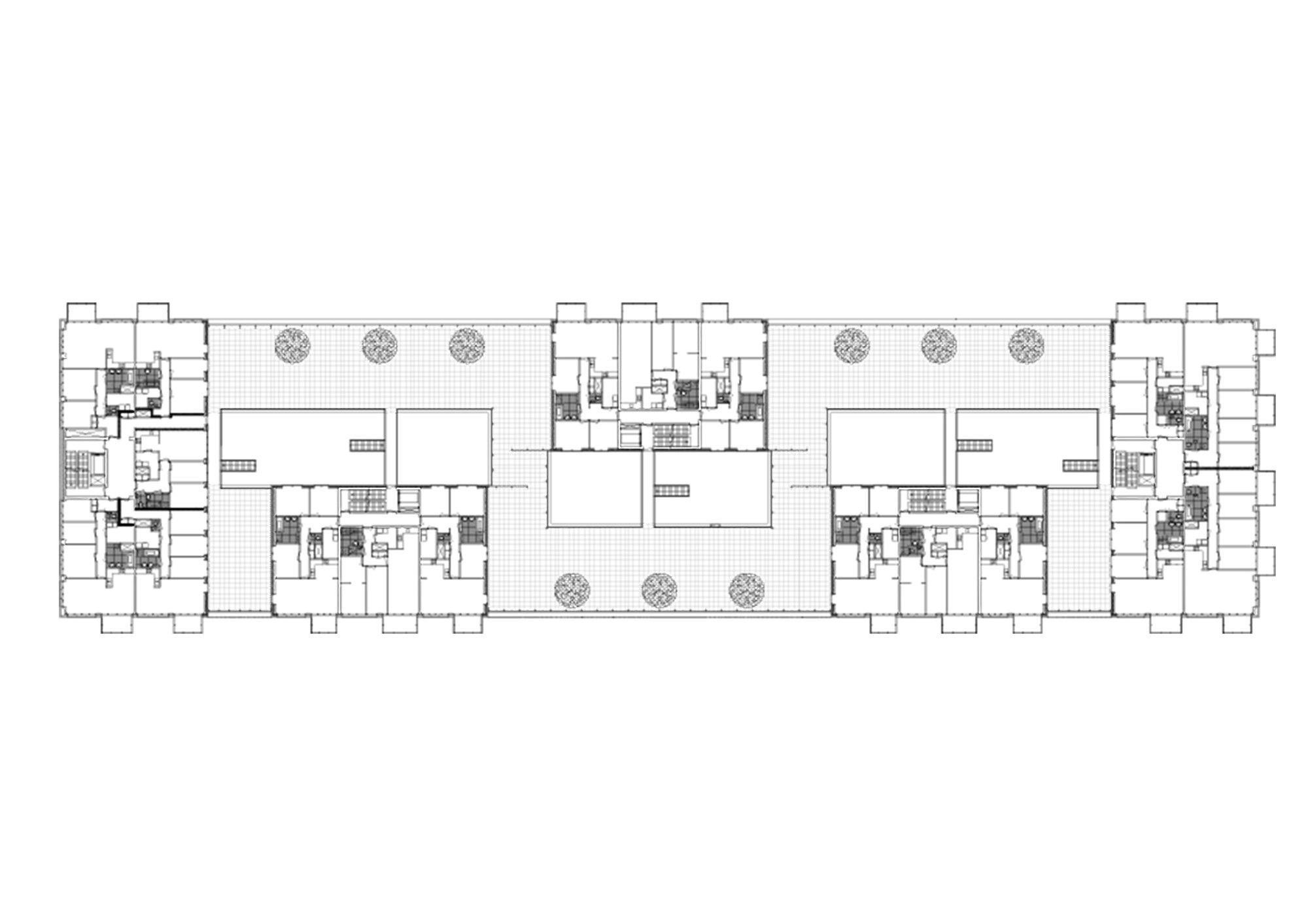
The program includes five towers that are sandwiched between a large, raised communal patio and a series of rooftop penthouses. This creates an open and airy block, and offers different views from all directions. The semi-public patio is raised so that it overlooks the park. The towers are positioned in such a way that they do not block views from the neighbourhood to the park. They also allow all of the apartments a view to the park and an orientation to the sun. This is achieved by perforating the roof plate in three places.
The perforations are repeated at the ground floor, forming two courtyards that offer light, view and access to the apartments on the first level. With these techniques, the Parkrand building adds both more ‘garden’ and more ‘city’ to the developing Western Garden Cities of Amsterdam. It continues in the optimistic architectural tradition that characterizes the history of these neighborhood.
Project Info:
Location: Amsterdam, The Netherlands
Area: 35000 m²
Year: 2006
Photographs: Rob ‘t Hart
Manufacturers: Koninklijke Tichelaar
Building Physics: Cauberg Huygen
Services: Cauberg Huygen
Structure: Pieters Bouwtechniek
Partners In Charge: Winy Maas, Jacob van Rijs, Nathalie de Vries
Proyect Team: Sandor Naus, Marc Joubert, Anet Schurink, Jeroen Zuidgeest, Marin Kulas, Sven Thorissen, Joanna Gasparski, Jaap van Dijk, Gabriella Bojalil, Arjan Harbers
Facilitary Office: W.M.B.
Delft Nl: Jan Versteegen
Face Brick Stone Collaborator: Royal Tichelaar Makkum NL
Outdoor Design: Richard Hutten, Rotterdam NL
Interior Design: Richard Hutten, Rotterdam NL
Graphic Design Signage: Thonik
Budget: EUR 28.5 Million































