Microsoft Headquarters Germany | HPP Architects

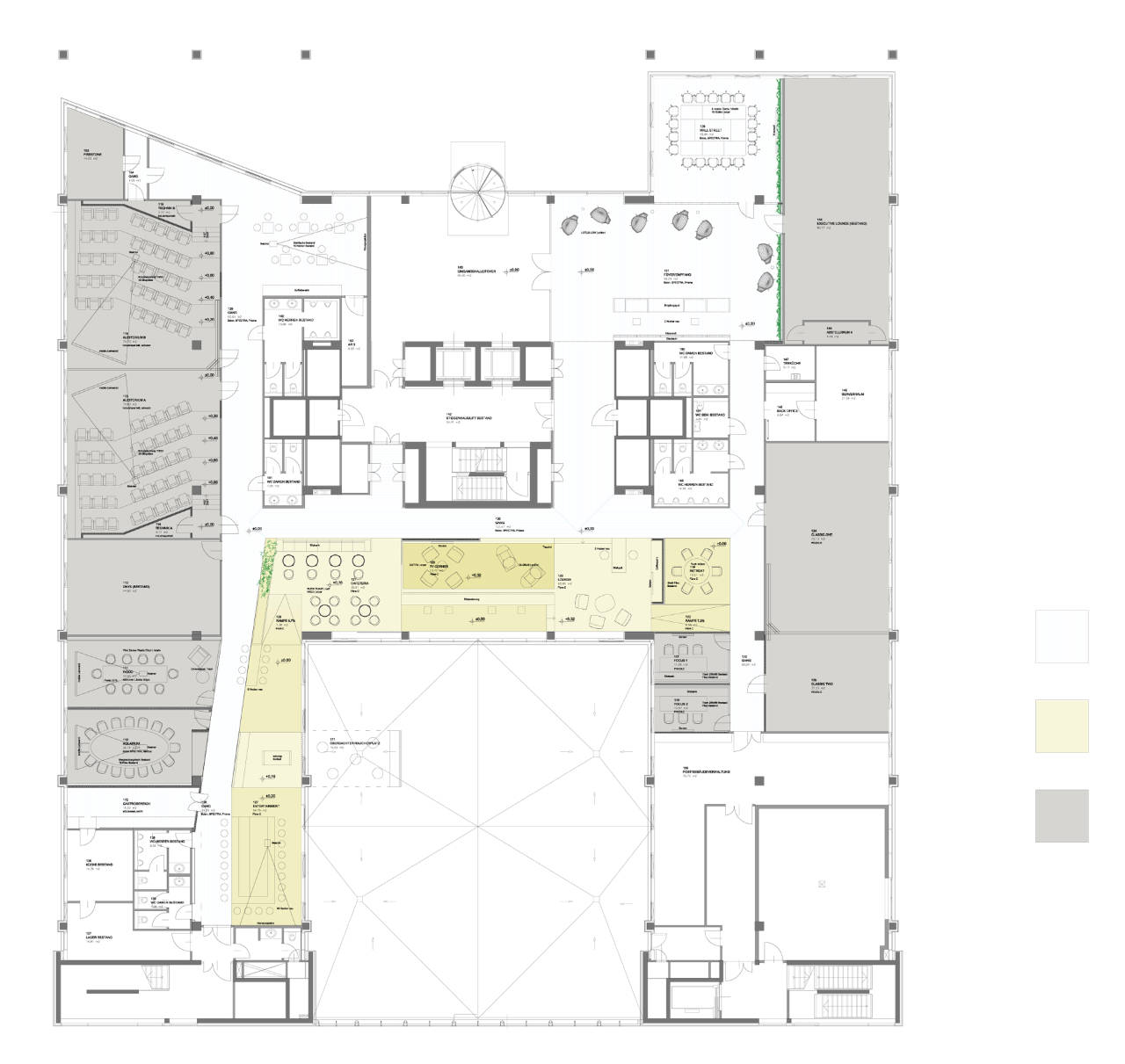
Optimal working conditions, sustainable use of the building and an attractive environment are at the center of the design for the new corporate Microsoft Headquarters Germany in the Schwabing district of Munich. HPP Architects have been commissioned to provide the spatial planning and interior design for the workplace of the future in the “Office with Windows” building, which extends across 26,000 square meters and seven floors.

See Also:

The Design of The Microsoft Headquarters:

Microsoft chose a design based on a study carried out by HPP for the project development in the Schwabing area. HPP was subsequently commissioned to provide the conception and design of the work environments. The main focus of the planning and construction process for the new offices is on modern working conditions and sustainable building design.

photography by © Paul Ott

Where is The Headquarters of Microsoft?

It is in Munich Schwabing, Germany.

Project Info:
Architects: HPP Architects
Area: 29,765 m²
Project Year: 2016
Photographs: Bodo Mertoglu
Project Name: Microsoft Headquarters Germany

HPP Architects
Arch2O.com
Logo
Send this to a friend