TANN House | AOMO
TANN House
This new house is an addition to existing family house designed by a famous architect firm in 70-80’s, Rifenberg and Rirkrit Architects over 40 years ago. One of their well-known works is Baan Kai mook in Huahin and Chidlom Place along with a great number of private hi-end residences in Sukhumvit area. The house design is modernly clean with simple building form that looks as modern as it is today.
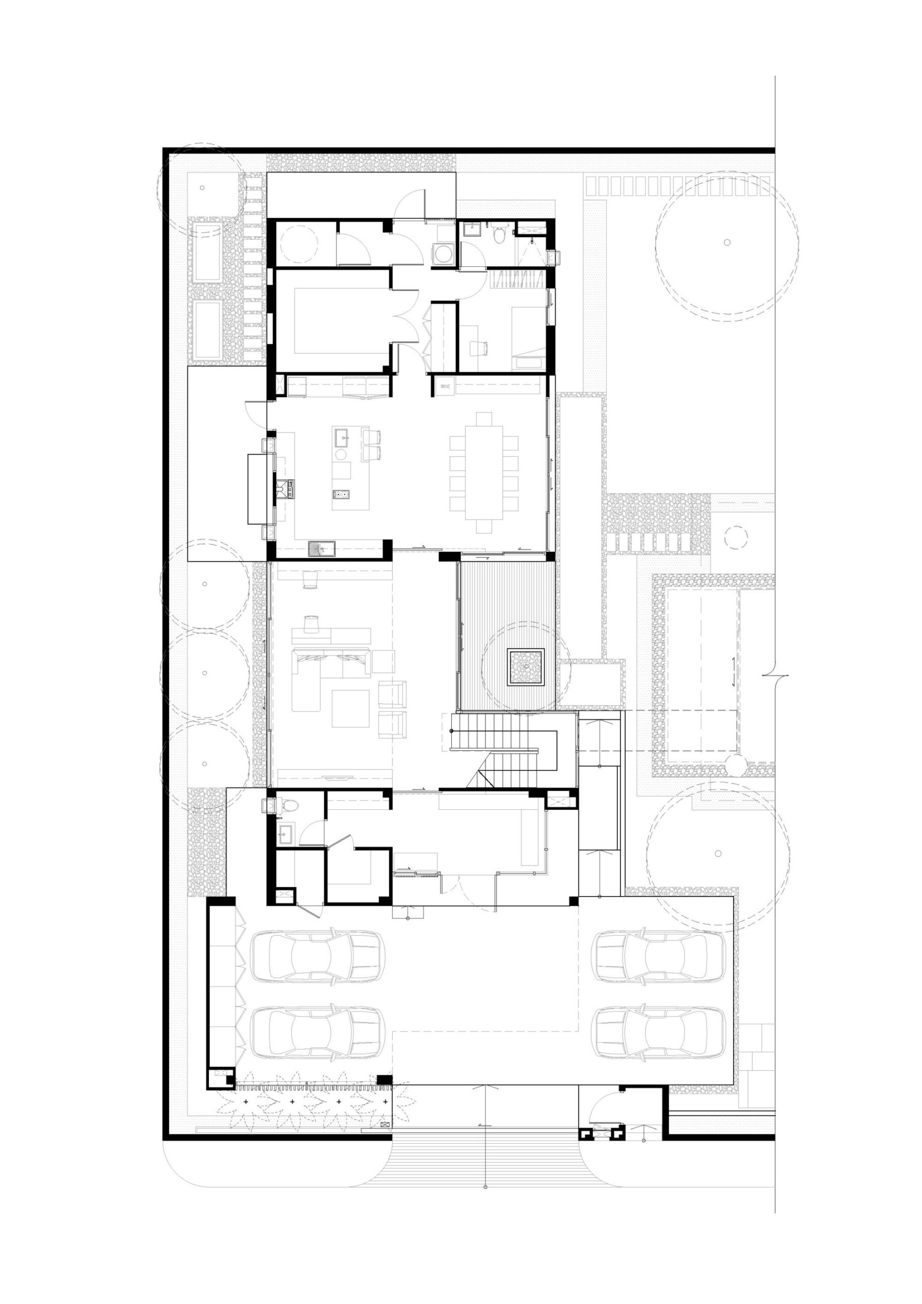
The time has passed and the family has grown. It is the time to extend the house. The family loves the existing house so much and initially didn’t want to build a new house in the same plot. At first, they want to build a new house in another site nearby but the families would be totally separated. We got a chance to work with the family and try to come up with a design solution to coexist with the existing house. With a respectful layout, we managed to place a new house centered with the existing house, so it is connected to the existing house functionally and visually.
It is not typical for us to design a boxed shape houses but this is the owner choice to have something different from the existing. A challenge is to make the house as modern and yet not to undermine the past.
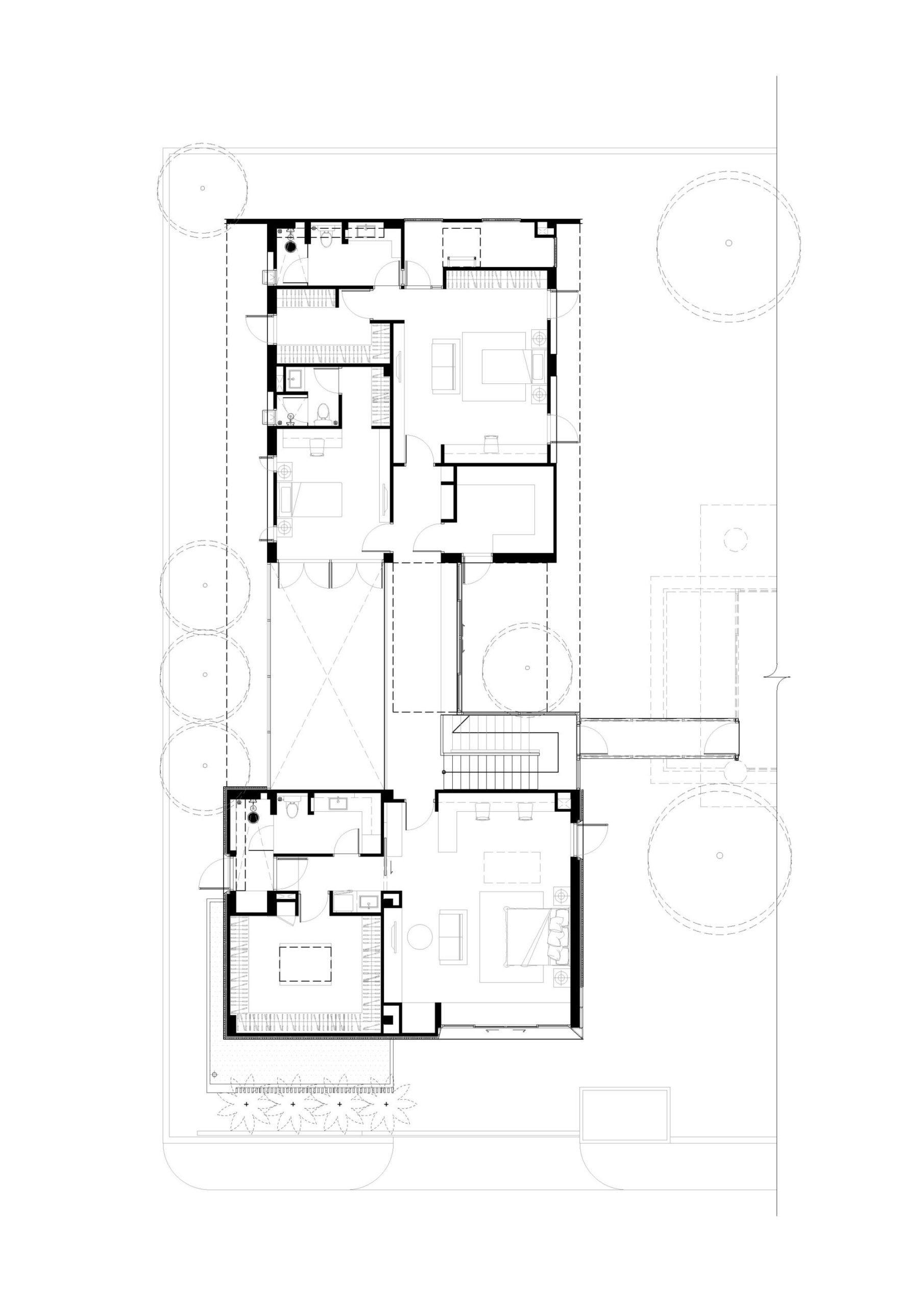
Despite a simple rectangular box-like masses, we create a recessed courtyard facing the existing house that opens up the new house living area to connect to the old house visually and physically. This creates a conversation between the two houses. The connection is designed to be located at the stair landing to allow some flexibility or level changes and also as a meaningful transition of the houses (a passage through time). The bridge was designed as transparent as possible and yet the least modification to the existing house. Only one window panel from existing house was removed to create the connection.
The house plan is very simple and straight forward. The building form is to be modest and simple to be different and yet to be humble. Building color scheme is a monotone or muted color, mostly off white color to make the house more intimate. The interior of the house is simple with clean details, so it will last through the time. There are a great amount of wall cabinets for storages as a big design criteria from the owner, so the cabinet works are integrated into the house through-out the house. Light is another factor of the house. Skylights are introduced to the new house which carried on from the existing house to give the spaces a bright as possible. The skylights are used in living space, restroom, and walk-in closet.
A least maintenance is also another requirement from the owner, so the walls on ground level are cladded with wall tiles and with aluminum façade on upper level to give a free maintenance as requested. Aluminum typical sections are arranged carefully to give a unique character to the house that is still warm and not too modernized. We used the pattern from typical timber house details but make out of aluminum boxes.
It is our honor to design the house next to the legendary architects. It would be another modest modern house that co-exists with the tropical modern home.
Project Info:
Architects: AOMO
Location: Khet Bang Phlat, Thailand
Area: 560 m²
Project Year: 2019
Photographs: DOF Sky|Ground
Manufacturers: APS/ Aluminium Perfect System, GL&R



























