Performing Arts Studio of the National Theatre of Korea| Archiplan

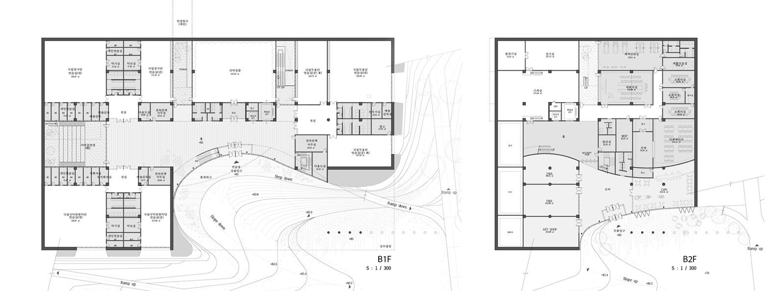
Performing Arts Studio of the National Theatre of Korea Archiplan, National Theatre of Korea in the Jangchung district of Seoul, Korea has to be extended to accommodate practice facilities for performers at the theatre. The proposal from Archiplan stands second in the design competition for this. The architects studied the local context of the Theatre and created a unique proposal. Located at the foot of Nam San (Nam mountains) the theatre has been constructed over an artificially cut and filled up ground.

3 mail interior view

Courtesy of Archiplan

The landscape does not follow the topography around. It is disconnected from its surroundings as it does not follow the natural slope and instead, has a retaining wall along the edge of the main road. Along with the Theatre is Nam San, a number of Universities, cultural facilities, parks and hotels, a shopping district and thus the area is crowded with youth. Yet, the place does not have a strong cultural complex to attract all these diverse groups of people.

7 view at the resting deck space

Courtesy of Archiplan

The architects proposed that the boundary and retaining wall be broken down, such that the entry and access to the building be lowered and the new extension is built along the natural slope. This initiative by Archiplan dares to transform the identity of the entire expanse. It wants to bring back to the building the context of its surroundings, creating a continuous public space, easily approachable. The new extension pours out into the park, creating a space to gather, a plaza for cultural exchange.

8 sunken space full of light

Courtesy of Archiplan

At the entrance towards the plaza, a vesica piscis is formed. The architects took inspiration from the melody and rhythm of dance to create the form of the building. The steps to the plaza seem dynamic yet graceful. From the park, the entrance looks open and inviting, attracting people from all social strata. Through their design, Archiplan have been able to achieve much more than the design brief- a design that energieses the local environment.

c concept 001

Courtesy of Archiplan

Project Info:

Architects: Archiplan
Location: Seoul, Korea

 

Archiplan
Arch2O.com
Logo