Located in the south western part of the Hungarian capital of Budapest, Simplon_A was built as the residential part of a mixed-use development and has quickly become a colorful new piece of the neighbouring urban landscape.
The building was rounded at the corner by a gesture that evokes the architecture of the early modernism, such a rhythm of the facade boxes appears in many modern apartments of the surroundings that were built in the 1960th. One of the main design concepts was to create a continuously changing building facade that is highly responsive to the everyday use. All apartments have large, open facades and all have a well-utilizable, covered terrace – loggia.
The large openings of the facade are shaded by adjustable aluminium louvers; beside of the sun protection, the additional role is that they allows the light in, therefore, they serve as an excellent personalised visual filter. Certainly the colour of the lamellas is the same to the colour of the given flat – if all louvers are down, the building becomes a real box built by coloured Lego cubes.
The most important material of the external facade is the coloured glass. Yellow, orange, red, green, dark green, blue turquoise and dark blue: unmixed and bright colours. Each colour of the facade belongs to a certain flat; this colour then appears on the entrance door – therefore the mark of the flat becomes visual- and makes trivial the identification.
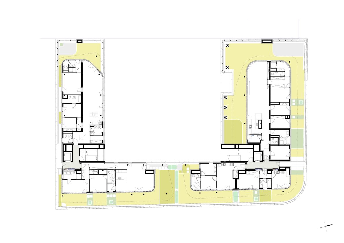
The flats can be reached through two vertical transportation cores, which are placed in the two breakpoints of the U-shaped building. Open side corridors heads from the staircases and elevators to the flats, similar to the Budapest tradition, in this way they could be naturally ventilated and lighted from two sides.
The open corridors face the miscellaneous and quiet internal garden and the overgrown green-wall. The southern wing of the building is placed on two-storey high ‘V’ shaped legs. Through this semi-covered public area the building and the city contacts each other, the internal garden and facades are visible for the external observers, too.
On the ground floor different services (shops, pharmacy and a coffee shop) are accessible for the residents and for the people coming from the neighbourhood. On the top of the building (on the 6th floor) in four separate white pavilions, we developed five peculiar penthouse flats surrounded only by glass-walls and private roof-gardens.
Project Info :
Architects: T2.a Architects
Project Location: Budapest, Hungary
Project Year: 2008
Project Area: 6638.0 sqm
Photographs: Zsolt Batár
Architects: Gábor Turányi, Bence Turányi
Structural engineering: Róbert Gecsényi / Dinám Ltd.
HVAC: László Temesvári, József Nagy / Temesvári Ltd.
Landscape design: Judit Tarcsányi / Gardenworks Ltd.
Electrical: Ferenc Kelemen, Csaba Zentai / Kelevill Ltd.
Project Team: Éva Pinczés, Levente Skultéti, László Nyitray
Building constructions: Lajos Gábor Takács / Takács Tetra Ltd.























Tags: 2008ApartmentsBudapestConcreteGlassHousingHungaryPlasticResidential ArchitectureT2.a ArchitectsZsolt Batár
Sophie Tremblay is a Montreal-based architectural editor and designer with a focus on sustainable urban development. A McGill University architecture graduate, she began her career in adaptive reuse, blending modern design with historical structures. As a Project Editor at Arch2O, she curates stories that connect traditional practice with forward-thinking design. Her writing highlights architecture's role in community engagement and social impact. Sophie has contributed to Canadian Architect and continues to collaborate with local studios on community-driven projects throughout Quebec, maintaining a hands-on approach that informs both her design sensibility and editorial perspective.








