Helsinki Central Library | OYO + office9 + Ingenium

Helsinki Central Library | OYO + office9 + Ingenium
“Revealing the strength, holding the mystery”

GIVE

While participating this competition, “What would Helsinki’s new library look like?”, wasn’t the only question this international collaboration was  wondering. But “What can we give the inhabitants in return”, was the ever recurring question. Without a doubt, Helsinki’s latest library has to be complementary to and communicating with its surroundings. But somehow, visitors should experience the new central library as a small city within the big Helsinki.

Courtesy of OYO + office9 + Ingenium

THE CHANGE

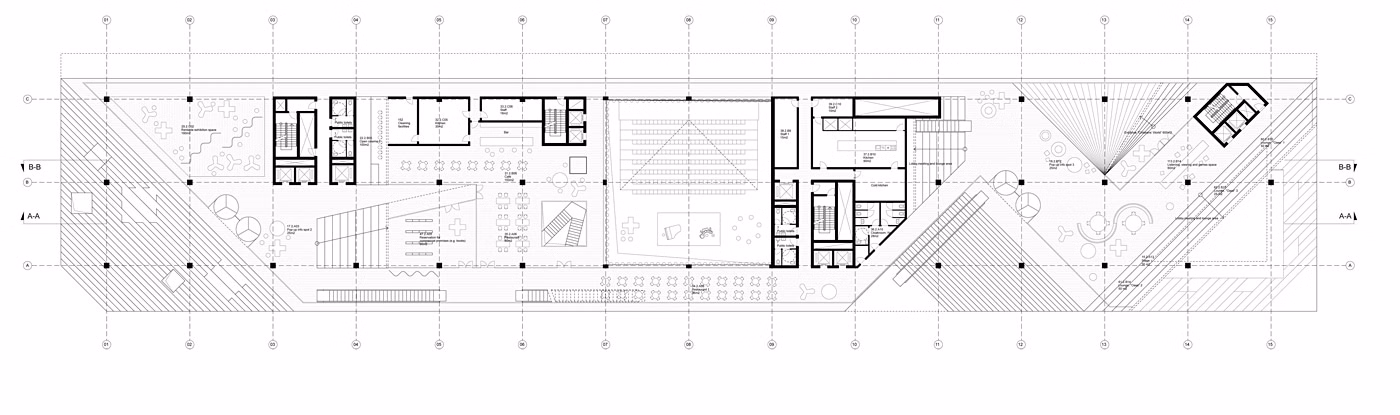
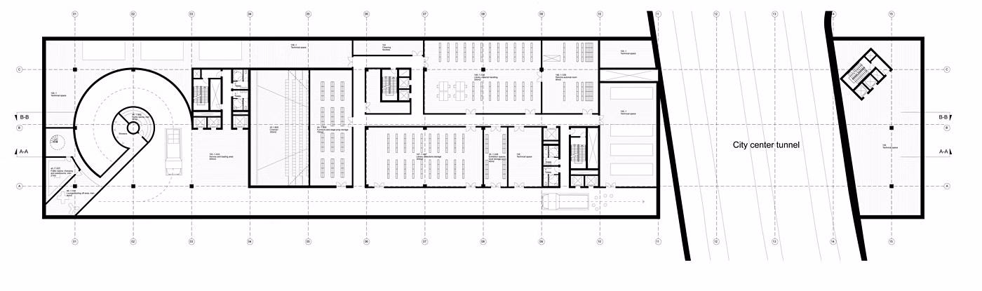
Today’s libraries are no longer distribution points of books and other physical media. The digital culture brought us more than we could ever dream of and is challenges the traditional Modus Operandi of today’s library. We accept this challenge and therefore approach the library as an adaptable hot spot, without forgetting that books will always be the heart of the library.

Courtesy of OYO + office9 + Ingenium

PROVOKE

Without pushing the possibility for large overhangs, we want the building look simple and modest, and retain the proposed outline for the library. It will give Helsinki and its inhabitants a timeless building among the existing significant buildings, which provokes a debate and motivates people to visit this brand new central library. While making Helsinki’s city center more vital, and keeping its inhabitants up-to-date, this library also enlivens the new urban environment created in the Töölönlahti area.

Courtesy of OYO + office9 + Ingenium

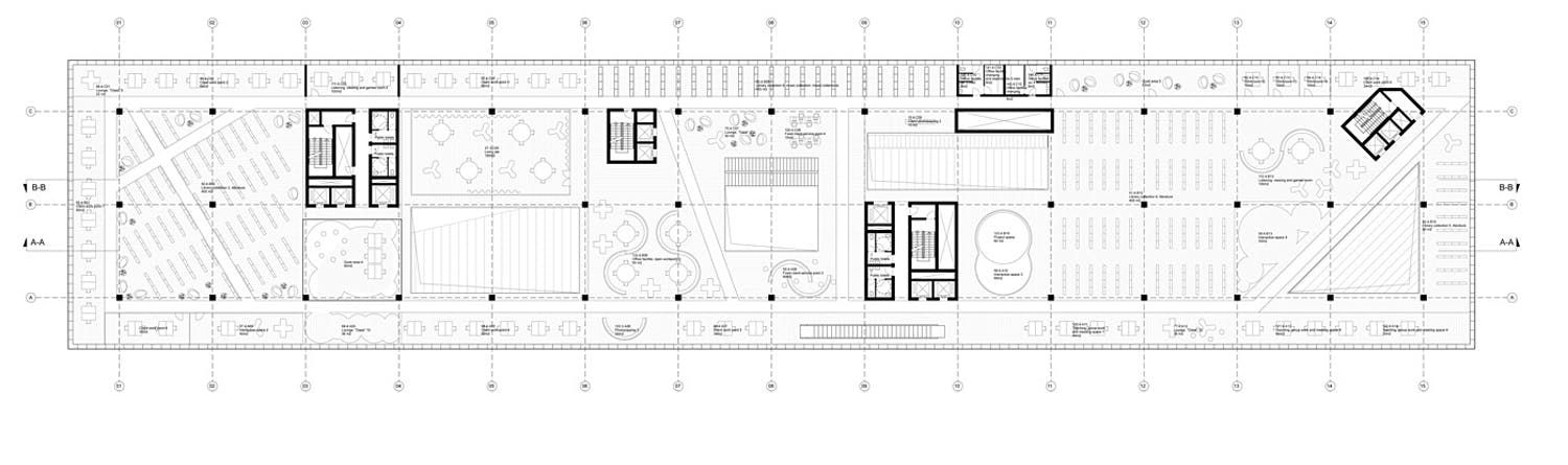
While claiming an interesting spot in the city center, we want to work as transparent as possible. Allthough the building reveals its strength, it still holds mystery. Considering a good balance between a physical platform and a digital library, we include both flexible and fixed event orientated spaces. Being peaceful and lively at the same time, Helsinki’s hotspot can be a culture house, a café, a meditative area and yes, a library.  Making friends in this new bookwood is easy, but claim your own corner is also perfectly possible.

Project Details:

Project Name: Helsinki Central Library
Architects: OYO + office9 + Ingenium
Location: Helsinki, Finland
Client: Helsinki City
Type: Open International Competition
Program: Culture House + Library
Site Area: Competition Study Area: 4,800 m²
Netto Floor Area: 11,057 m²
Gross Floor Area: 14,531 m²
Status: Stage 1 Competition Entry
Design Team: Nigel Jooren, Johan Cool, Salvador Quiles Palanca, Ioannis Gio, Eddy Soete, Kenneth Nguyen, Julie Verstraete
Energy Technology Expert: Ingenium nv

Courtesy of  OYO + office9 + Ingenium

OYO
Arch2O.com
Logo