North Mediterranean Health Center | Ferrer Arquitectos

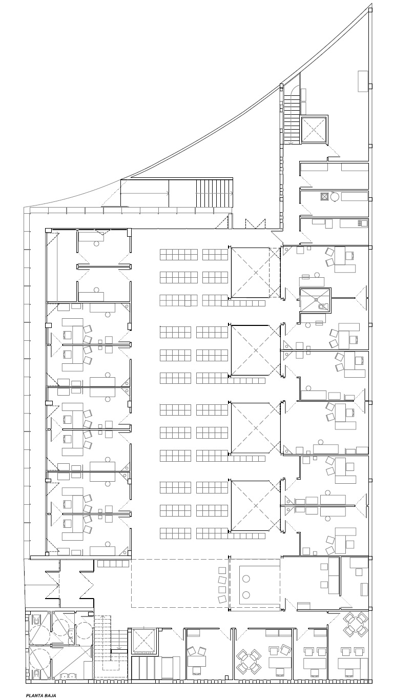
North Mediterranean Health Center, The building is made up of a ground and first floor and a basement intended for a garage and storerooms. The flat roof may only be accessed for maintenance. The center is structured around a series of internal courtyards, which provide ventilation and lighting to the various rooms. Its exterior has a contemporary look, based on a perforated ceramic prism, which sits on and is supported by a block finished with prefabricated concrete slabs. The ground floor contains the entrance and reception area, together with an administration area, adult clinic, minor surgery clinic, pediatric clinic and support services. The first floor is home to health education, the staff room, and support services.

photography by © David Frutos

The facade features a double-skin construction solution built with marble slats that allow the introduction of natural light in a diffused and indirect way. This creates a light atmosphere inside that reduces the building energy consumption, thus contributing to environmental sustainability through a building designed on the basis of sustainability criteria.

Project Info:

Architects: Ferrer Arquitectos
Location: Almería, Spain
Architect in Charge: José Ángel Ferrer, Javier de Simon
Design Team: Javier de Simón, Antonio Palenzuela, Manuel Alonso
Client: Andalusian Government
Year: 2010
Type: Medical Center
Photographs: David Frutos

José Ángel Ferrer
Arch2O.com
Logo