Nest We Grow | College of Environmental Design UC Berkeley + Kengo Kuma & Associates
Nest we Grow, our team‘s response to an international design-build competition, proposed a quintessentially Californian approach embracing many ideas still new to Asia, from where most of us hail. These Californian ideas formed into Nest we Grow, which grew from a shared interest in the materials that make up our build environment with a focus on renewable materials.
Nest We Grow won the 4th Annual LIXIL International design-build competition in 2014, and unlike structures built in the first years of the competition, it is an open, public structure. Its main intent is to bring people in the community together to store, prepare and enjoy local foods in the setting of Hokkaido, Japan.
Our team of graduate students, comprised of two Taiwanese, two Chinese, and one American, sought to examine what structural and material elements we could combine to create this community and food oriented space. We recognized how modest materials and actions are celebrated in Berkeley and wanted to explore their implications in Asia.
Our initial research started with techniques we find readily in California, including rammed- earth walls and straw bale construction. We presented these ideas in pursuit of a building that would introduce renewable building techniques to an area of Japan that could take advantage of these concepts. What we found was an appreciation for the difficulty of applying transnational technology in a new environment.
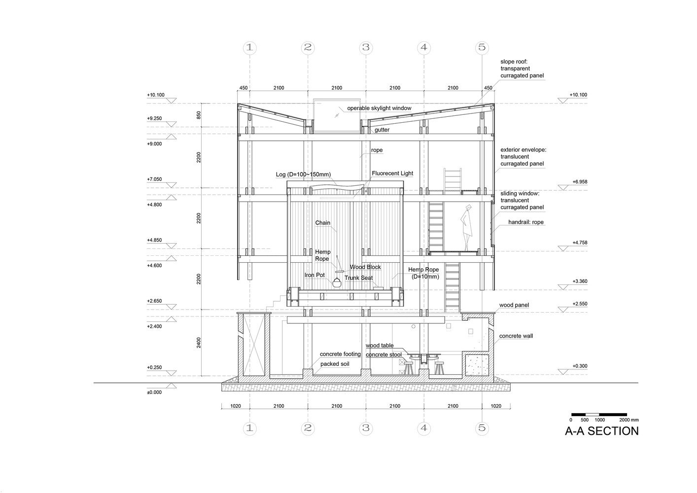
We also focused on a heavy timber construction technique coming from the US, which uses large sections of wood. In Japan this translated to the composite column, which uses smaller pieces of wood to generate a larger column. It took considerable effort to identify a way to join materials, which was influenced by both local carpentry practices and the Japanese material market. We were also under a considerable time constraint with the entire building process taking only six months to complete.
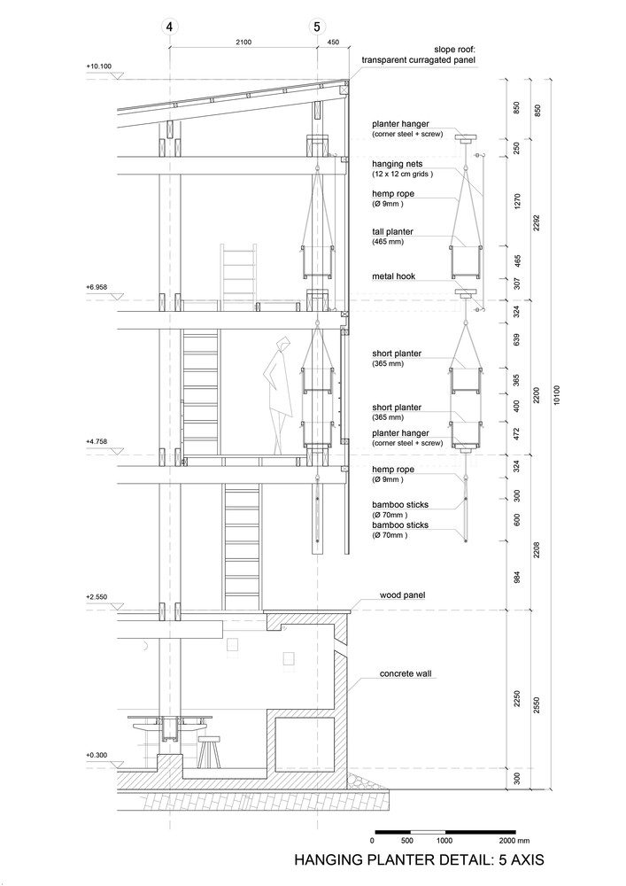
The wood frame structure mimics the vertical spatial experience of a Japanese larch forest from which food is hung to grow and dry. A tea platform in the middle of the nest creates a gathering space where the community can visually and physically enjoy food around a sunken fireplace. Local foods make up the elevation of the Nest as people see the food forest floating above the landform.
The wall at the base of the building, in addition to creating a micro topography, helps to block the prevailing northwest winter wind. The Nest takes advantage of the transparent plastic corrugated sheets on the façade and roof, allowing light in for the plants, and heating the space during colder months, extending the usability of the Nest.
Sliding panels in the façade and roof open to facilitate air movement through the structure during the summer and warmer parts of the day. The tea platform sits up into the Nest, keeping it in the warm air created by the skin during the colder months, and in a cross ventilated area during the warm summer months. The openness of the façade allows the building to incorporate the surrounding natural environment into the interior climate, but can also be closed off to create a buffer between the two. The funnel-shaped roof harvests rain water and snow melt. The collected water is delivered to tanks that are then used to irrigate the plants in the concrete wall. The shape signifies the Nest’s ability to bring nature in the form of air, water and light into the Nest.
The program of the Nest is decided according to the life cycle of these local foods: growing, harvesting, storing, cooking/dining, and composting, which restarts the cycle. All members of the community help to complete each stage, allowing the structure to become a platform for group learning and gathering activities in the Nest throughout the year. Community participation extends and completes the life cycle of local foods, which is a symbiotic relationship. This is the time-line of people and food in the Nest, and this is the Nest for people and food.
Project Info:
Architects: College of Environmental Design UC Berkeley , Kengo Kuma & Associates
Project Location: Takinoue, Japan
Project Year: 2014
Project Area: 85.0 sqm
Photographs:Shinkenchiku-sha
Structural Engineer: Masato Araya
Contractor: Takahashi Construction Company
Project supervisor: Kengo Kuma & Associates, Takumi Saikawa
Mechanical Engineer: Tomonari Yashiro Laboratory at the Institute of Industrial Science, University of Tokyo / Bumpei Magori, Yu Morishita
Design Team: Hsiu Wei Chang, Hsin- Yu Chen, Fenzheng Dong, Yan Xin Huang, Baxter Smith (Instructors: Dana Buntrock, Mark Anderson)













































