Elva Hotel | Mange Bekker Arkitektur

Elva Hotel, or The River Hotel, is a cozy lodging in Voss, Norway. The area is renowned for its stunning scenery and attracts outdoor and extreme sports enthusiasts. The client’s main goal was to create unique accommodations closely connected to their existing activities center. The hotel offers an exclusive experience for active guests to immerse themselves in and explore the surrounding natural beauty.

Elva Hotel

© Sam Hughes

Elva Hotel’s Design Concept

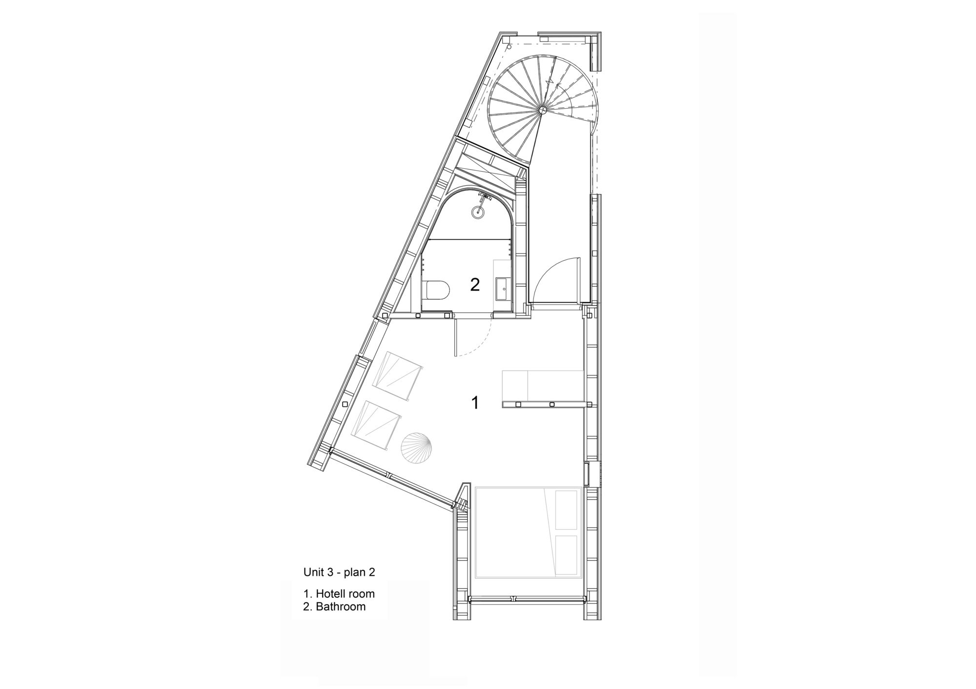
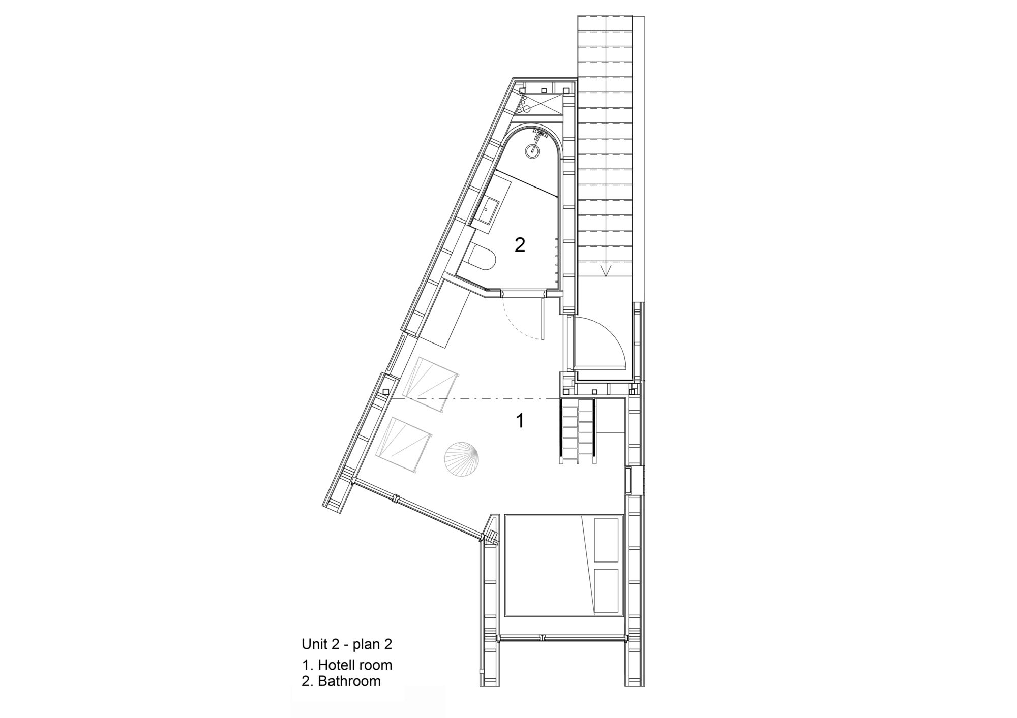
The Elva Hotel consists of 14 rooms spread across five tiny tower houses. Each tower house has one to three hotel rooms. The main building also houses four wheelchair-accessible rooms, a reception area, a conference room, and a restaurant. The restaurant is connected to an existing structure with a bar, café, kitchen, and spa area. The restaurant serves locally sourced food. Considering future climate changes, the site was designed to overcome challenges, as it is located two to four meters below the anticipated flood zone levels. During construction, great care was taken to protect vulnerable wetland habitats along the water’s edge.

Elva Hotel

© Sam Hughes

The buildings are built on stilts above the 200-year flood level, a strategic placement. The restaurant is the only structure located below the flood level, but it is designed to withstand flooding using water-resistant materials. All technical installations are placed at least 1.4 meters above the floor. The raised structures provide sheltered outdoor areas for guests and offer a clear view of the waterfront through the buildings. The restaurant is connected to the existing bar, kitchen, and spa area.

Elva Hotel

© Sam Hughes

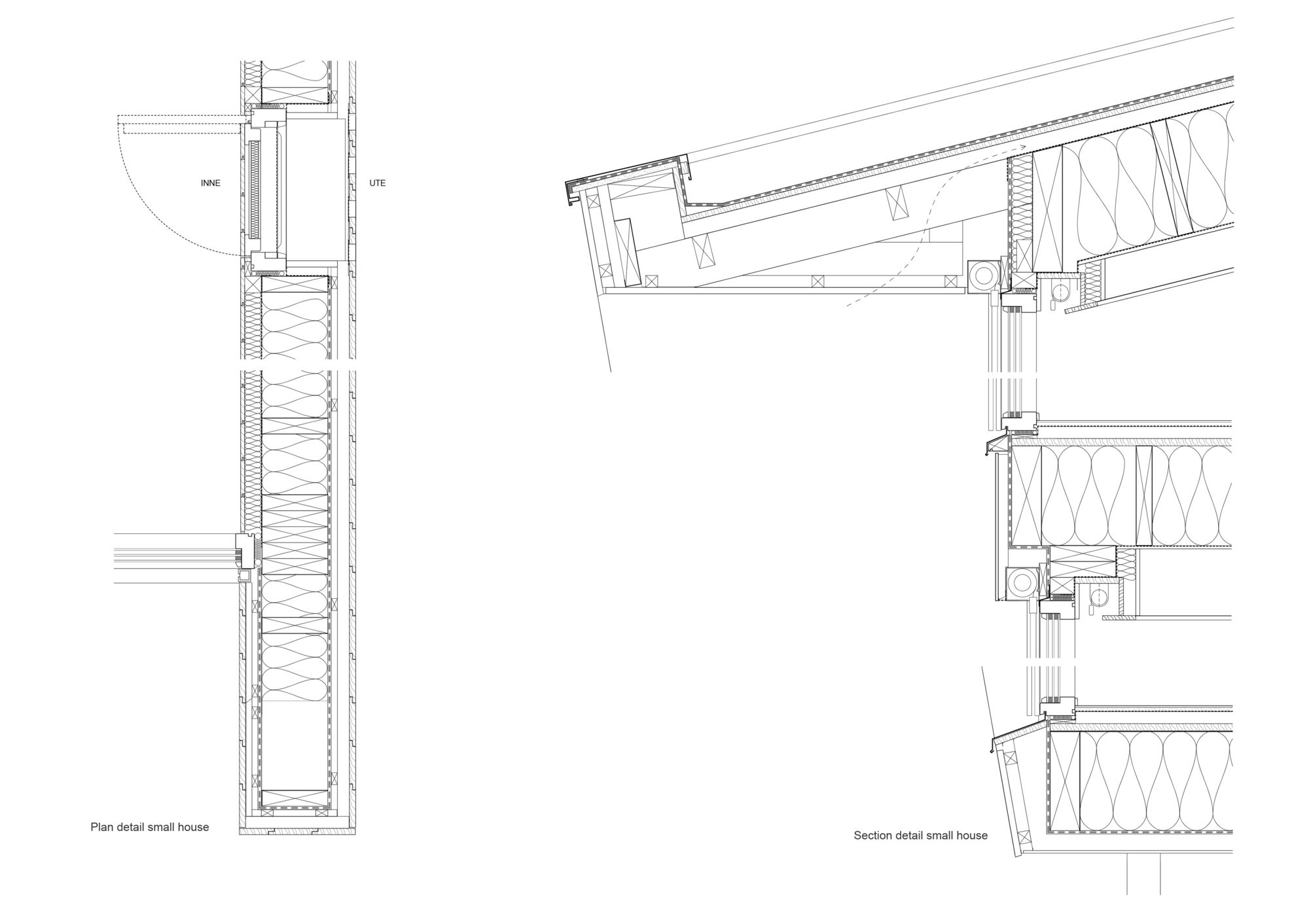
In an effort to minimize the Elva Hotel’s carbon footprint, concrete is exclusively employed in the foundations and below the flood level. The remaining construction utilizes pre-cut timber, leading to time and material savings during the building process. The design of the Elva Hotel is tailored to harmonize with the landscape and the confined site, promoting open views both within and between each structure. Each room is crafted to offer a private connection with the surrounding scenery, providing vistas of the river, lake, and mountains.

Elva Hotel

© Sam Hughes

The independent units are located 1.5 meters beneath the adjacent parking area and connected to the main building using a lowered, covered walkway that is wheelchair accessible. This design creates a smooth transition between the hotel and its natural surroundings. Moreover, the elevation difference reduces the visual impact of the buildings when viewed from the houses behind them. The Elva Hotel blend in with the natural landscape using earthy materials. Outdoor spaces feature local flora, attracting native wildlife.

Elva Hotel

© Sam Hughes

Project Info:
Architects: Mange Bekker Arkitektur
Area: 860 m²
Year: 2023
Photographs: Sam Hughes
Manufacturers: AutoDesk, Swisspearl, Bergene Holm, EGE, Fora Form, Nordan, Oras, Polyflor, SG armaturen, Vental, WEBA
Lead Architects: Sam Hughes
Electrical Engineer: Møster Installasjon AS
Interior Architect: Bruket arkitekter AS
Frode Solbakk / Client: Voss Active AS
Project Manager: Thomas Hopland, Arkoconsult AS
Foreman: Michel Karlsen Skudal, Arkobygg AS
Fire Consultant (Consept): Sweco AS
Fire Consultant: Firesafe AS
Furniture Carpenter: Styve møbelsnikkeri AS
Country: Norway

Sam Hughes
Arch2O.com
Logo