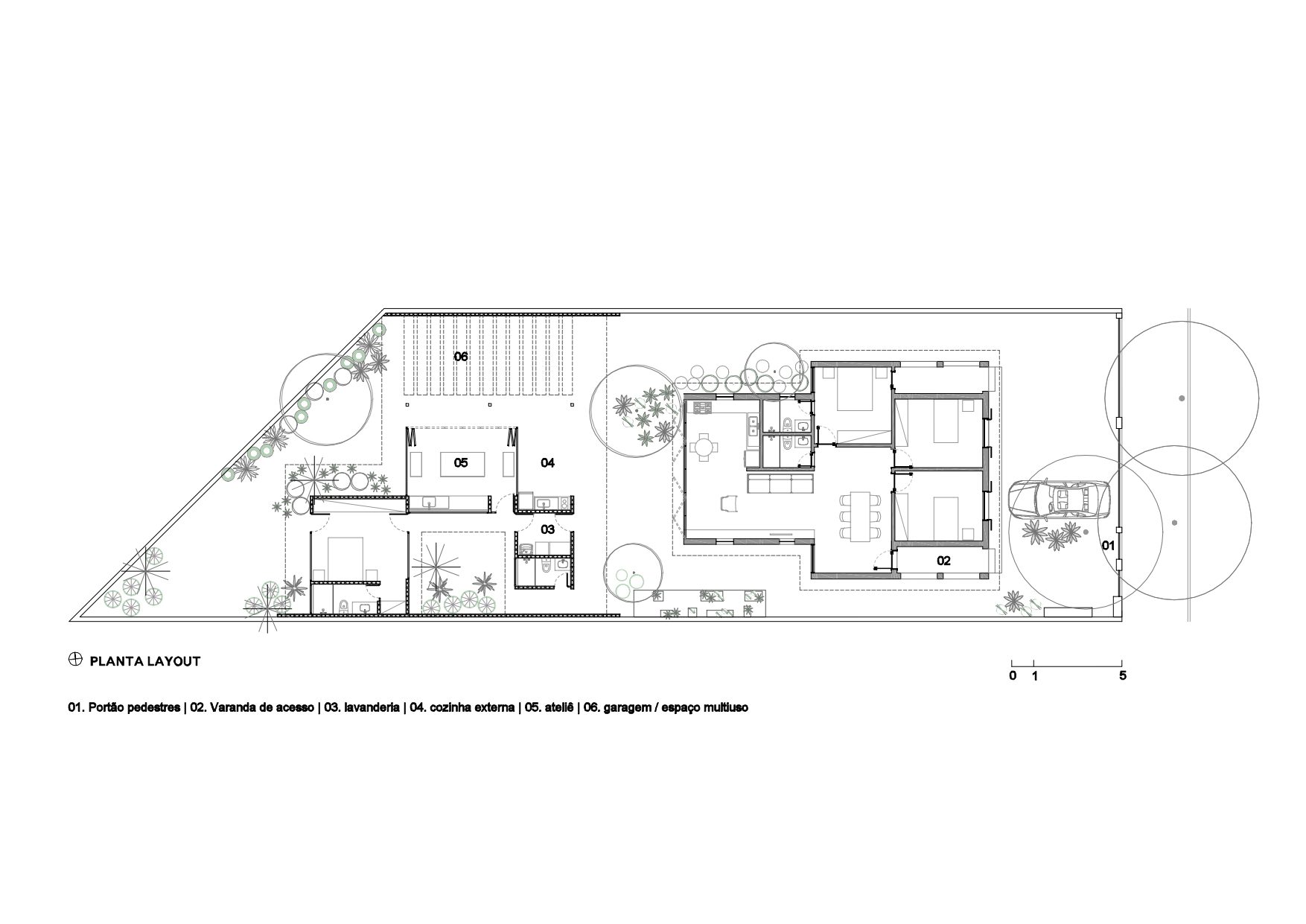
Curupaiti House, for this house was to plan the intervention and expansion of a house from the 40s, in a garden neighborhood in the city of São Paulo. This planning aimed to serve 3 generations of a family, a couple, their respective mothers, and a child.
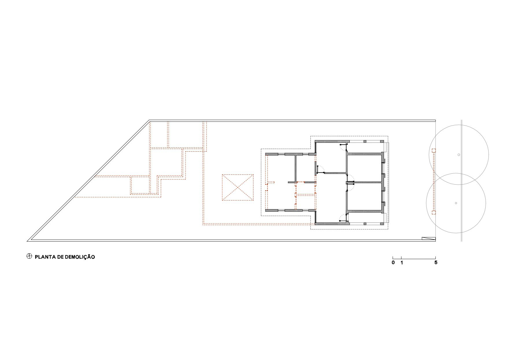
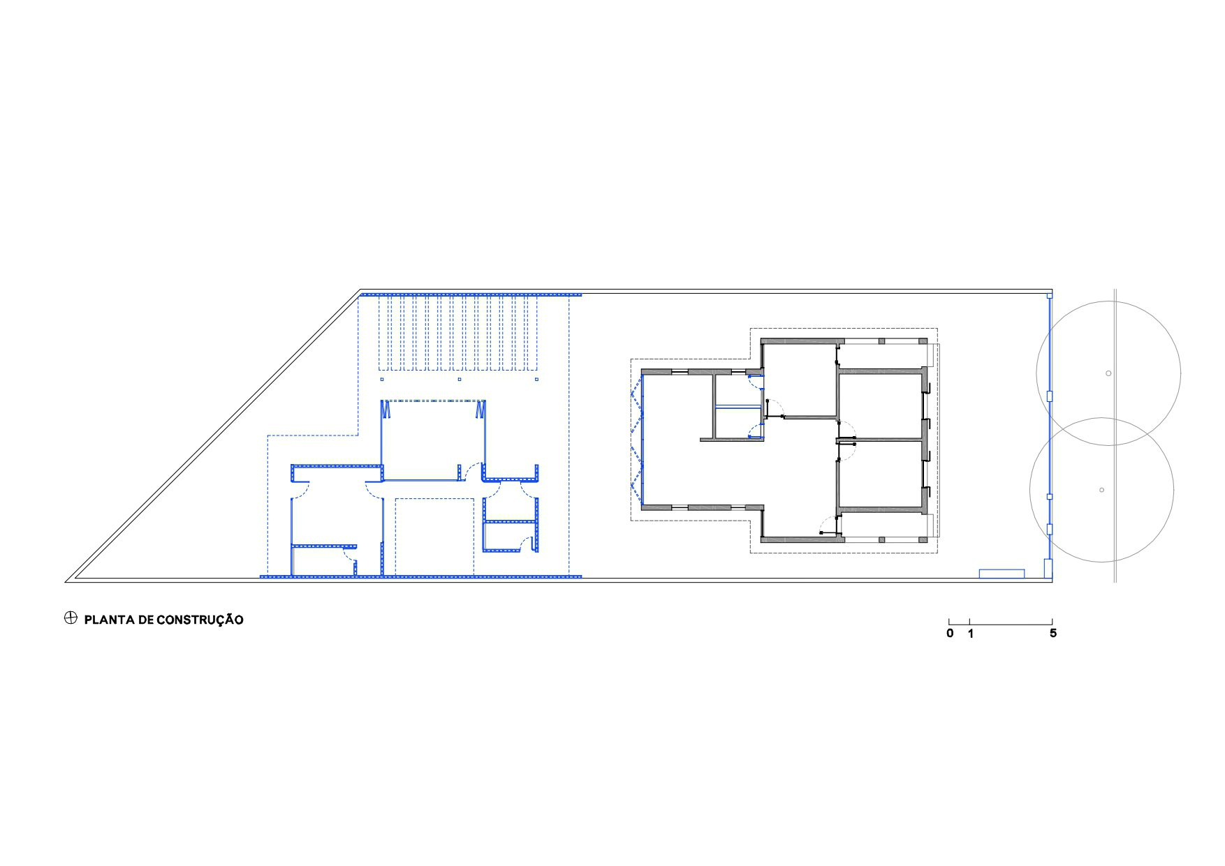
The project was carried out in 2014, right after the purchase of the property, but the work was scheduled to be carried out in 2 phases. First, the adaptation of the existing house was carried out in 2015, preserving the original characteristics of the property, and in 2019 the expansion, with a contemporary language in structural masonry and wood, which sought to occupy part of the large backyard, without losing contact with the garden.
The main house houses 3 bedrooms, living, dining and kitchen. The expansion included a garage for cars, a painting and sewing workshop, laundry, bathroom, outdoor kitchen, dining table, and a suite.
Over the years, the needs and interests of family members have changed. The expansion gained new uses, but the architecture maintained its spatiality and flexibility of spaces, allowing new appropriations.
Project Info
Architects: Terra e Tuma Arquitetos Associados
Country: Brazil, São Paulo
Area: 176 m²
Year: 2019
Photographs: Courtesy of Terra e Tuma Arquitetos Associados
Architecture: Danilo Terra, Fernanda Sakano, Juliana Terra, Pedro Tuma, Bruna Hashimoto, Jessica Zanini
Landscape Design: Bianca Vasone Arquitetura da Paisagem















Isabelle Laurent is a Built Projects Editor at Arch2O, recognized for her editorial insight and passion for contemporary architecture. She holds a Master’s in Architectural Theory from École Nationale Supérieure d’Architecture de Paris-Belleville. Before joining Arch2O in 2016, she worked in a Paris-based architectural office and taught as a faculty adjunct at the École Spéciale d’Architecture in Paris. Isabelle focuses on curating projects around sustainability, adaptive reuse, and urban resilience. With a background in design and communication, she brings clarity to complex ideas and plays a key role in shaping Arch2O’s editorial
