Jahu Apartment Building | RAAM Architecture
The Jahu apartment building is located in Kalamaja, in a melting point of different eras. The building is situated right between two areas, one with well preserved historical wooden houses and the other with contemporary architecture.
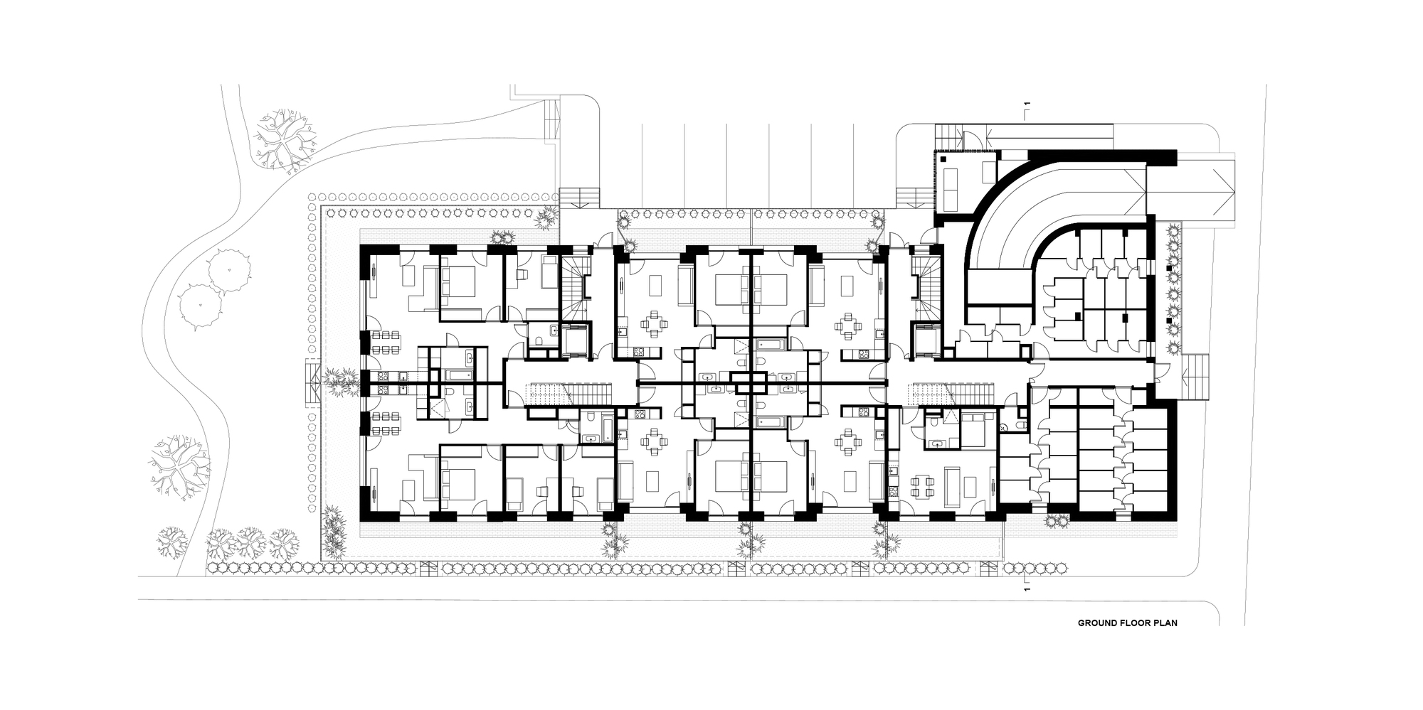
Taking the plot into account, a 5-storey building with 37 apartments was designed. With a footprint of 840 m2, the building is situated in accordance with existing valuable trees and at the same time creates a south-facing garden with lilacs, apple- and cherry trees. This kind of gardens are characteristic for the historic Kalamaja courtyards. The flats on the ground floor have terraces with small gardens in front of them to separate them from public areas and give more privacy to the inhabitants.
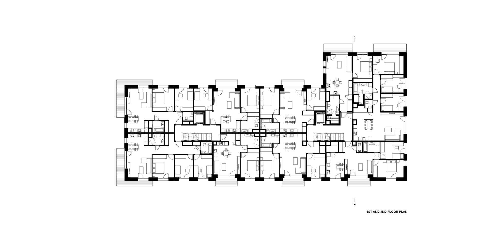
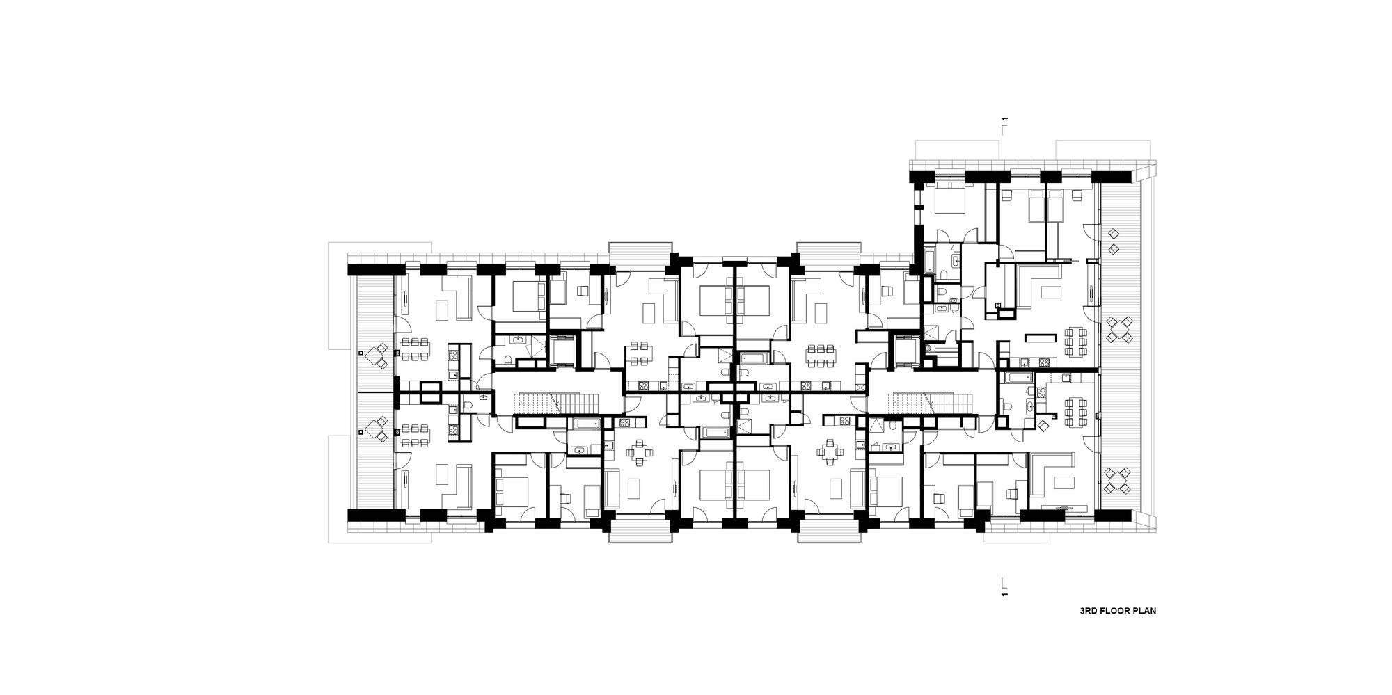
Starting from the 2nd floor, apartments facing north have a view to the sea and flats to west have a nice overview of Kalamaja. From the 3rd floor all the apartments to south are looking to the medieval old town of Tallinn. Flats to the east see the modern face of the city with its urban courtyards.
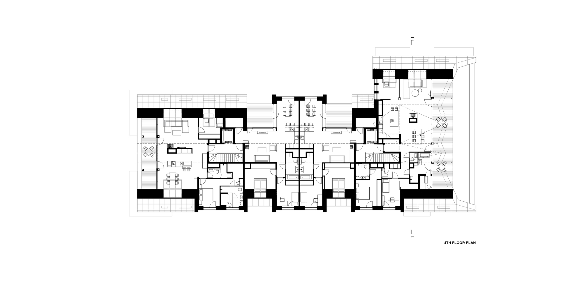
The architectural form of this building is inspired by the historical Kalamaja houses. The shape of the roof refers to the roofscapes of the neighbouring historical wooden houses –the angles of roof slopes and the dormers of the last floor apartments. To blend this 5-storey building into an area with mostly 3-storey houses, a slope starting from the 3rd floor cuts back the upper floors on the street side. It also creates roof terraces with a sea view for the apartments.
Facades are covered with Siberian larch – street side block of the house is darker and the courtyard part is kept in natural colour of the wood. Facade on the ground floor at Jahu street is covered with art perforated Liberta Cor-Ten 700 TM cassettes that have a special design for this building. Same perforated panels are used for the parking lot signs and in the pergola of the common garden. The crops on the panels refer to the street name Jahu that means flour. At the end of the 19th century there used to be a flour warehouse on this street, hence the name.
Project Info
Architects: RAAM Architecture
Country: Estonia, Tallinn
Area: 4780 m²
Year: 2016
Photographs: Maris Tomba
Manufacturers Ruukki, VELUX Group, Lotus Timber, Rekman, Teknos, Windoor AS, Windoor Pty Ltd: Ruukki
Architects In Charge: Alice Laanemägi, Katerina Veerde, Katrin Kapanen
Investor/ Lead Contractor: AS Merko Ehitus Eesti




























