Kumpula Student Housing | Playa Architects

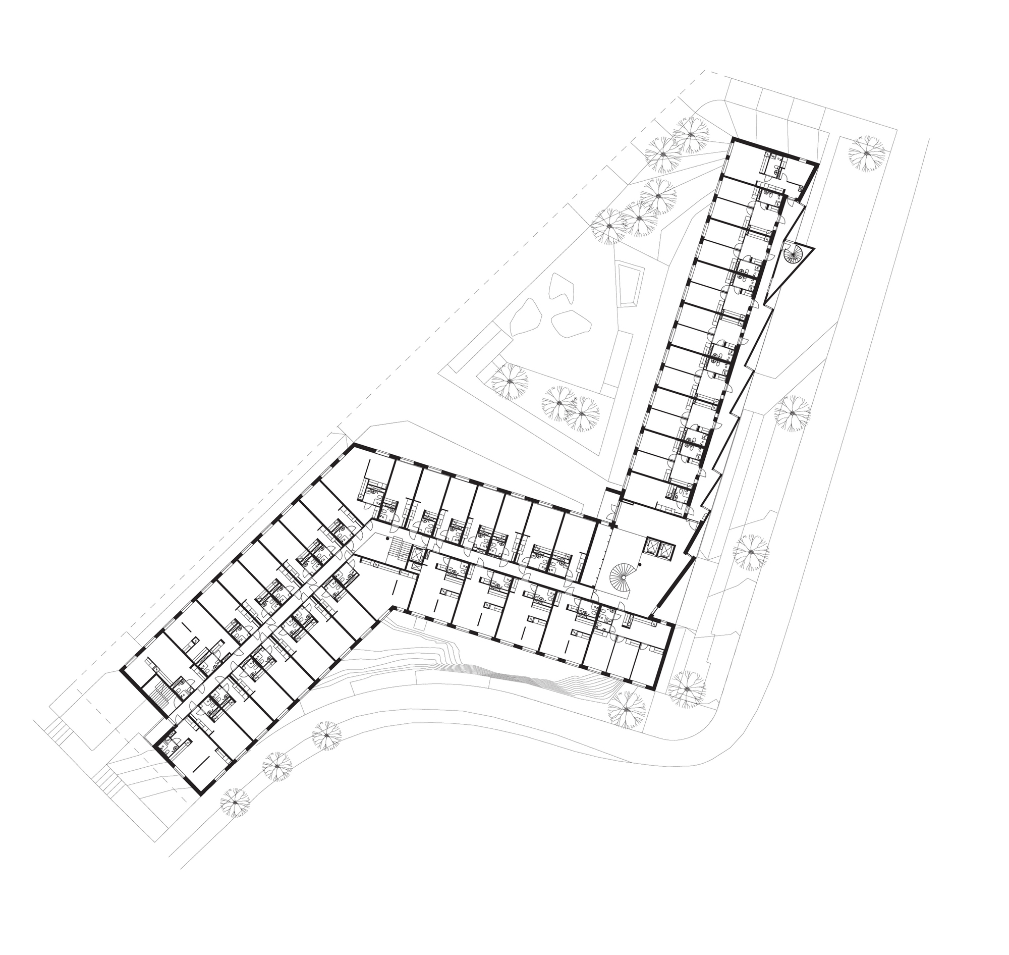
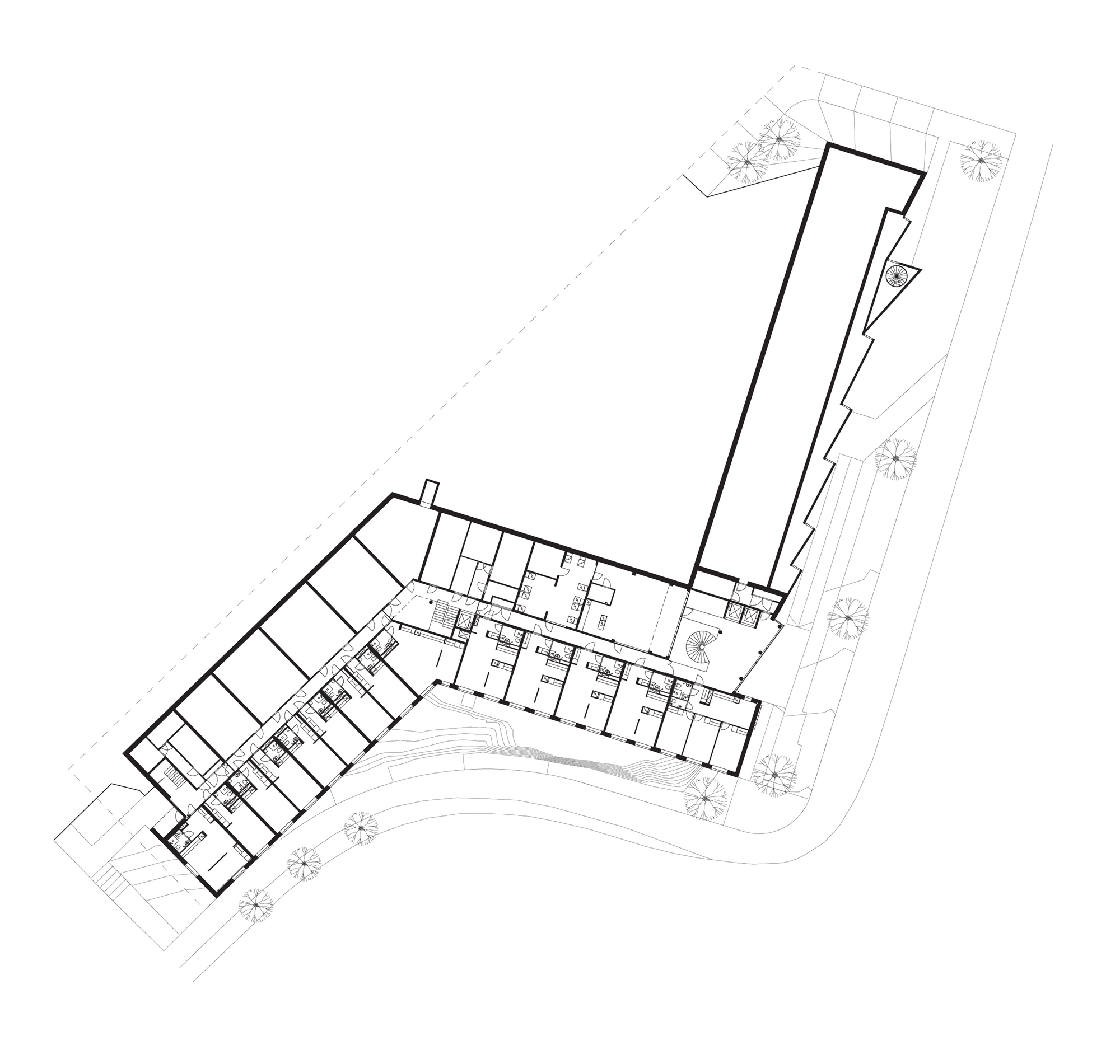
Kumpula Student Housing, An addition to the Helsinki University campus area in Kumpula neighborhood. The building comprises communal spaces and more than 200 student apartments. The small site is wedged on a steep slope between heavy traffic and the faculty buildings. Due to the heavy traffic apartments could partly be opened only to the courtyard. The subsequent semi-cold access gallery forms the main façade of the building. The pleated façade both protects the indoor spaces from solar overheating and disperses the heavy traffic noises so that it doesn’t reverberate to the opposing low-rise residential area.

© Tuomas Uusheimo

From the south, the facade is closed and blank whereas when approaching from the north the façade is more open and welcoming. In addition to the pale brickwork, this more abstract façade connects the new residential building more intuitively to the surrounding larger scale university teaching and research buildings. To emphasize this, the fenestration of the other facades is a generic grid.

© Tuomas Uusheimo

Due to the steeply sloped site, the street-side entrance is on the basement level whereas the courtyard entrance is on the 2nd floor. Most of the communal spaces are located on the 1st floor so that they are visible from both entrance levels to encourage students’ socialization and participation in communal events. Communal spaces are also connected to a void/spiral staircase interconnecting the floors and entrance levels.

Project Info
Architects: Playa Architects
Country: Finland, Helsingfors3
Year: 2018
Photographs: Tuomas Uusheimo
Manufacturers AutoDesk, Parmarine, Tiileri: AutoDesk
Design Team: Tuukka Vuori, Eliisa Rintanen, Veikko Ojanlatva, Jalo Sippola, Sanna Tegel, Henna Miettinen, Jaakko Heikkilä, Ulla Seppä, Jens Regårdh, Kristian Kontula, Timo Koskinen
Clients: SRV, HOAS
Structural Design: Vahanen Oy
HVAC: Vahanen Talotekniikka Oy
Fire Safety: L2 Paloturvallisuus Oy

Playa Architects
Arch2O.com
Logo