Complex House Hata Tomohiro Architect & Associates
Alright, a few points to start with. Firstly, I must thank both Google Translator and Babelfish for truly imaginative translations for the Hata Tomohiro Architect & Associates website- it was a joy to read and decipher. Secondly, this project makes me think of roof. Yes the broad, metaphysical concept of roof. I’m not going to say anything more on the subject than that- just roof.
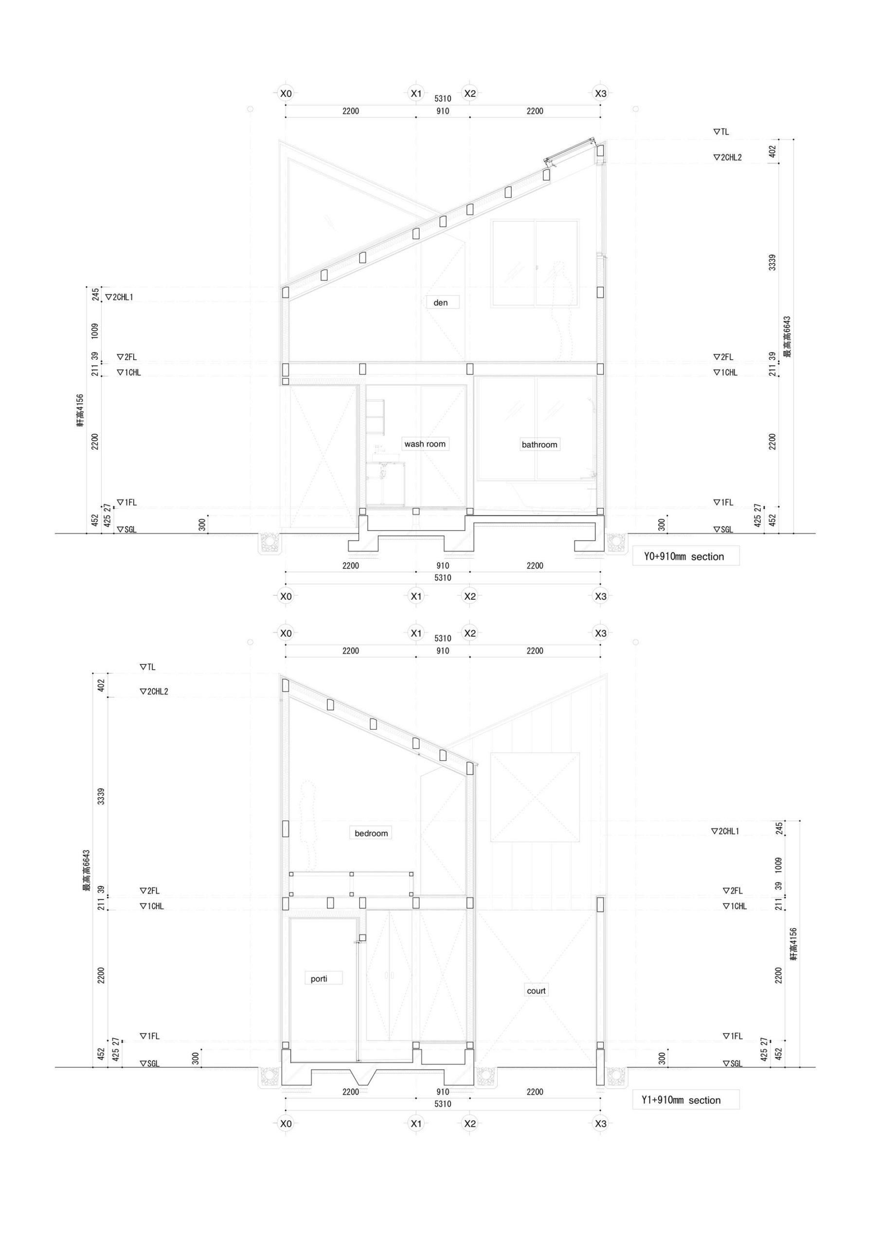
This private residence titled Complex House and built in the city of Nagoya was winner of the WAN House of the Year 2012. It is strong clean lines, simple execution, sensual materials. The house turns in on itself, localizing on a series of ‘cubbyholes’ (thank you Babelfish), or cutouts created by the building’s shifting planes and the controlled undulation of the roof. The ‘wells’ become small houses within the main house, which ‘catch’ space and ‘pile it up’. The spacial is emphasized by the dematerialized, clean-cut white walls. These in conjuncture with a simple, yet elegant wood floor whose slight reddish colour creates a warm, sensuous ambiance to the space. Well, to the pictures at any rate.
Architects: Hata Tomohiro Architect & Associates
Photographs: Hata Tomohiro Architect & Associates

























Courtesy of Hata Tomohiro Architect & Associates
