Dominating the skyline of Antwerp, the new headquarters for the Antwerp Port Authority on the Kattendijk dock, the Port House has been completed and officially opened today. The project is one of the last monumental designs by Zaha Hadid Architects in Belgium. A masterfully renovated and extended fire station, that is designed to bring together under a single roof the Belgian city’s some 500 port authority staff while referencing in its design some of Antwerp’s key features. ThePort House repurposes, renovates and extends a derelict fire station into a new headquarters for the port – bringing together the port’s 500 staff that previously worked in separate buildings around the city. With 12 km of docks, Antwerp is Europe’s second largest shipping port, serving 15,000 sea trade ships and 60,000 inland barges each year.
Antwerp handles 26% of Europe’s container shipping, transporting more than 200 million tonnes of goods via the ocean-going vessels that call at the port and providing direct employment for over 60,000 people, including more than 8,000 port workers. Indirectly, the Port of Antwerp ensures about 150,000 jobs and has ambitious targets for future expansion to meet the continent’s growth and development over the next century.
In 2007, when the former 1990s offices of the Port of Antwerp had become too small, the port determined that relocation would enable its technical and administrative services to be housed together, providing new accommodation for about 500 staff. The port required a sustainable and future-proof workplace for its employees, representing its ethos and values in an ever-expanding local and international arena.
As the threshold between the city and its vast port, Mexico Island in Antwerp’s Kattendijk dock on Quay 63 was selected as the site for the new head office. The waterside site also offered significant sustainable construction benefits, allowing materials and building components to be transported by water, an important requirement to meet the port’s ecological targets.
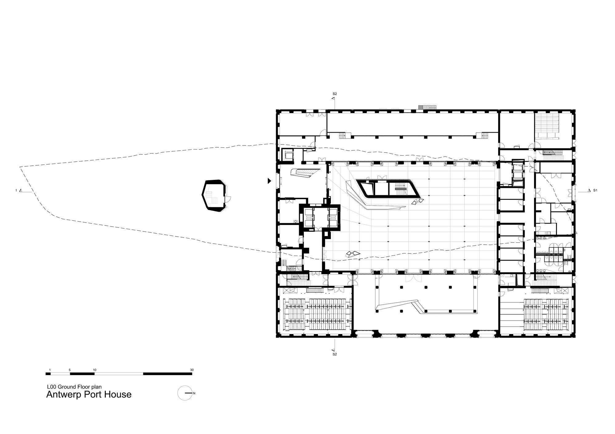
Following the construction of a new fire station with facilities needed to service the expanding port, the old fire station on the Mexico Island site – a listed replica of a Hanseatic residence – became redundant and relied on a change of use to ensure its preservation. This disused fire station had to be integrated into the new project. The Flemish government’s department of architecture, together with the City and Port authorities organized the architectural competition for the new headquarters.
Zaha Hadid Architects’ design is informed by detailed historical research and a thorough analysis of both the site and the existing building. Marc Van Peel, president of the Port of Antwerp, said: “There was only one rule laid down in the architectural competition, namely that the original building had to be preserved. There were no other requirements imposed for the positioning of the new building. The jury was therefore pleasantly surprised when the five shortlisted candidates all opted for a modern structure above the original building. They all combined the new with the old, but the design by Zaha Hadid Architects was the most brilliant.”
Working with Origin, leading heritage consultants in the restoration and renovation of historic monuments, ZHA’s studies of the site’s history and heritage are the foundations of the design which firstly emphasizes the north-south site axis parallel with the Kattendijkdok linking the city center to the port. Secondly, due to its location surrounded by water, the building’s four elevations are considered of equal importance with no principal facade. ZHA’s design is an elevated extension, rather than a neighboring volume which would have concealed at least one of the existing facades. ZHA and Origin’s historical analysis of the old fire station also highlighted the role of its originally intended tower – a grand, imposing component of the fire station’s Hanseatic design. Its bold vertical statement, intended to crown the imposing volume of the building below, was never realized.
These three key principles define the design’s composition of new and old: a new volume that ‘floats’ above the old building, respecting each of the old facades and completing the verticality of the original design’s unrealized tower. Like the bow of a ship, the new extension points towards the Scheldt, connecting the building with the river on which Antwerp was founded.
Surrounded by water, the new extension’s façade is a glazed surface that ripples like waves and reflects the changing tones and colors of the city’s sky. Triangular facets allow the apparently smooth curves at either end of the building to be formed with flat sheets of glass. They also facilitate the gradual transition from a flat façade at the south end of the building to a rippling surface at the north.
While most of the triangular facets are transparent, some are opaque. This calibrated mix ensures sufficient sunlight within the building, while also controlling solar load to guarantee optimal working conditions. At the same time, the alternation of transparent and opaque facade panels breaks down the volume of the new extension, giving panoramic views of the Scheldt, the city and the Port as well as providing enclosure.
The façade’s rippling quality is generated with flat facets to the south that gradually become more three-dimensional towards to the north. This perception of a transparent volume, cut to give the new building its sparkling appearance, reinterprets Antwerp’s moniker as the city of diamonds. The new extension appears as a carefully cut form which changes its appearance with the shifting intensity of daylight. Like the ripples on the surface of the water in the surrounding port, the new façade reflects changing light conditions.
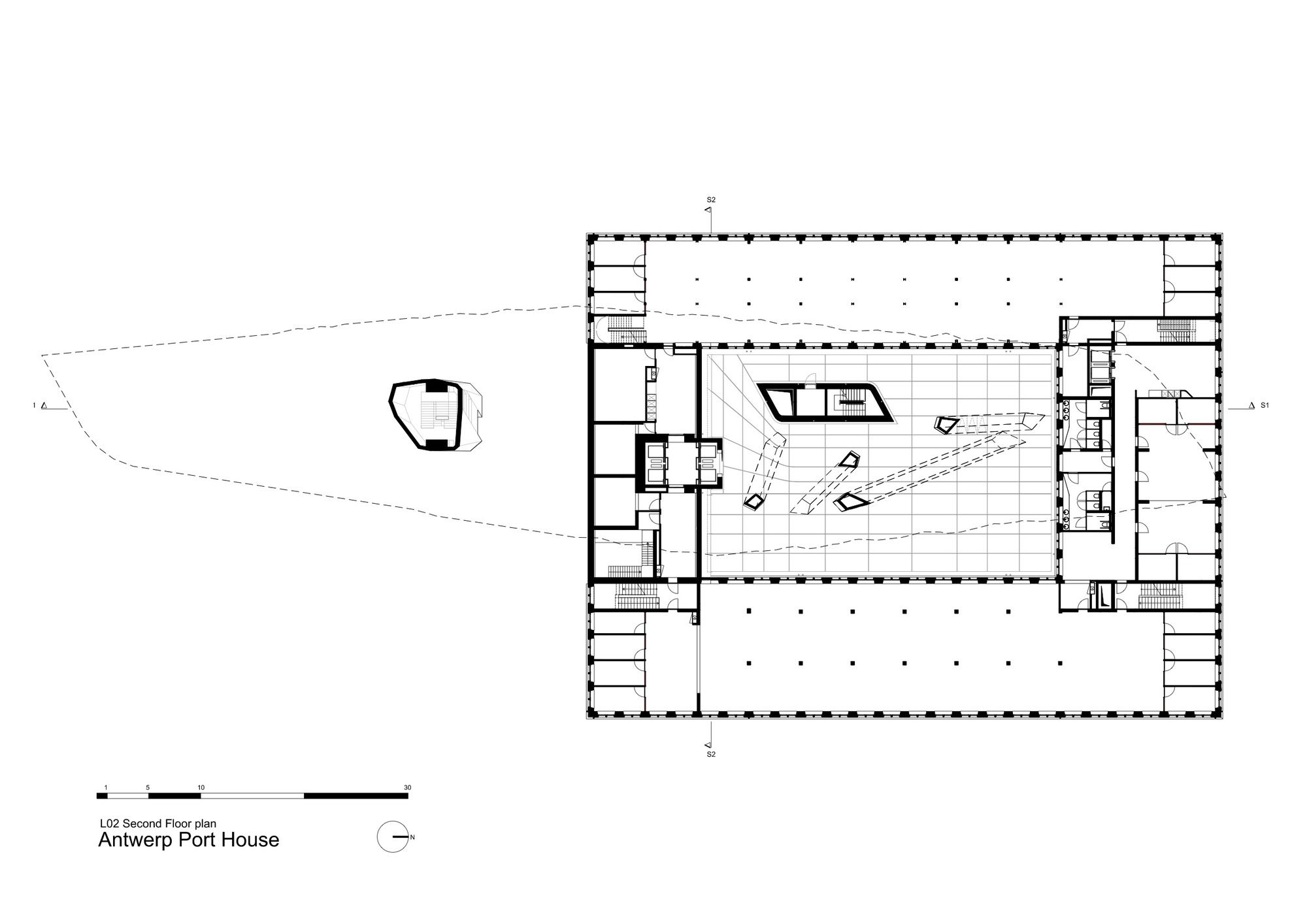
The old fire station’s central courtyard has been enclosed with a glass roof and is transformed into the main reception area for the new Port House. From this central atrium, visitors access the historic public reading room and library within the disused fire truck hall which has been carefully restored and preserved. Panoramic lifts provide direct access to the new extension with an external bridge between the existing building and new extension giving panoramic views of the city and port.
The client requirements for an ‘activity based office’ are integrated within the design, with related areas such as the restaurant, meeting rooms and auditorium located at the center of the upper levels of the existing building and the bottom floors of the new extension. The remaining floors more remote from the center, comprise open plan offices.
Collaborating with services consultant Ingenium, ZHA developed a sustainable and energy-efficient design reaching a ‘Very Good’ BREEAM environmental rating. Despite the challenges of integrating with a protected historic building, high standards in sustainable design were achieved by implementing effective strategies at each stage of construction. A borehole energy system pumps water to a depth of 80m below grade in over 100 locations around the building to provide heating and cooling. In the existing building, this system uses chilled beams. In the new extension, it uses chilled ceilings. Waterless lavatory fittings and motion detectors minimize water consumption while building automation and optimal daylight controls minimize artificial lighting.
With constant references to the Scheldt, the city of Antwerp and the dynamics of its port, married with the successful renovation and reuse of a redundant fire station – integrating it as a fully-fledged part of its headquarters – the new Port House will serve the port well through its planned expansion over future generations.
Marc Van Peel said: “The architectural style of the original building, a replica of the former Hansa House, recalls the 16th century, Antwerp’s “golden century.” But now above this original, a contemporary structure in shining glass has been built, which I am sure, represents a new golden century for Antwerp.”
Project data:
Total Floor Area:
12,800 square meters
(6,600 square meters in the refurbished fire station)
(6,200 square meters in the new extension)
Total height (existing building + new extension):46 metres (5 additional floors)
Site Area 16,400 square meters
Project Team:
Architect: Zaha Hadid Architects
Design: Zaha Hadid and Patrik Schumacher
ZHA Project Director: Joris Pauwels
ZHA Project Architect: Jinmi Lee
ZHA Project Team: Florian Goscheff, Monica Noguero, Kristof Crolla, Naomi Fritz, Sandra Riess, Muriel Boselli, Susanne Lettau
ZHA Competition Team: Kristof Crolla, Sebastien Delagrange, Paulo Flores, Jimena Araiza, Sofia Daniilidou, Andres Schenker, Evan Erlebacher, Lulu Aldihani
Consultants:
Executive Architect: Bureau Bouwtechniek
Structural Engineers: Studieburo Mouton Bvba
Services Engineers: Ingenium Nv
Acoustic Engineers: Daidalos Peutz
Restoration Consultants: Origin
Fire Protection: Fpc








































Tags: AcousticAntwerpArchitecture JobsAtriumBelgiumConstructionCourtyardFSHouse DesignHouse DesignsMexicoPatrik SchumacherSkylineStructureSustainableSustainable BuildingZahaZaha HadidZaha Hadid ArchitectsZHA








