A new office building” WoodHub” that gathers several government agencies under one roof in the centre of Odense is a pioneer project in large scale timber construction and the largest timber office building in Denmark.
The new office hub accommodates 1,600 public employees in a climate responsible, modern and flexible multi user building that carefully fits into its surroundings.
With its 31,000 m² solid timber structure, the project reduces lifetime CO₂ emissions by 5,400 tonnes compared to a conventional build and is seen as a national flagship in documented low carbon public architecture. Visible glulam columns and partially exposed CLT floor structures serve as recurring load bearing elements, delivering both technical performance and sensory quality while storing carbon.
The façades are made from recycled aluminium in red brown hues that echo the surrounding brick buildings, creating a coherent composition. Their varied depths, attuned to the sun path, provide passive shading that eliminates the need for mechanical screening while ensuring generous daylight and a comfortable indoor climate.
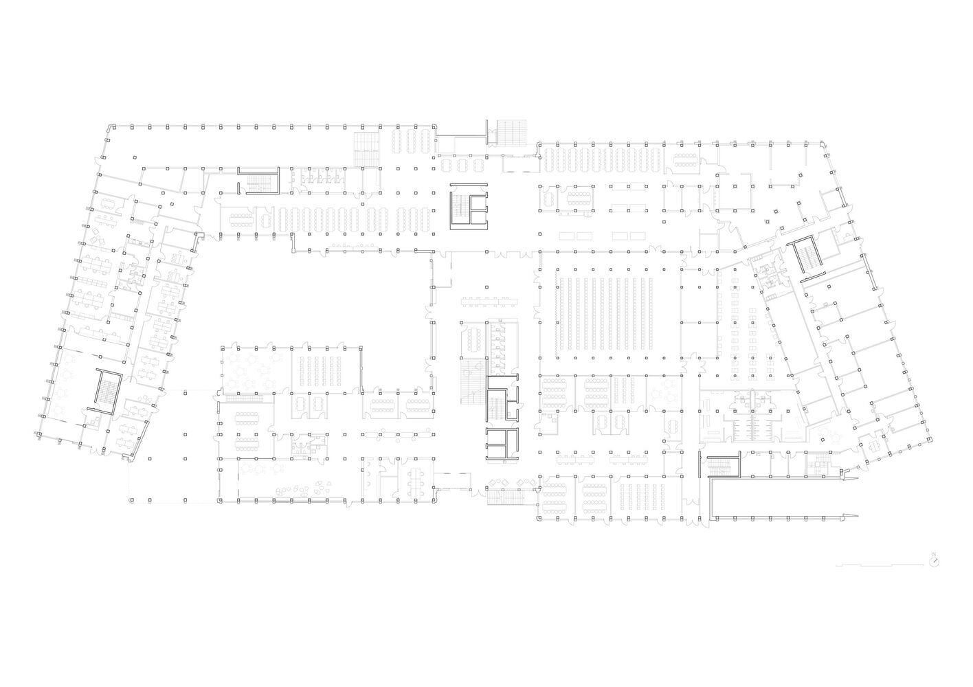
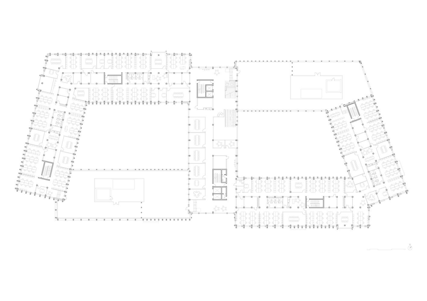
BLENDING WORK, CITY AND NATURE — The spatial organisation sets a robust and adaptable framework, balancing office work-spaces with social meeting places. Interiors can be re configured as needed, supporting long term adaptability.
Two staggered, C shaped office wings face east and west, ranging from three to six floors, and meet in a seven storey central wing containing most meeting rooms – designed to maximise knowledge sharing and collaboration.
At ground level, a meeting centre, canteen and public front office functions connect the building to the city, linking urban life with the inner garden. Niches and recreation spaces along the outer façade strengthen dialogue between the workplace and the public realm.
The building rises to its highest point at its centre and recedes in steps towards neighbouring structures. Roof terraces, raised courtyard gardens and green courtyards extend work-spaces outdoors, supporting local biodiversity and providing spaces for breaks and meetings.
Project Info:
Architects: C.F. Møller
Country: Odense, Denmark
Area: 36500 m²
Year: 2025
Photography: Rasmus Hjortshøj
Main Contractor: NCC
Engineer: Artelia



















































Anastasia Andreieva is an accomplished Architectural Projects Editor at Arch2O, bringing a unique blend of linguistic expertise and design enthusiasm to the team. Born and raised in Ukraine, she holds a Master’s degree in Languages from Taras Shevchenko National University of Kyiv. Her deep passion for architecture and visual storytelling led her to transition from translation and editorial roles into the world of design media. With a keen eye for conceptual clarity and narrative structure, Anastasia curates and presents global architectural projects with precision and flair. She is particularly drawn to parametric and digital design, cultural context, and emerging voices in architecture. When I’m not analyzing the latest architectural trends, you’ll probably find me searching for hidden gems in cityscapes or appreciating the beauty of well-crafted spaces. After all, great design—like great connections—can be found in the most unexpected places. Speaking of connections, because architecture isn’t the only thing that brings people together.








