Wellington St Mixed Use | Matt Gibson Architecture + Design
Wellington St Mixed Use, An open minded client approached us with the opportunity to renew an awkward, narrow & underutilised infill site in inner Melbourne. Located on a strip zoned as business opposite a freeway at one end and in-tact lower rise residential fabric at the other, the brief called for an adaptable building model housing domestic accommodation along with the municipal requirement for business on one or more levels. The clients – a property industry professional and interior designer who live here with their 2 adult children & partners and a young daughter – saw it as an opportunity to embrace inner city living &challenge the traditional ‘quarter acre block’ housing typology in Australia that they had come from to provide a flexible platform to house a multi-generational household and commercial use on the ground level.
Multi-gen living is become more prevalent in Australia, driven partly the by the housing affordability crisis but also because it offers convenience, better amenity & keeps costs low through shared resource & family support. In this client’s case, there was a very positive connotation around this which was about location, amenity & a vertical living configuration that could allow for both connection & retreat. Population growth in Melbourne is increasing rapidly. By 2050 Melbourne will be 8 million, doubling it’s population in just 40 years. It is a fact that Melbourne has an oversupply of smaller studio apartments (driven by the international investment market) and on the flip side a shortage of quality family housing.
Whilst apartment living is one answer to population boom, another answer looks at a more flexible use of land that densify’s across zones incorporating vertical infill living options and through utilizing multi-gen & co-living formats where resources may be shared to enable higher quality built environments and more affordable living options. Contrasting site conditions at the southern and northern ends of the site define the built form. The southern façade facing Wellington Street divides into ten zinc clad boxes of varying setbacks that respond to the neighbours daylight conditions, internal use and the more granular nature of the residential streetscape opposite.
An existing red brick wall and trace element of the previous building is retained and encloses the external entry stair to the main entry door at first floor level, while the ground floor commercial studio with separate access activates the street interface and along with the other transparently glazed ‘tubes’ above blurs the edge of public and private. At the opposite side of the building the facade takes in northern solar exposure while catering to the acoustic requirements of a busy Freeway. The articulated curtain wall echoes the detailing at the front of the building, reflecting the surrounding foliage and urban condition. Direct ground level access to a shared communal park at the rear provides additional amenity.
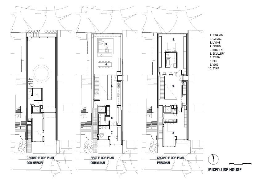
Internally, a large central atrium organises the internal layout about natural daylight, allowing light to penetrate deep into the centre of the building. Mechanical external shades top the void space providing protection from summer sun, while interstitial social zones surrounding the atrium facilitate informal communication between the levels. The ground floor level is given over to commercial use. Above this, internally the program is configured around 3 clear zones – Communal (Living level), Personal (Bedroom levels) and Retreat (access to views and private open space).
Living and sleeping spaces at the northern and southern ends occupy the full building width. Each bedroom features its own bathroom and breakout space and in many ways feel like individual self contained studios. Ensuite services are stacked, taking a multi-residential approach with a view to a possible future use. The spaces are defined by apertures which overview the constantly changing views of the city and the surrounding kinetic urban landscape of the freeway. Dappled sunlight filters through the large eucalypt trees to the north while neighbouring heritage buildings and roofscapes are framed to the south.
Wellington St Mixed Use falls outside of traditional classifications. Located within a mixed use zone and deliberately ambiguous in its typology it presents as a hybrid model perhaps more readily found in somewhere like Japan where uses and zones are commonly mixed and stratified. Similar in floor area to the terrace houses across the road but utilising only a fraction of the land mass this building embraces a vertical (infill) living model with a program pre-ordained for future change – offering flexibility to convert to 2 or 3 residences, a commercial office space, boutique retail or any mix of the above.
This typology, and the rise of multi-gen. & co-living environments reflect the wider pattern of Australian households adapting to population growth, housing affordability and changing lifestyles. While the ubiquitous detached family home often occupies a large land parcel, is inward looking and sometimes fortified, apartment offerings are generally too small to support family life or offer future flexibility. This project puts forward a case that flexible and alternative living models are on the rise & will have an increasingly important role to play in filling the fissures of Australian cities.
Project Info
Architects: Matt Gibson Architecture + Design
Country: Australia, St Kilda
Area: 440 m²
Year: 2018
Photographs: Couretsy of Matt Gibson Architecture + Design
Manufacturers Subzero/Wolf, Tom Dixon, Agape, Creation & Baumann, Dulux, Ecoflor, Elitis, Flandre, Flos, Foscarini, Franke, HAY, Helio Screen, Jieldé, Lightyears, Oluce, Parisi, Skyrange, Smeg, Viridian, +1: Subzero/Wolf
Interior Design: Matt Gibson Architecture + Design with DDB Design
Builder: DDB Design and Development





















Madeline Brooks is a Projects Editor at Arch2O, where she has been shaping and refining architectural content since March 2024. With over a decade of experience in editorial work, she has curated, revised, and published an array of projects covering architecture, urbanism, and public space design. A graduate of the Harvard University Graduate School of Design, Madeline brings a strong academic foundation and a discerning editorial eye to each piece she oversees. Since joining Arch2O, she has played a pivotal role in shaping the platform’s editorial direction, with a focus on sustainability, social relevance, and cutting-edge design. Madeline excels at translating complex architectural ideas into clear, engaging stories that resonate with both industry professionals and general readers. She works closely with architects, designers, and global contributors to ensure every project is presented with clarity, depth, and compelling visual narrative. Her editorial leadership continues to elevate Arch2O’s role in global architectural dialogue.








