ROSA Pavilion | Pezo von Ellrichshausen

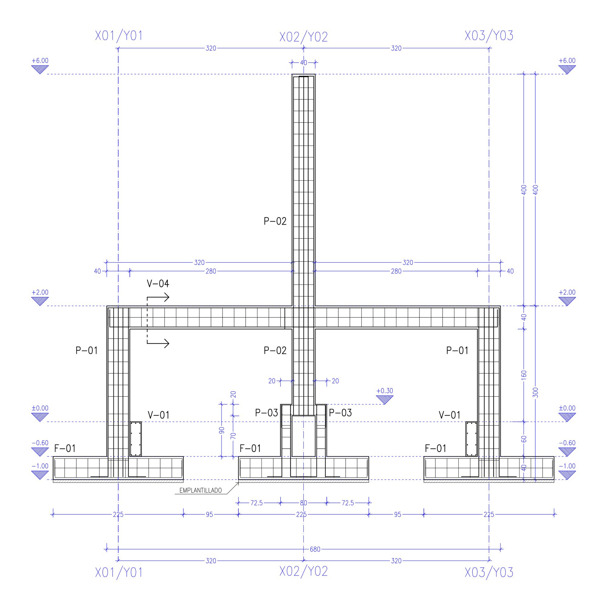
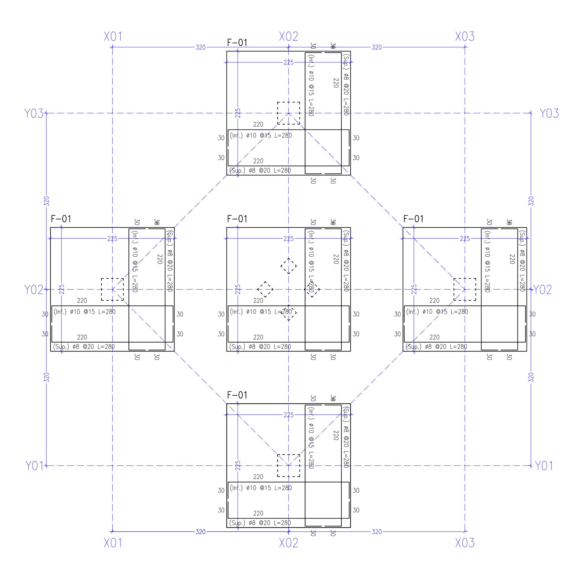
ROSA Pavilion, In its humble dimensions, this shelter occupies the only geographical inflection on the course of a harsh mountain river. Standing alone at the top of a small hillrock, there rests a platform with a slender column at its center. The platform is barely separated from the terrain by means of four thick columns placed at the middle point of every side.

Cortesía de © Pezo von Ellrichshausen1

Cortesía de © Pezo von Ellrichshausen

Not only static but seismic, the rotational stress of this concrete structure is controlled by crossed and diagonal beams embedded into the slab.

Cortesía de © Pezo von Ellrichshausen2

Cortesía de © Pezo von Ellrichshausen

There is a compressed room under this opaque platform, with a structural chimney at its gravitational core. Following the column order, two corners have fixed glass panels and the other two have sliding panels that can be left as open balconies.

Cortesía de © Pezo von Ellrichshausen3

Cortesía de © Pezo von Ellrichshausen

The interior can be understood as a hut lacking interiority, as a single room barely divided into four equivalent quadrants, with a minor variation given by a detached, monolithic staircase at one corner.

Cortesía de © Pezo von Ellrichshausen4

Cortesía de © Pezo von Ellrichshausen

Over the roof terrace, the chimney becomes the central pole of a rudimentary sundial (for an imaginary record of circular time).

Cortesía de © Pezo von Ellrichshausen5

Cortesía de © Pezo von Ellrichshausen

Thus, the experience of this place is bound to its double nature. Depending on the position under or over the artificial ground (a handmade horizon measured with water level), it might resonate with the carved or the aerial world, either cave or a cloud.

Cortesía de © Pezo von Ellrichshausen7

Cortesía de © Pezo von Ellrichshausen

Metaphors aside, the physical effort of climbing up the hill, at least for a foreign sightseer, should be compensated with an intimate meeting by the fire.

Project Info
Architects: Pezo von Ellrichshausen
Country: Chile, Yungay
Area: 40 m²
Year: 2022
Photographs: Courtesy of Pezo von Ellrichshausen
Client: Fundación Artificial
Collaborators: Beatrice Pedrotti, Lukas Vadja, Theo Cozzi, Olga Arzur
Structural Engineering: Sergio Contreras
Construction: Constructora Natural

Sophie Tremblay
Show full profile Sophie Tremblay

Sophie Tremblay is a Montreal-based architectural editor and designer with a focus on sustainable urban development. A McGill University architecture graduate, she began her career in adaptive reuse, blending modern design with historical structures. As a Project Editor at Arch2O, she curates stories that connect traditional practice with forward-thinking design. Her writing highlights architecture's role in community engagement and social impact. Sophie has contributed to Canadian Architect and continues to collaborate with local studios on community-driven projects throughout Quebec, maintaining a hands-on approach that informs both her design sensibility and editorial perspective.

Arch2O.com
Logo