Villa 12-70 | STUDIO SAHEB

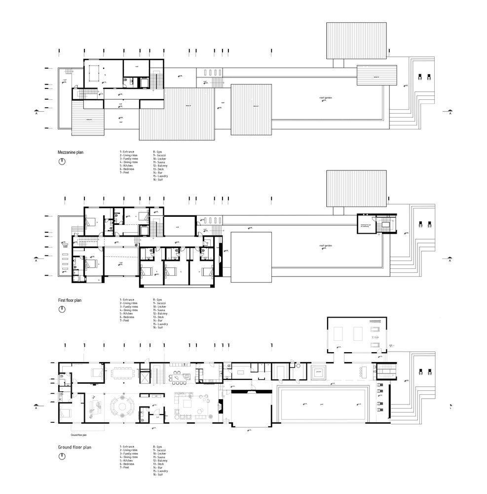
Villa 12-70 involves the expansion of an existing villa near Tehran, originally used for weekend family gatherings. The original 12 × 12–meter house, containing three bedrooms, no longer met the needs of a growing family and required additional living space.

Villa 12-70 / STUDIO SAHEB

© Deed Studio

The design process focused on redefining the relationship between private rooms and shared areas. Rather than creating a single enlarged volume, the project assigns each room a distinct and independent identity, directly reflecting the need for expansion. This concept of independence shaped both the spatial organization and the exterior form, allowing each space to remain clearly legible within the overall structure.

Villa 12-70 / STUDIO SAHEB

© Deed Studio

The strategy was later extended to secondary functions. A semi-open gathering space was positioned at the center of the villa to enable year-round use, accompanied by a staircase leading to the roof and an exercise area. These spaces are conceived as individual white volumes with sloped roofs, unified through a consistent architectural language.

Villa 12-70 / STUDIO SAHEB

© Deed Studio

The expansion extends eastward, increasing the building’s length from 12 meters to 70 meters, with a total height of 6.5 meters. Oriented toward the south, the villa maximizes daylight in all interior spaces while maintaining strong visual connections to the garden.

Project Info:

 STUDIO SAHEB
Arch2O.com
Logo
Send this to a friend