Victoria Tower, Wrapped entirely in a cloak of glass, Victoria Tower stands like a lighthouse along the road between downtown Stockholm and the city airport. The 117,6-meter tower is a landmark for the Kista IT office park and for the conference center at the base of the tower and a manifestation of the area’s high-tech profile.
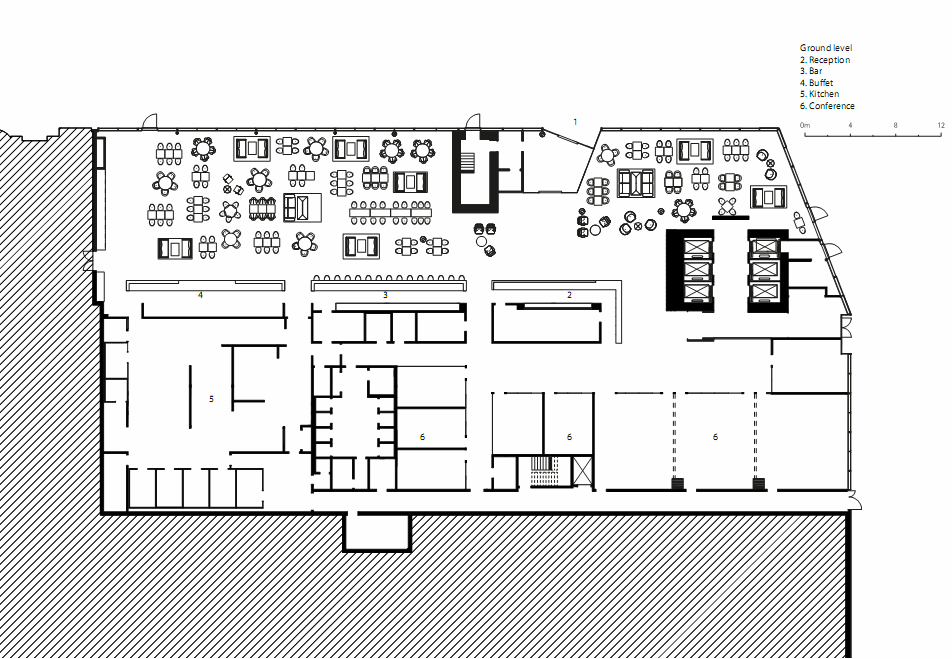
At the base of the slender tower, there is a broad podium that includes a restaurant, conference area and more. The parallelepiped form of the tower is topped by a rectangular cuboid so that the upper floors project out beyond the shaft below. An irregular arrangement of metal-colored triangular panes of glass gives the façade its character. It incorporates eight different types of glass distributed randomly over the surface so that no regular pattern can be detected. Thin layers of metal oxide have been used to give the panes the insulating and solar shading attributes the situation demands.
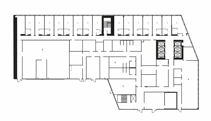
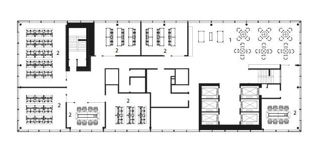
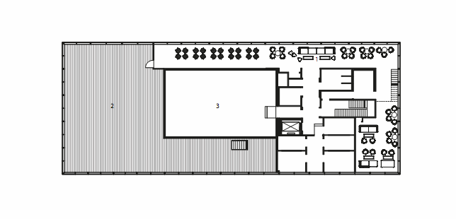
With thirty-four storeys, Victoria Tower is one of the tallest buildings in Stockholm. Twenty-two of its floors are occupied by a 229-room hotel, the rest by offices, conference facilities and a sky bar. In response to a request from the client, Arthur Buchard, the lobby, conference spaces, sky bar and hotel rooms have all been designed with furniture from Vitra.
Project Info:
Architects: Wingårdh Arkitektkontor
Location: Kista, Sweden
Architect: Wingårdh Arkitektkontor AB – Gert Wingårdh and Karolina Keyzer
Interior: Arthur Buchardt, Wingårdh Arkitektkontor AB & Kiil Interiör
Customer: Call Tower Invest AB
Cost: 55 Million Euro
Area: 23000.0 sqm
Year: 2011
Type: Hotel, Office, Mixed use
Photography: Åke E:son Lindman, Ola Fogelström, Tord-Rikard Söderström
















Tags: 2011Åke E:son LindmanHotelKistaMixed UseOfficeOla FogelströmSwedenTord-Rikard SöderströmVictoria TowerWingårdh Arkitektkontor
