Vibe Building is a development with 12 apartments of 65 and 80 m2, located in a popular neighbourhood in the centre of Mexico City. It is a low-cost multi-family building, which has not been an obstacle to generating quality spaces. We have always believed that architecture can function as a form of support, which is even more necessary where the budget is low.
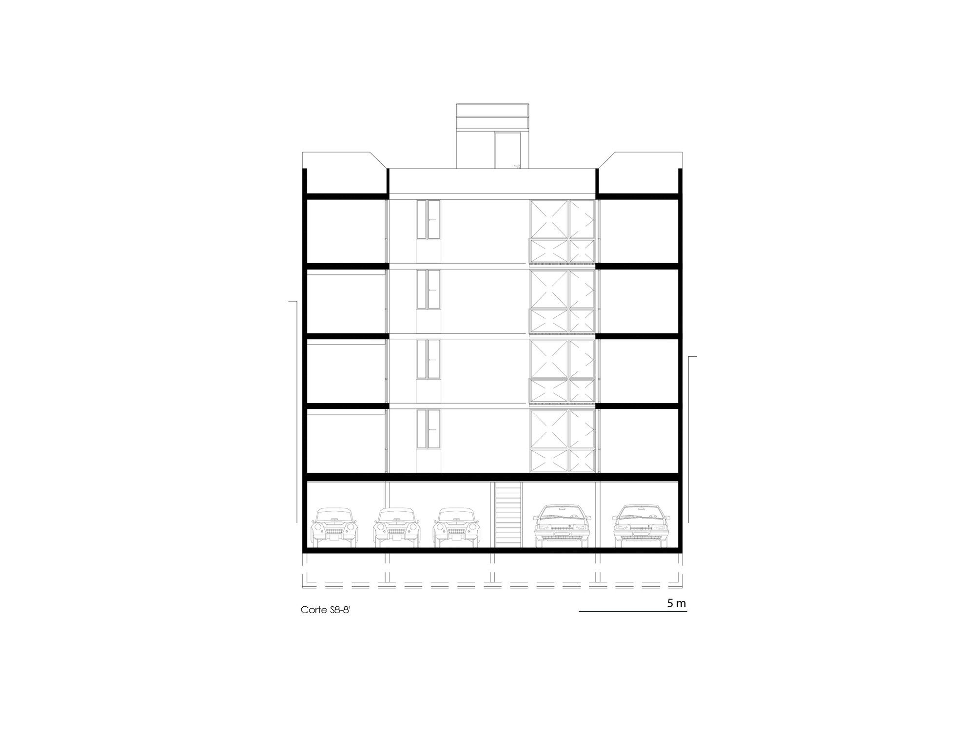
Honesty in the use of materials, a good understanding of the structural system and interior distribution were the keys to developing the project. We used concrete and wood as the main materials to experiment with finishes that reveal the structural walls inside the apartments. In this way, VIBE is structured through four axes that cross the lot longitudinally, dividing the strips of use ending in the facade, with the rhythm reflecting the construction system – concrete walls with prefabricated Mexican patent elements.
The savings achieved are invested in opening the spaces of each apartment to the exterior and providing them with terraces. The terrace, the living-dining room and the kitchen merge into a single space that enjoys a much higher level of lighting and ventilation than expected and gives spaciousness to the apartments with rather reduced initial dimensions. It should be noted that VIBE was a project where we were able to execute —for the first time— both the design and the construction of the project, allowing us to take the project to its ultimate consequences, from our passion for taking care of every last architectural detail to demonstrating that good architecture does not depend on a large budget.
Project Info
Architects: COOP Arquitectos
Area: 1275 m²
Year: 2019
Country: Mexico City, Mexico
Photographs: Jaime Navarro
Manufacturers: AutoDesk, Sika, CEMPOSA, Cemex, Dica, Mezcla Brava, Vitromex
Lead Architects: Mar Tomás, Óscar Sangines





























Isabelle Laurent is a Built Projects Editor at Arch2O, recognized for her editorial insight and passion for contemporary architecture. She holds a Master’s in Architectural Theory from École Nationale Supérieure d’Architecture de Paris-Belleville. Before joining Arch2O in 2016, she worked in a Paris-based architectural office and taught as a faculty adjunct at the École Spéciale d’Architecture in Paris. Isabelle focuses on curating projects around sustainability, adaptive reuse, and urban resilience. With a background in design and communication, she brings clarity to complex ideas and plays a key role in shaping Arch2O’s editorial

