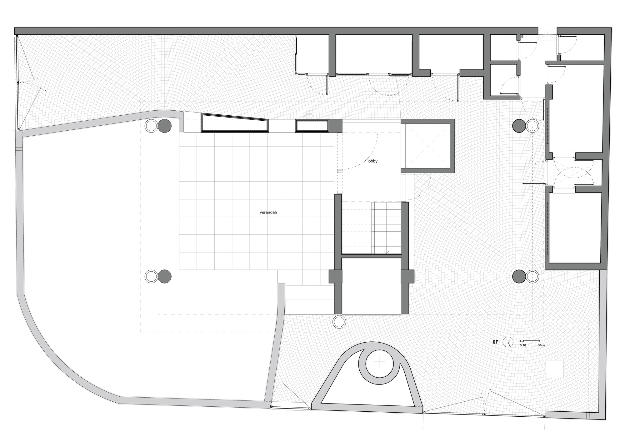
Tower House is an experiment in vertical living. A typical bungalow of 400 square meters is squeezed into a footprint of 6.5 x 12.5m, forcing the program up five stories rather than spread along the ground. Despite the stacked floors, the design generates the experience of living in a house, with a diversity of spatial types throughout its section. At the same time, it takes advantage of the benefits of moving vertically with efficiently organized services, views across the city, and greater potentials for both stack and cross ventilation.
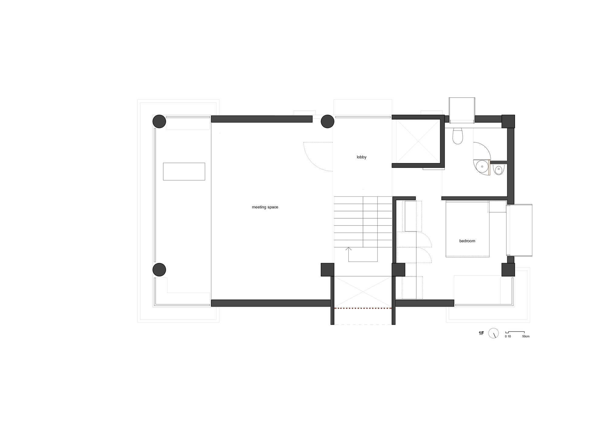
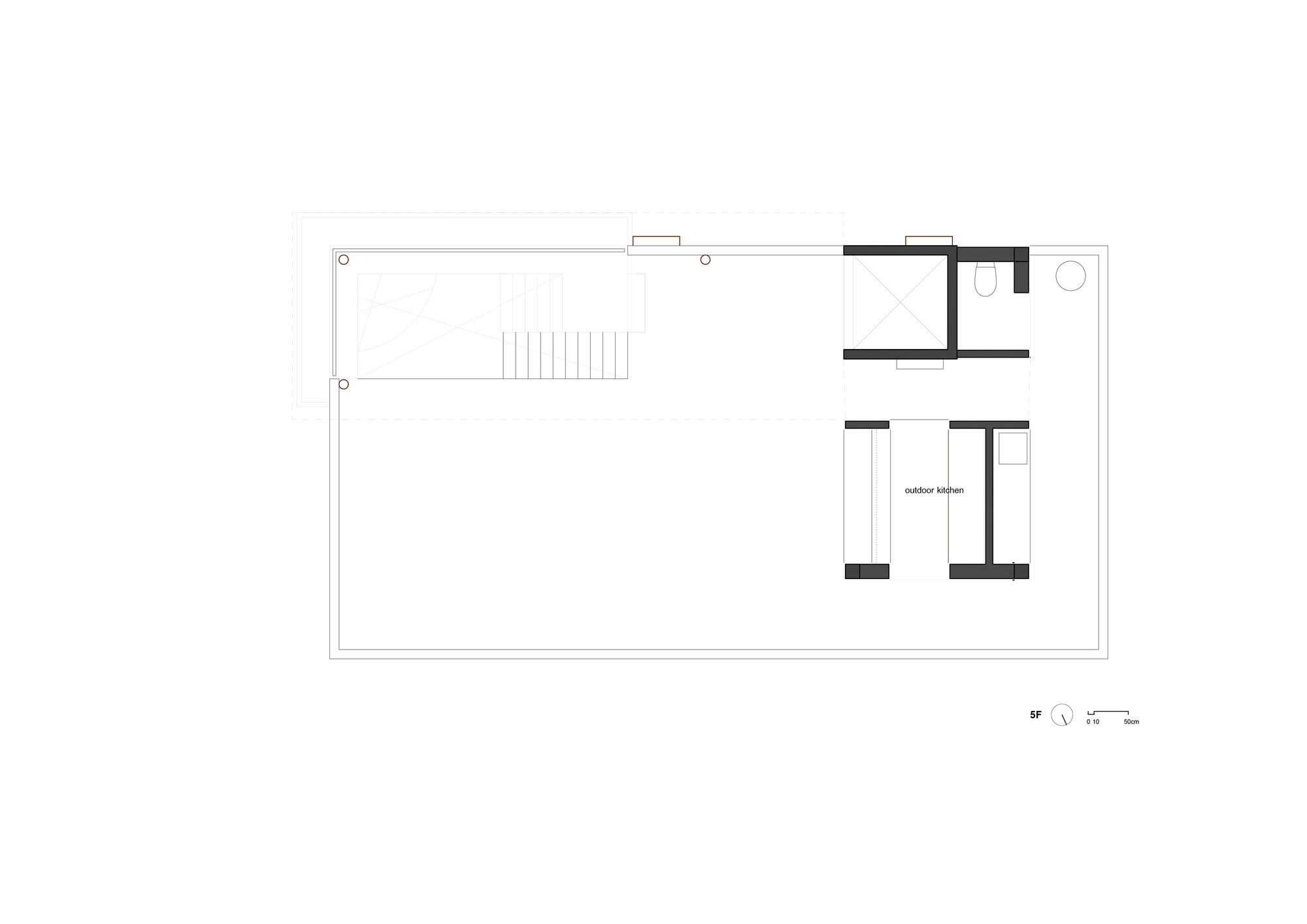
A concrete frame provides the skeleton, while central vertical circulation allows openings on all sides, and an outward looking entry to every room. Walls wrap the interior spaces, while balconies move around on each floor to open new vistas. Rooms are treated as pockets within the larger framework, minimizing the need for air conditioning and maintaining the connection to the outdoors. While balconies bring a corner of outdoor space into the room, punched windows around the wall create an intimate experience, whose deeply protected view is found only from a seated position.
The design balances two driving forces: conveying a house not a tower, and using verticality for an efficient, climate responsive building. The central stair, critical for both, is the core of the design. It organises services and treats vertical movement as part of the house. Each room opens from it and moves back toward it. On first and fourth floors, glass panels reveal the stair and further envelop it inside the rooms. As a passive cooling element, the semi-open stair draws air through the house, while ventilation in each room can be controlled by opening windows. A ceramic rain screen filters light and shields the stair from water, protecting the privacy of the space.
Project Info
Architects: BandukSmith Studio
Country: India, Ahmedabad
Area: 400 m²
Year: 2015
Photographs: Sachin Bandukwala
Manufacturers Atlas Schindler, Saint-Gobain, Brown, Domal, Jaquar Artize, Kandla, piccolo, schnidler, sonya ceramic, tipwood: Atlas Schindler
Supervision: Mayurbhai
Fabrication: Suresh Panchal
Carpentry – Framing: Kantibhai & Brothers, Ganpathbhai
Plumbing: Usman Khan
Polish & Paint: Prakashbhai
Lead Architects: Sachin Bandukwala, Melissa Smith
Main Contractor: Gopalbhai
Services Consultant: Jhaveri Associates
Structural Consultant: NK Shah Consulting Engineers
Electrical: Rohitbhai
Electrical Consultant: Transenergy
Furniture: Ganpathbhai































