The Dear Jingumae Building | Amano Design Office
Walking down the back street of Omotesando in Tokyo, Japan, a great piece of architectural design stands out. The Dear Jingumae Building displays an impressive renovation design by Architect Yoshihiro Amano, of Amano Design Office. Narrow white bands of steel wrap around the building creating a smooth envelop that is meant to “create a new relationship with its surroundings, to add variety and a rich expression to the street, and to vitalize the neighborhood,” said Amano.
The 25-year old office building is being given the new undulating facade in order to express the commercial functions it will hold. The curved smooth stainless-steel louvers, which were generated by the aid of computer programs, echo the fluidity of soft clothing. They create a beautiful contrast to the ‘physically hard expressions’ of the surrounding buildings.
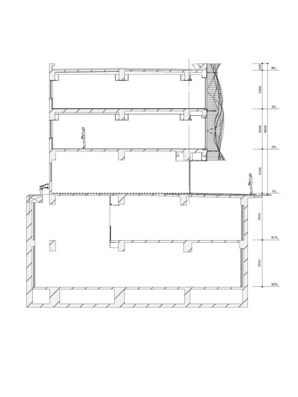
Only two types of radii were used to create the three-dimensionally misaligned radius of the louvers. The envelop wraps around the upper floors of the building casting its shadows on the original and ground floor façade. The bands allow penetration of sunlight into the large windows of the original façade, into the interior of the building.
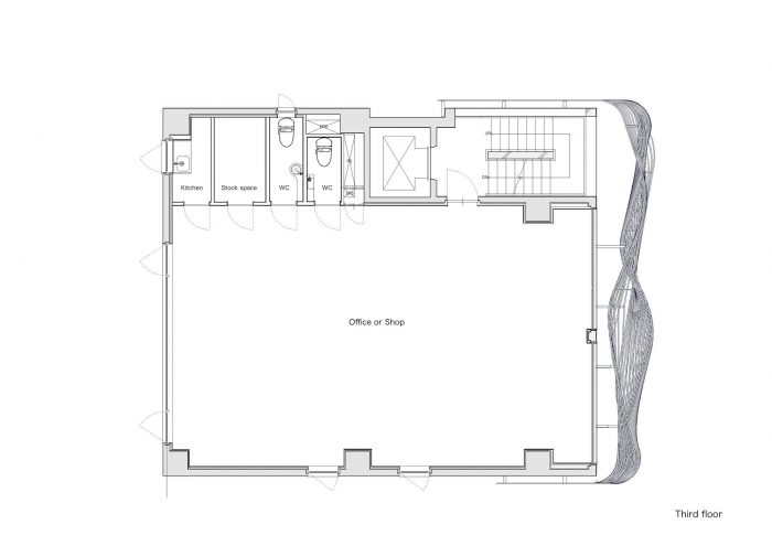
The circulation from the outside façade into the first floor of the building is through an external staircase. The over-ground stories are connected with the basement levels through an internal stairwell. The interior of the building displays a minimalistic design with a flexible open-plan space. The simplicity of interior spaces was enhanced by the addition of randomly-positioned fluorescent tubes. At night the original façade of the building appears clearly from behind the curved bands of the new façade.
The renovation of the building created a new experience for the users of the space as well as for those passing by. It gave a new architectural statement to the surrounding street-scape. The undulating façade is creating a point of interest that is attracting people to the new commercial function within.


































Tags: Office
Madeline Brooks is a Projects Editor at Arch2O, where she has been shaping and refining architectural content since March 2024. With over a decade of experience in editorial work, she has curated, revised, and published an array of projects covering architecture, urbanism, and public space design. A graduate of the Harvard University Graduate School of Design, Madeline brings a strong academic foundation and a discerning editorial eye to each piece she oversees. Since joining Arch2O, she has played a pivotal role in shaping the platform’s editorial direction, with a focus on sustainability, social relevance, and cutting-edge design. Madeline excels at translating complex architectural ideas into clear, engaging stories that resonate with both industry professionals and general readers. She works closely with architects, designers, and global contributors to ensure every project is presented with clarity, depth, and compelling visual narrative. Her editorial leadership continues to elevate Arch2O’s role in global architectural dialogue.





