Foster + Partners has constructed a new office tower in Ho Chi Minh City that is based on the design of the Techcombank Headquarters in Hanoi. The 21-story tower has two main focuses: programmatic, which allows for various tenants and uses, and environmental, which incorporates self-shading features to adapt to the tropical climate. The project aims to achieve LEED Platinum certification.
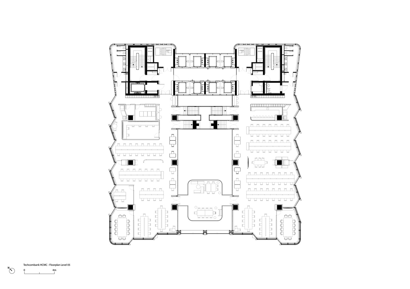
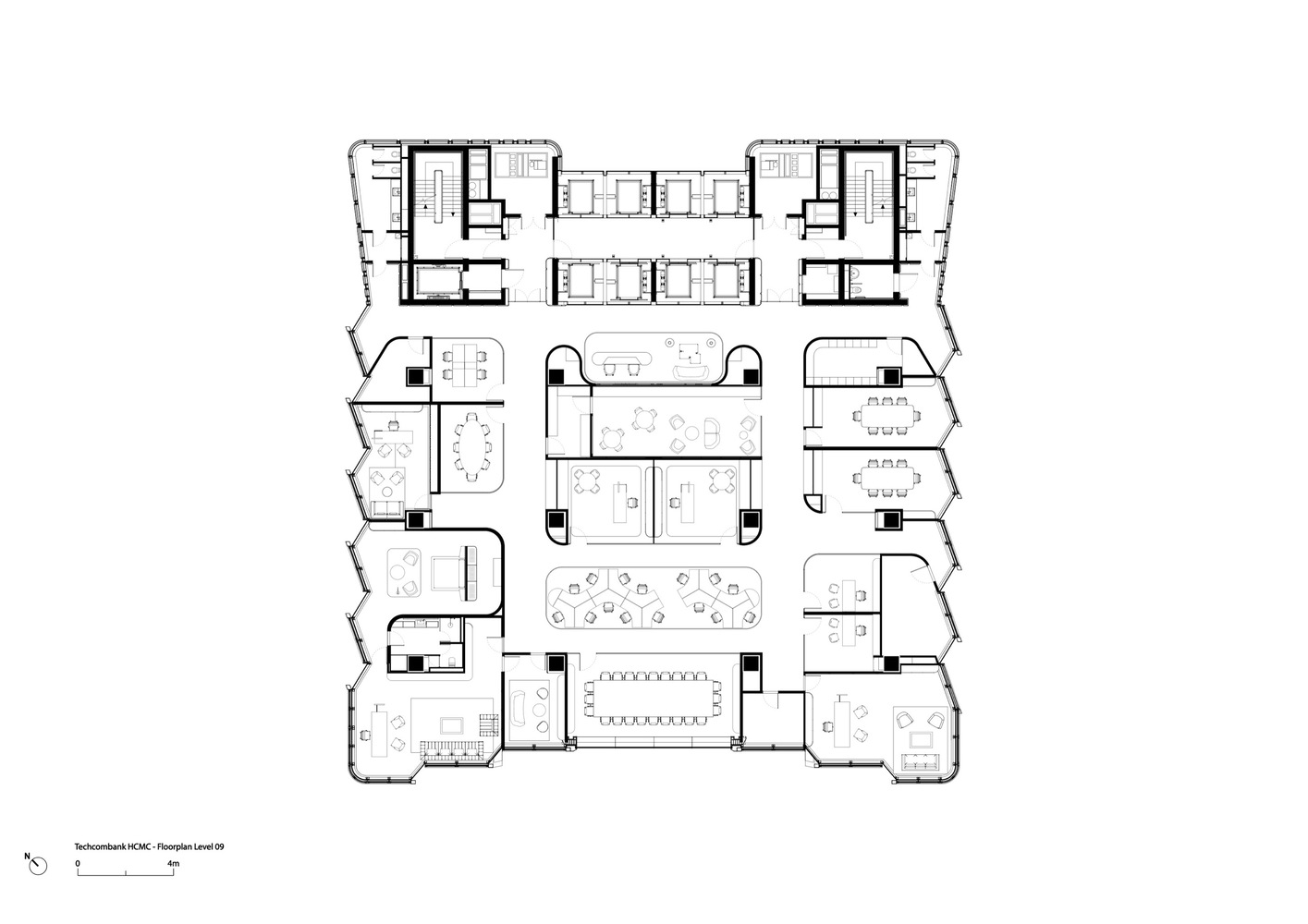
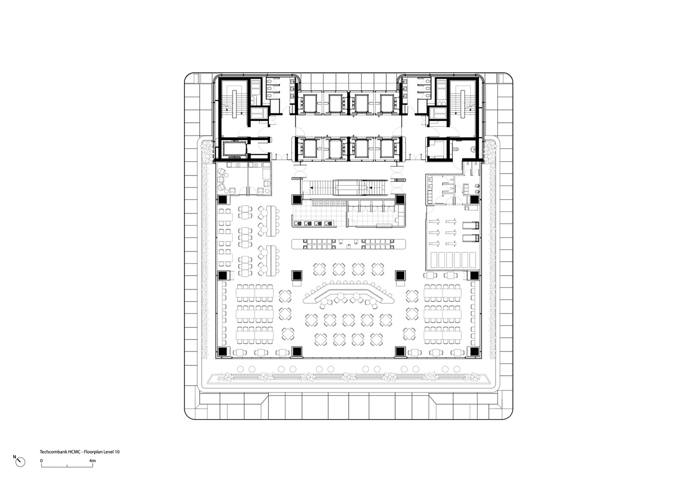
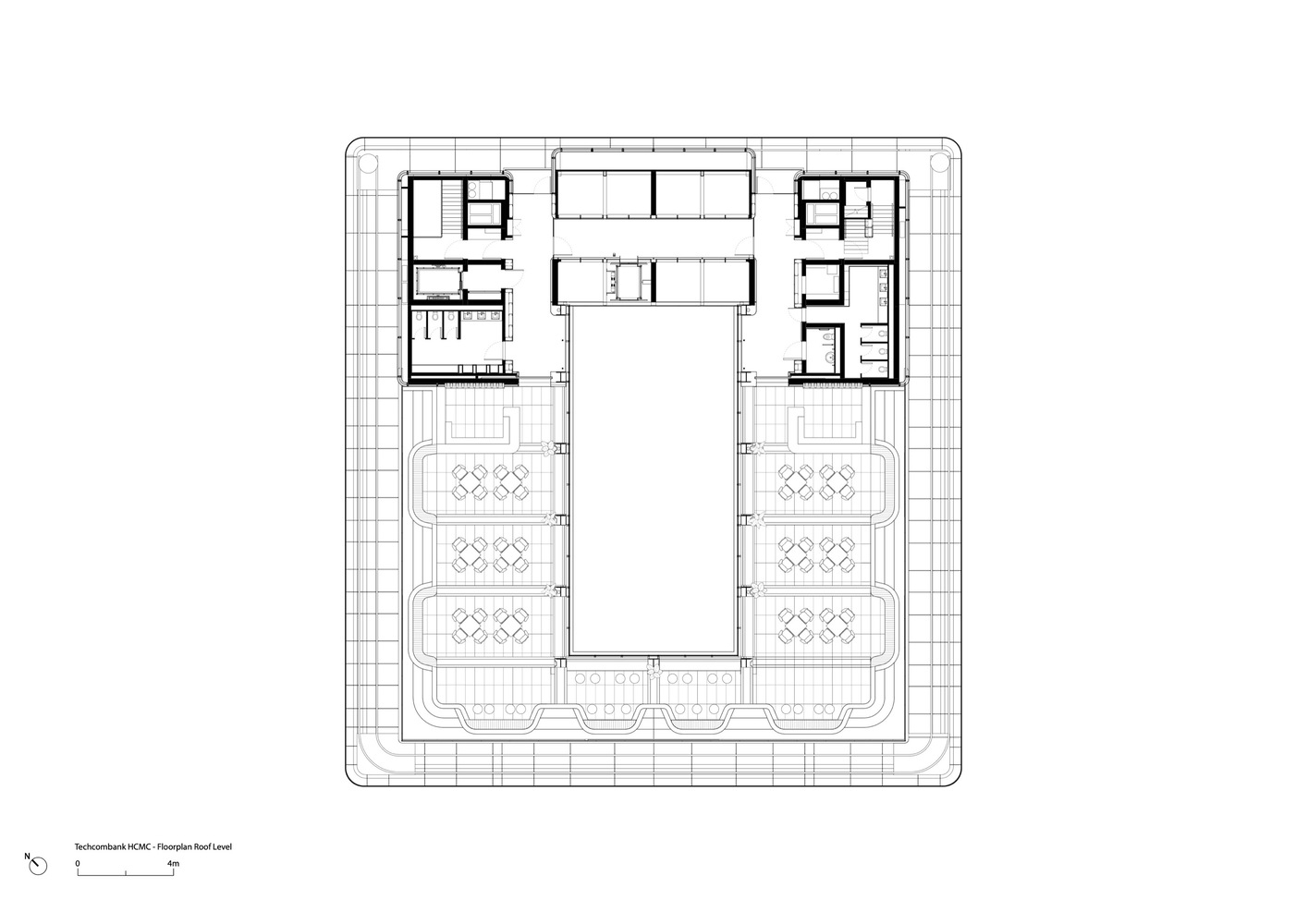
The shape of the tower is determined by the site and the necessary setbacks. It is situated on a plot with two fronts, with one entrance on Le Duan Boulevard and another on Nguyen Du Street. The tower is divided into two blocks, with the central core positioned towards the back, facing the nearby hotel. The space between the blocks is recessed and serves as the amenities floor for employees.
The floorplates of the tower are designed with edges that follow a sawtooth pattern, which helps to self-shade the building based on the angle of the sun. This design also creates a textured appearance on the façade. One side of the sawtooth faces the sun and is shaded using a screen, while the other side is made of clear glass to provide an unobstructed view of the city and surrounding areas.
Project Info:
Architects: Foster + Partners
Year: 2023
Photography: Weerapon Singnoi
City: Ho Chi Minh City
Country: Vietnam





























