Takahara Seikichi Shokudo aims to convert an old building into a restaurant. It had undergone constant remodeling and expansion from the Meiji Era through to the Taisho and Showa Era.
The site is located at a shopping street running east to west in the center of Onomichi City, Hiroshima Prefecture. When visiting the site for the first time, I saw a closed-down bookstore, and completely overlooked the fact that it was over 150 years ago. This was due to the old columns and beams being covered with new building materials. In addition, a large room had been made by adding steel columns, which is ill-suited for a wooden structure of this size. This project started from learning about the building’s history by surveying the original complex structure, which has a narrow frontage and extensive depth.
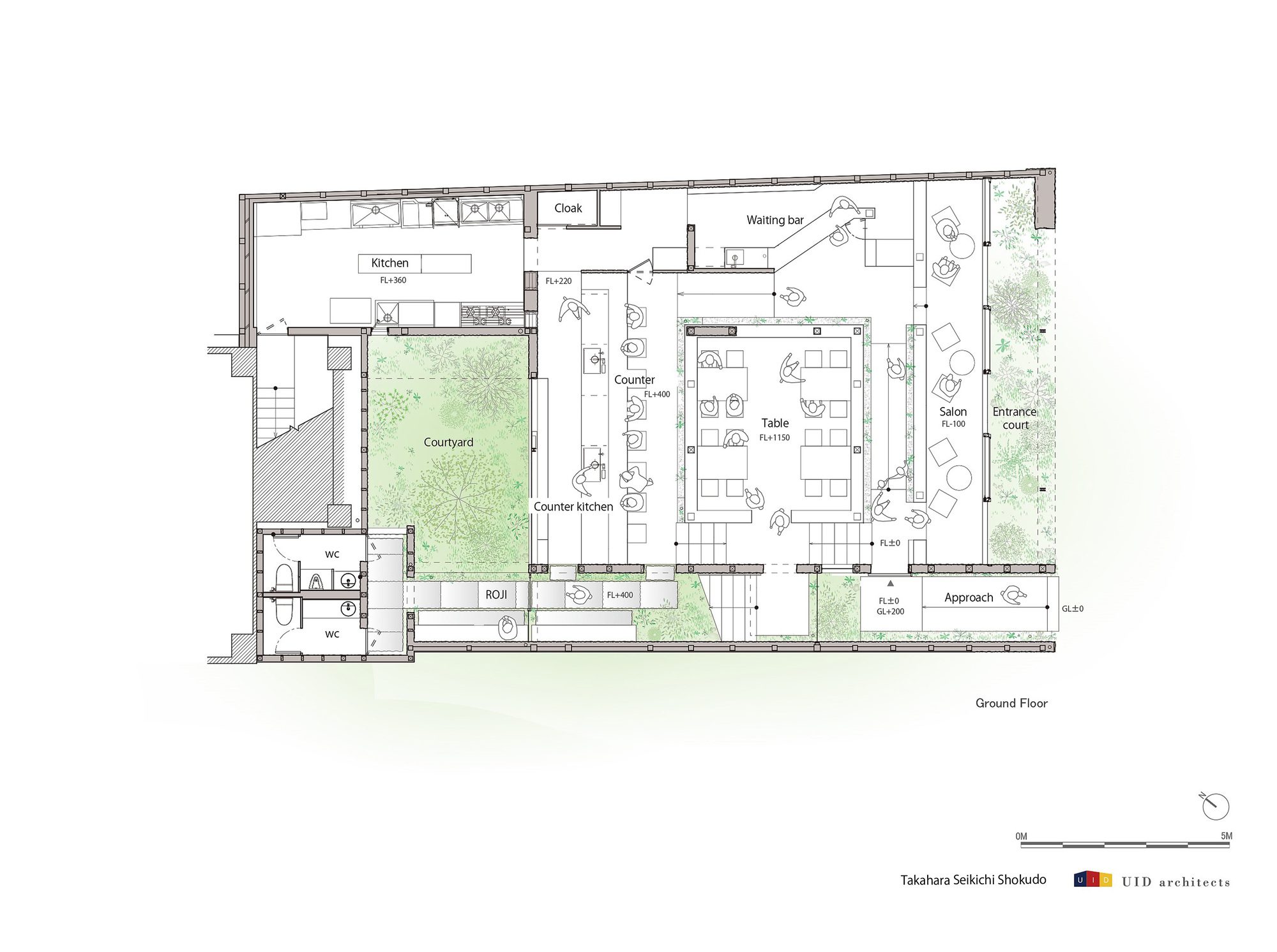
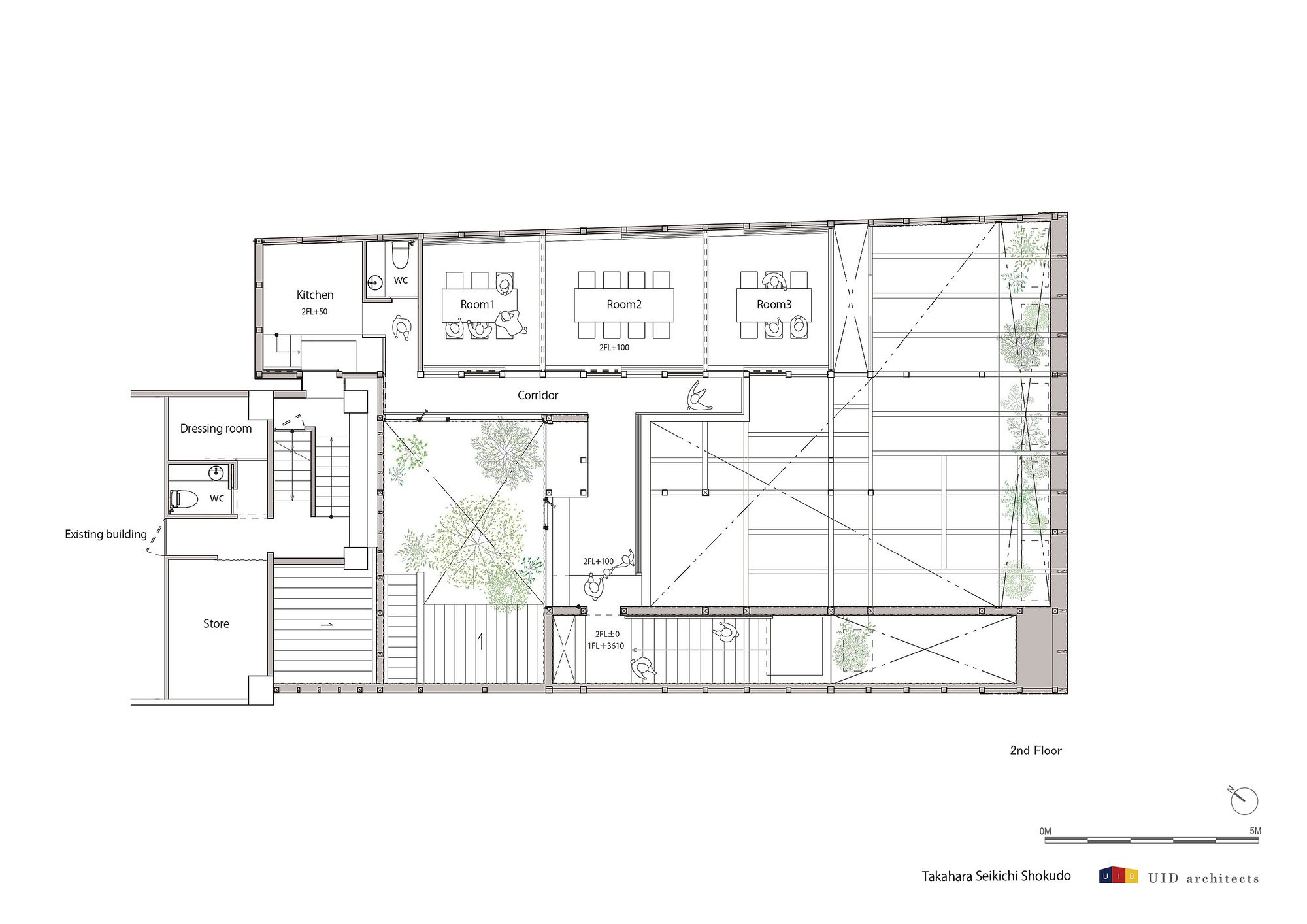
As for the details of the project, after considering the client’s requests on the specific floor space and cost balance, I decided to reduce the total floor space. In addition, I came up with some plans to utilize the existing structure as much as possible and to add a new outer space that included a front yard and a courtyard.
First, I surveyed the existing framework and reconstructed it as a whole by adding new wooden columns and beams, and got rid of the concrete ones. Taking into consideration the next 50 years, wooden sections of the building that were heavily damaged were reinforced by concrete, such as rotting column bases damaged by rainwater and humidity. The entire framework as well as roof tiles were completely redone.
I endeavored not simply to redesign, but rather to remodel and incorporate the history of the building and surrounding area into the final form of the structure. In other words, not only utilizing the old building but remodeling and incorporating the existing architecture which allows customers to perceive diverse materials and unique spaces from the past three successive eras.
Efforts were made not to conceal the new renovation. For example, rather than staining the newly added wooden sections in order to blend them in with the original structure, it was decided to leave the new wooden sections unstained, so that customers are able to enjoy the changes in the wood that will occur naturally over time.
This new structure, which has gone through more than 100 years of changes, embraces several generations and stories in its own graceful space, which a newly constructed restaurant would not be able to offer. I hope this revitalized restaurant will continue to welcome its patrons long into the future.
Project Info
Architects: UID Architects
Country: Japan, Onomichi
Area: 239 m²
Year: 2016
Photographs: Nacasa & Partners Inc.
Lead Architect: Keisuke Maeda / UID
Structural Engineer: Teruaki Tanaka Structural Design Co. Ltd
Landscape Design: Toshiya Ogino Landscape design
General Contractor: Taihougumi Co. Ltd
























Anastasia Andreieva is an accomplished Architectural Projects Editor at Arch2O, bringing a unique blend of linguistic expertise and design enthusiasm to the team. Born and raised in Ukraine, she holds a Master’s degree in Languages from Taras Shevchenko National University of Kyiv. Her deep passion for architecture and visual storytelling led her to transition from translation and editorial roles into the world of design media. With a keen eye for conceptual clarity and narrative structure, Anastasia curates and presents global architectural projects with precision and flair. She is particularly drawn to parametric and digital design, cultural context, and emerging voices in architecture. When I’m not analyzing the latest architectural trends, you’ll probably find me searching for hidden gems in cityscapes or appreciating the beauty of well-crafted spaces. After all, great design—like great connections—can be found in the most unexpected places. Speaking of connections, because architecture isn’t the only thing that brings people together.







