Swedbank | 3XN
Swedbank
3XN’s design for Swedbank is an innovative interpretation of the core values of the organization; Openness, Simplicity, and Care – all materialized in a modern office space with an emphasis on transparency, Scandinavian simplicity, and a dynamic social environment. Thus the architecture is based directly on the organization’s profile as at once a solid, financially sound and modern bank interpreted through 3XN‘s philosophy about behavior and architecture.
The architectural theme is a folded triple-V structure, that breaks up the volume and creates an inviting democratic environment in and around Swedbank’s new head office building. First and foremost the triple-v solution means that the employees are located closer to each other on undisturbed working islands than in a traditional office wing. That contributes to shorter distances, good internal communication, visual contact and knowledge sharing between departments. The location of the atria on the outside emphasizes the organization’s extrovert attitude, bringing daylight in and providing a view out from the offices. A compact building is also created with a smaller overall surface, reducing energy consumption.
The legs of the V structure are linked across the atria by open footbridges springing from floor to floor, making them more than internal shortcuts with extra office space and providing visual contact – they also create variation between the floors. The office floors thus feature openness and varying spaces designed to ensure a healthy working environment with a clear, human scale in a large building.
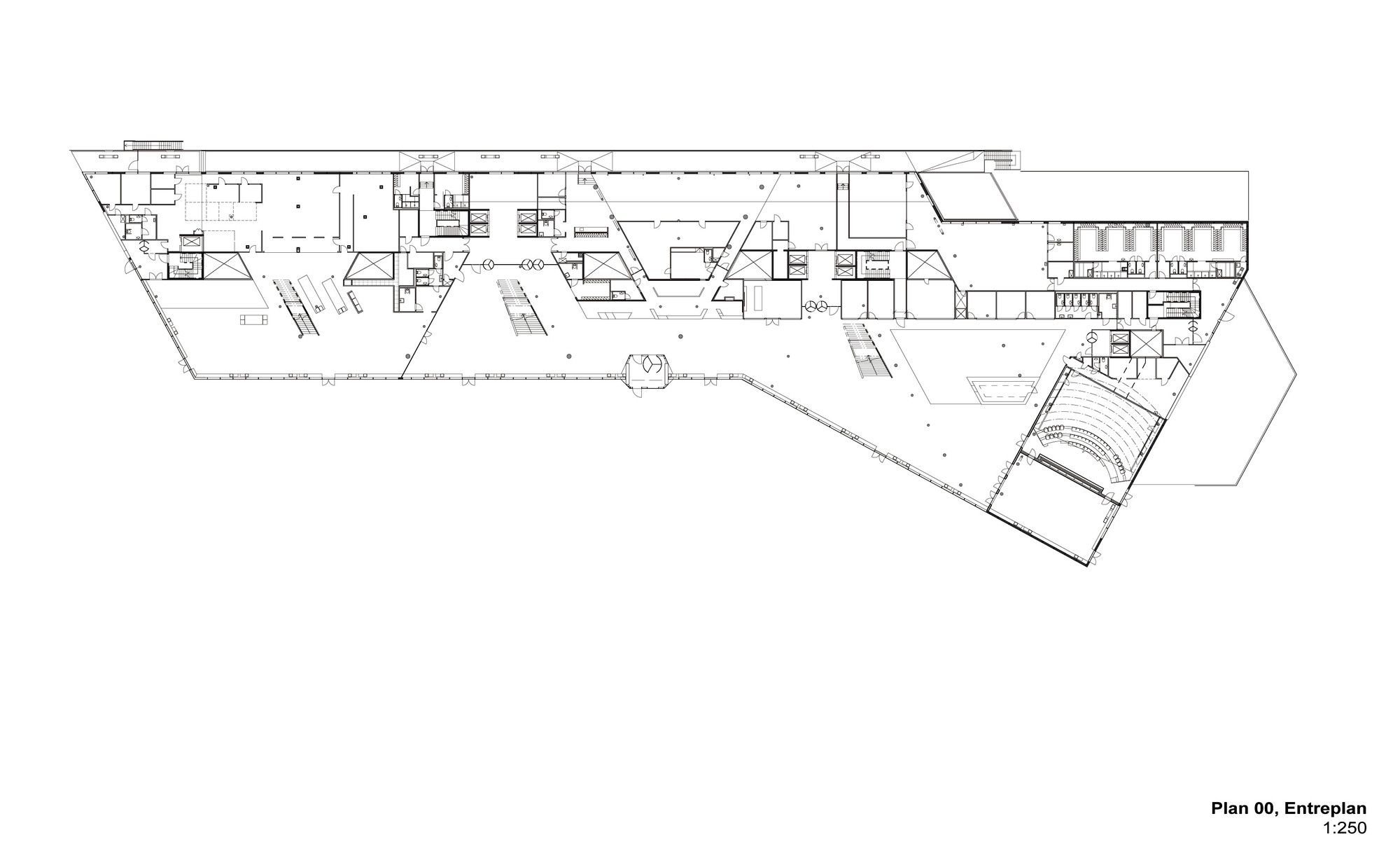
The light triple-V structure breaks up the volume and creates an inviting democratic environment in and around Swedbank’s new head office building. The two lowest floors have a restaurant, conference facilities and reception area with glass facades, to emphasize their semi-public functions and the organization’s openness to its surroundings.
Inside, visitors and staff are met by two sculptural spiral staircases that form the hubs of the buildings. Their design invites them to be used, a means of architecture facilitating interaction and visual contact plus the opportunity to see the building in a different perspective – and providing exercise.
The triple-V structure with up to 7 floors of offices is built over the two lowest floors, creating a partially covered portico, where it extends over the base. The division of the facade complements this functional arrangement and decoratively breaks up the vertical surface into more compact geometric units.
The trading floor is the very heart of the building and is placed directly above the public areas. The high intensity and condensed interior of the trading floor are contrasted by the high ceilings.
The other floors of offices are an open plan with the tips of the Vs, organized as desk islands, with service facilities grouped in a central axis running through the building. The axis provides a natural corridor as the shortest route through the building and creates a natural division into smaller spaces as a room within a room. By grouping kitchenettes, wardrobes, lounge areas etc. into the axis, spaces for informal meetings and discussions are created.
The offices feature three types of offices environment: traditional, fixed office spaces, a number of flexible office units used as temporary workstations for visiting colleagues, and a series of touch-down spaces for quick, informal team meetings. The flexible and varied interior design create dynamism throughout the day, ensuring that the best possible facilities are provided for changing professional and even social requirements.
The building also boasts 3 roof terraces, to provide Swedbank staff with a recreational zone with a fantastic view. Swedbank’s sustainability strategy is highly ambitious. The new Headquarters has received a Gold certification from the Swedish sustainability rating system, the ‘Miljöbyggnad’. This supports Swedbank’s core value ‘care’ that furthermore covers social sustainability.
Project Info.
Architects : 3XN
Interior decoration : Tengbom (3XN has been responsible for the foyer)
Location : Landsvägen, Sweden
Year : 2014
Type : Bank, Office
Photographs : Adam Mõrk

































