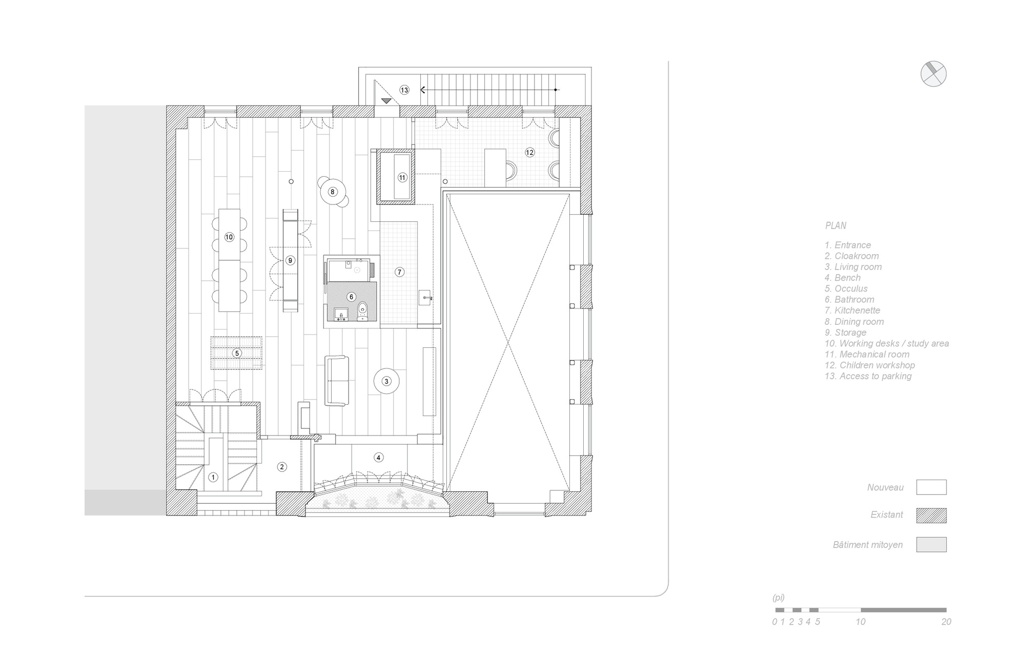
Studio Bluecerigo, This new photography studio is a place of diffusion and creation as well as a place of life in its own right. For the sake of integrating the daily rituals of child care to the complex schedules of work, a large part of the space is dedicated to the children of the owners and the collaborators.
The original space has been completely restructured to create an open and versatile space. The addition of shutters to the openings allows to modulate the natural light, inherent to the work of the photographer, according to a device both simple and aesthetic.
The space is fragmented by the implantation of “objects-places” which reconfigure the fills and the voids to offer unusual visual breakthroughs with regard to the relatively modest scale of the places.
Project Info
Architects: Atelier Carle
Country: Canada, Montreal
Area: 140 m²
Year: 2016
Photographs: Adrien Williams
Manufacturers Dinesen, Artemide, HAY: Dinesen
Conception Team: Isaniel Levesque
Wood Flooring: Dinesen
Millwork: Clef de Voûte
Shutters: Industries La Belle
Structural Engineer: Zarrabi & Associés
Contractor: Domra Construction











