Sports And Show Hall Na Skarpie | Maćków Pracownia Projektowa
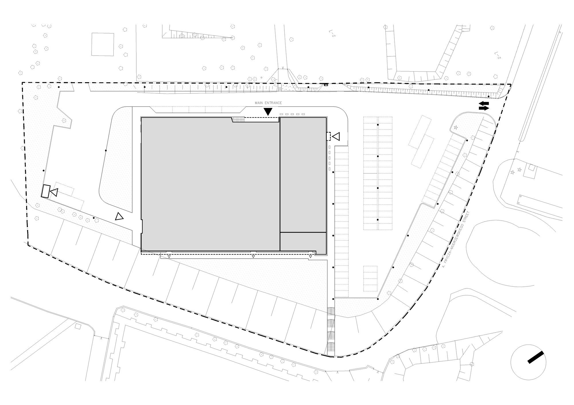
Sports And Show Hall Na Skarpie is determined by the objective of clear spatial arrangement and taking advantage of the valuable location on the slope. The block of the hall – creating a compact form embedded in the open space – was partly open from the slope side.
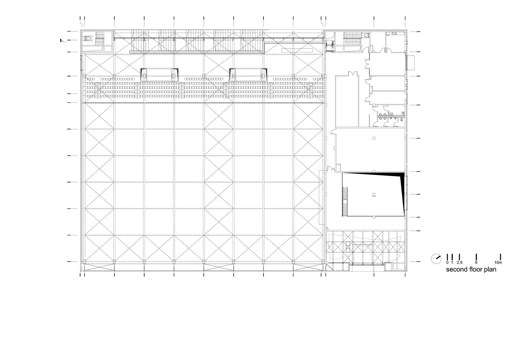
The main architectural accent is glazing on the entire height of the climbing wall and the main hall, together with representative stairs leading to the first floor. In this way some interaction is created between the internal and exterior spaces of the hall, which enables people to observe things happening inside. Simultaneously, the edges of the openings, coated in gold colour, formally separate the light interior of the hall from the exterior wall, which is covered with anthracite metal sheet.
The sports field size 44 by 24 metres takes most of the building’s surface area. Beside it there is a cloak-room facility section and entrance to the room with the climbing wall, and an extendable part of the audience space (600 seats). The fixed section of the audience space (400 seats) is located on the first floor of the building with access from the hall on the ground floor.The design provides an option for extension.
Project Info
Architects: Maćków Pracownia Projektowa
Country: Poland, Bytom
Area: 3285 m²
Year: 2010
Photographs: Krzysztof Smyk
Architects In Charge: Zbigniew Maćkówm Bartłomiej Witwicki, Agata Kowalczyk, Eliasz Matuła, Magdalena Paprotna, Zuzanna Wojtasiak
Investor: Gmina Bytom
General Contractor: Skanska
Installations: Candela, Segesta, Santem
Tags: 2010BytomConcreteGlassKrzysztof SmykMaćków Pracownia ProjektowaPolandSports And Show Hall Na SkarpieSteel
Isabelle Laurent is a Built Projects Editor at Arch2O, recognized for her editorial insight and passion for contemporary architecture. She holds a Master’s in Architectural Theory from École Nationale Supérieure d’Architecture de Paris-Belleville. Before joining Arch2O in 2016, she worked in a Paris-based architectural office and taught as a faculty adjunct at the École Spéciale d’Architecture in Paris. Isabelle focuses on curating projects around sustainability, adaptive reuse, and urban resilience. With a background in design and communication, she brings clarity to complex ideas and plays a key role in shaping Arch2O’s editorial

























