South Asian Human Rights Documentation Centre | Anagram Architects
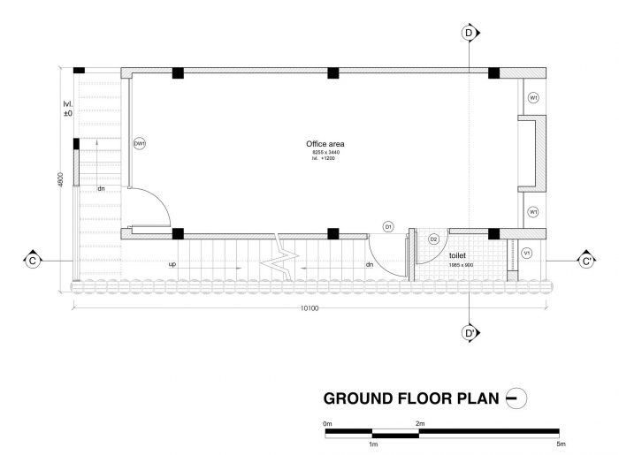
Designed by Anagram Architects, South Asian Human Rights Documentation Centre (SAHRDC) is a non-governmental organization which seeks to investigate, document and disseminate information about human rights. A small office with limited resources, the SAHRDC also runs an internship programme attracting scholars from universities in India and abroad. It required an office to be made on a 50 sqm plot emphasizing spatial efficiency and cost-effective construction.
The site is at a busy street corner with essentially pedestrian traffic. As the site is not very large, the acoustic and visual intrusion of the street activity into workspaces was a key concern. The method of construction adopted had to optimize the space available on site and a modest budget. The orientation of the site is such that the longer 10m side is exposed to direct sun throughout the day. Reducing the resulting solar thermal gain was an important design generator.
Although some fortification against the street was required, it was crucial for the façade “converse” with the external activity. The external wall is conceived as an animated, dynamic skin reflecting the bustle of the street and activating what would otherwise have been a mundane façade with minimal fenestrations. The porosity of the wall maintains a degree of privacy while playfully engaging with the street corner.
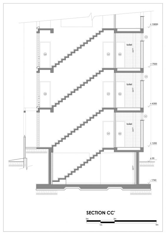
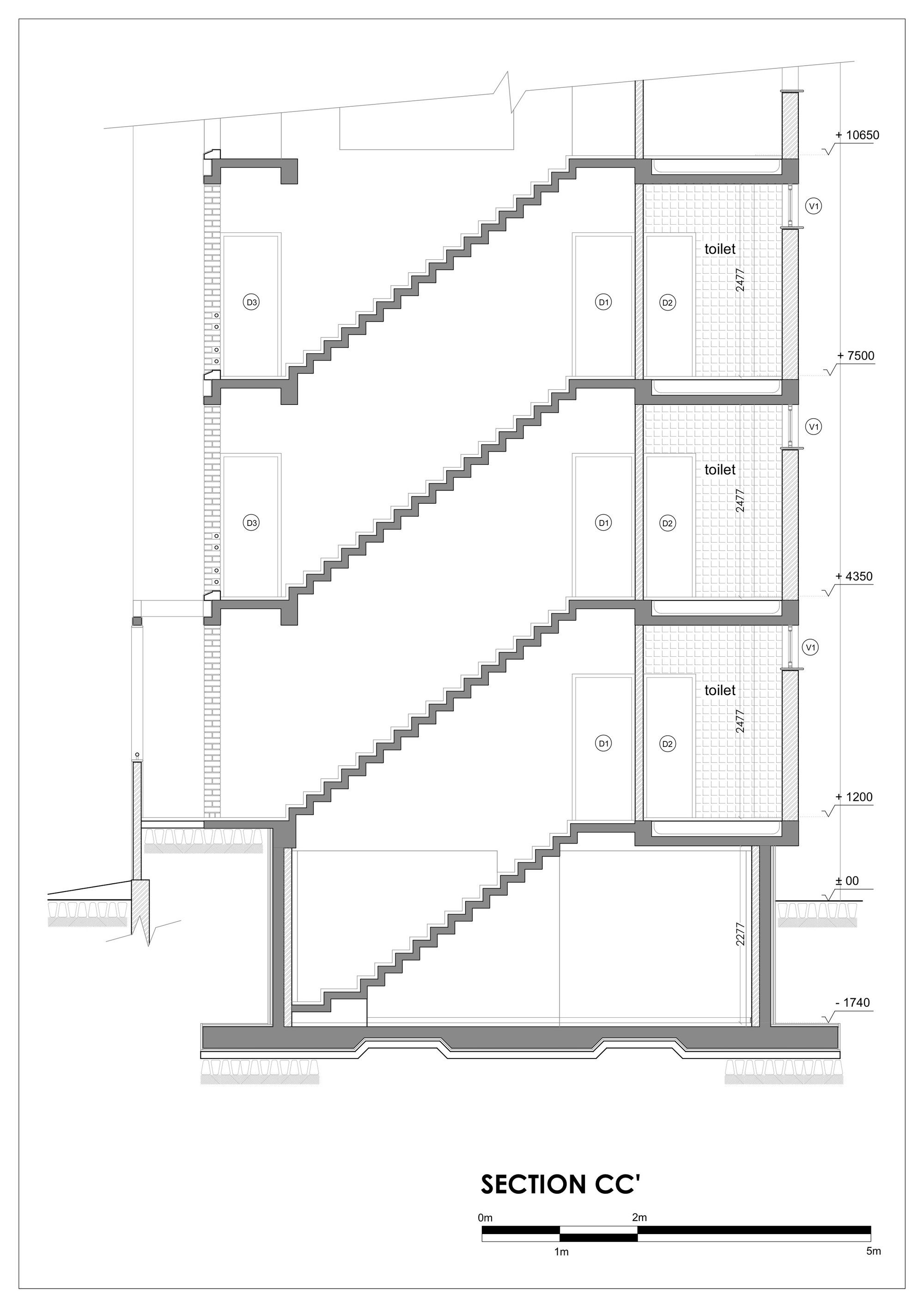
Efficient Space utilization is achieved by creating a single consolidated volume on each floor to be flexibly partitioned as per the client’s requirements. This volume is serviced by a flanking buffer bay of a single flight cantilevered staircase and a toilet stack. Costs were minimized by using exposed brick construction and by creating a beamless soffit at every floor. To create a beamless soffit without increasing the thickness of the slab, a gently vaulting roof was designed. Lateral inverted beams were introduced and flooring laid onto an infill so that each floor plate insulated eliminating the need for a false ceiling.
This buffer bay forms a breathing thermal barrier along the sun facing side. By situating the staircase and toilet stack in this bay, the internal workspaces are protected. The porosity of the wall ensures that the buffer bay is well ventilated and yet shaded so as to reduce the amount of heat transmitted to the workspaces. A single repeating brick module creates a visually complex pattern in the manner of traditional South Asian brise soleils.
A six brick module is laid in staggered courses that create twirling vertical stacks and an undulating surface. The construction of the screen wall was a result of a five-week process devising masonry techniques on site. From verification of plumbline to the structural bonding of the brick courses, methods of bricklaying were devised through a deep on-site collaboration between the masons and the architects.
There were four objectives that the construction of the screen wall was attempting to achieve:
High level of porosity in the central portion of the wall.
Effective horizontal bonding and load distribution between the bricks.
No visible intrusion of any material other than brick masonry onto the façade.
The repeating pattern modules must be complete end to end over the entire width and height of the wall i.e. there should be no deviation in the pattern.
Through computer modeling, the architects realized that a simple rotating module of bricks would create the kind of visual and textural complexity need to achieve the design objective of engaging the street corner.
To begin with, a six brick module of bricks on edge was devised for the construction of the wall. This was so that the module would cubic in shape and therefore directionally inert. Bricks were laid on an edge so that the voids created by missing bricks would substantially contribute to the porosity in the central portion.
But using a 6 brick module created to very basic masonry concerns:
For proper alignment (prevention of corbelling), all the centers of the modules in a vertical stack had to fall on one perfectly vertical axis around which the module would rotate. This was difficult to estimate accurately on site during bricklaying (owing to human errors).
The other issue was verification of plumpness of every course. Dropping an accurate plumb line from one course to the next was not feasible since the brick faces were not on the same plane.
A single vertical stack was built and rebuilt five times on site with both the architects and the Masons trying to co-strategise on a simple and practical brick laying technique that could be replicated by the various masonry teams without relying heavily on the individual skills of a master mason.
The floor slabs were cast at floor-to-floor heights of 3180 mm. This was distributed over two sets of continuously repeating 6 module course patterns so that the 1st, 7th and 13th course are the same. A set of 6 individual course drawings were prepared in a studio and the angle of rotation between them calculated. From these, sets of triangular wooden wedges were made and distributed amongst the masonry teams. They were used by the bricklayers to verify the orientation of the bricks while laying them.
The horizontal interlocking between modules essentially happens through the cross-stack overlapping of the central bricks in the modules. In the porous central portion of the façade, brickwork is reinforced horizontally by a laying a thin section (95mm X 125 mm) reinforced cement concrete beam along the cavity created by the missing central brick.
Project Info:
Architects: Anagram Architects
Location: New Delhi, Delhi, India
Design Team: Vaibhav Dimri & Madhav Raman
Client: South Asian Human Rights Documentation Centre
ProjectArea: 172 sqm
Area: 50.0 m2
Project Year: 2005
Project Name: South Asian Human Rights Documentation Centre
All Images Courtesy Of Anagram Architects




















Tags: Anagram ArchitectsBrickBricksConcreteConstructionDelhiIndiaNew DelhiSouth Asian HumanStaircase







