Seminargebäude ‘Erweiterung Süd’ | Simon Freie Architekten BDA

The Stuttgart Media University (HdM) can look forward to another office and lecture theatre building on the campus of the University of Stuttgart-Vaihingen. After two years of construction, the extension, designed by Stuttgart-based office Simon Freie Architekten BDA, was officially inaugurated on 21 October. It has been used by lecturers and students since the beginning of the summer semester in March 2016.

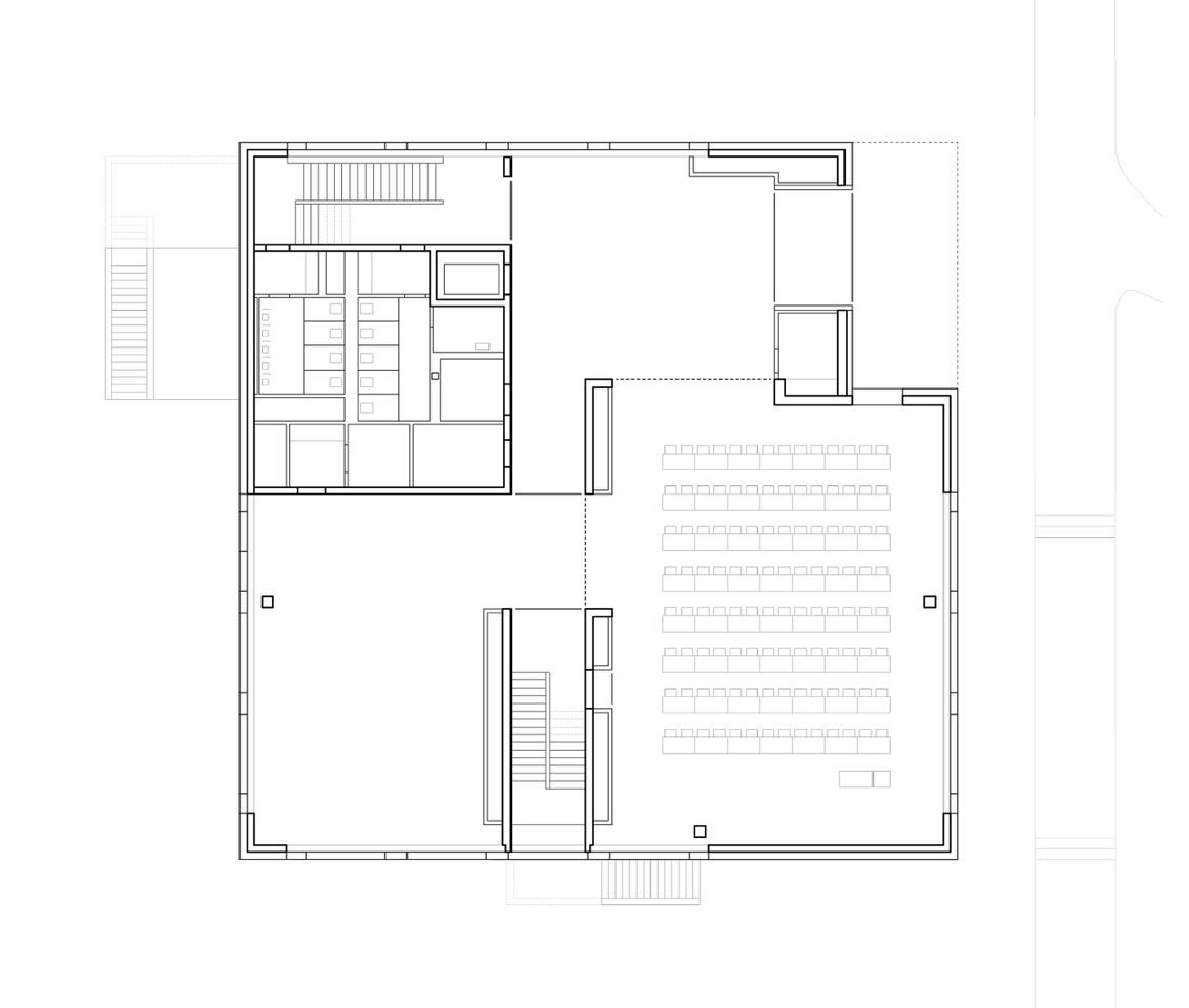
The four-story cube, designed as a freestanding building, offers around 1,850 m2 of additional space, and thus much-needed space relief, to the fast-growing university. In addition to generously designed seminar and project rooms, it also accommodates a lecture theatre, a photo studio, the further education center and a so-called “creativity lab”, which can be used for various functions. An attractive outdoor orientation is established through a west-facing outdoor area which can also be used as a “green classroom”.

photography by © Brigida Gonzalez

Apart from the concise cubic shape, the new lecture building is characterized by simple, timeless elegance. Its closed facades are designed to be load-bearing and consist of prefabricated concrete sandwich elements. The distinctive, large-format window openings with their uniform dimensions create transparency and at the same time ensure a bright, friendly learning environment. The large panes function as a shop window, so to speak – wide views into the surroundings and fragmentary insights into inner processes are equally possible. Wide, padded benches in the windows – the so-called “chill areas” – offer retreats and resting spaces.

photography by © Brigida Gonzalez

Architect Christof Simon emphasized the greatest possible flexibility and openness in the building, taking into account the changing space requirements of a university. The seminar-, project and office spaces have non-loadbearing dry walls, allowing for subsequent modification and adaptation. On the ground floor, flexible glass walls can be used to join different areas into a single surface.
On the upper floors, the rooms are grouped around a central communication and lounge area, which is naturally ventilated and illuminated by breakthroughs in the floor ceilings and a roof glazing as well as the north-facing location. Ceiling breakthroughs, as well as transparent door elements with side glazing, provide a visual reference, and also communication between the floors as well as the individual rooms.

photography by © Brigida Gonzalez

Project Info:
Architects: Simon Freie Architekten BDA
Location: Nobelstraße 10, 70569 Stuttgart, Germany
Area: 3240.0 m2
Project Year: 2016
Photographs: Brigida Gonzalez
Manufacturers: FSB, Schüco, Warema
Project Name: Seminargebäude ‘Erweiterung Süd’

Simon Freie Architekten BDA
Arch2O.com
Logo