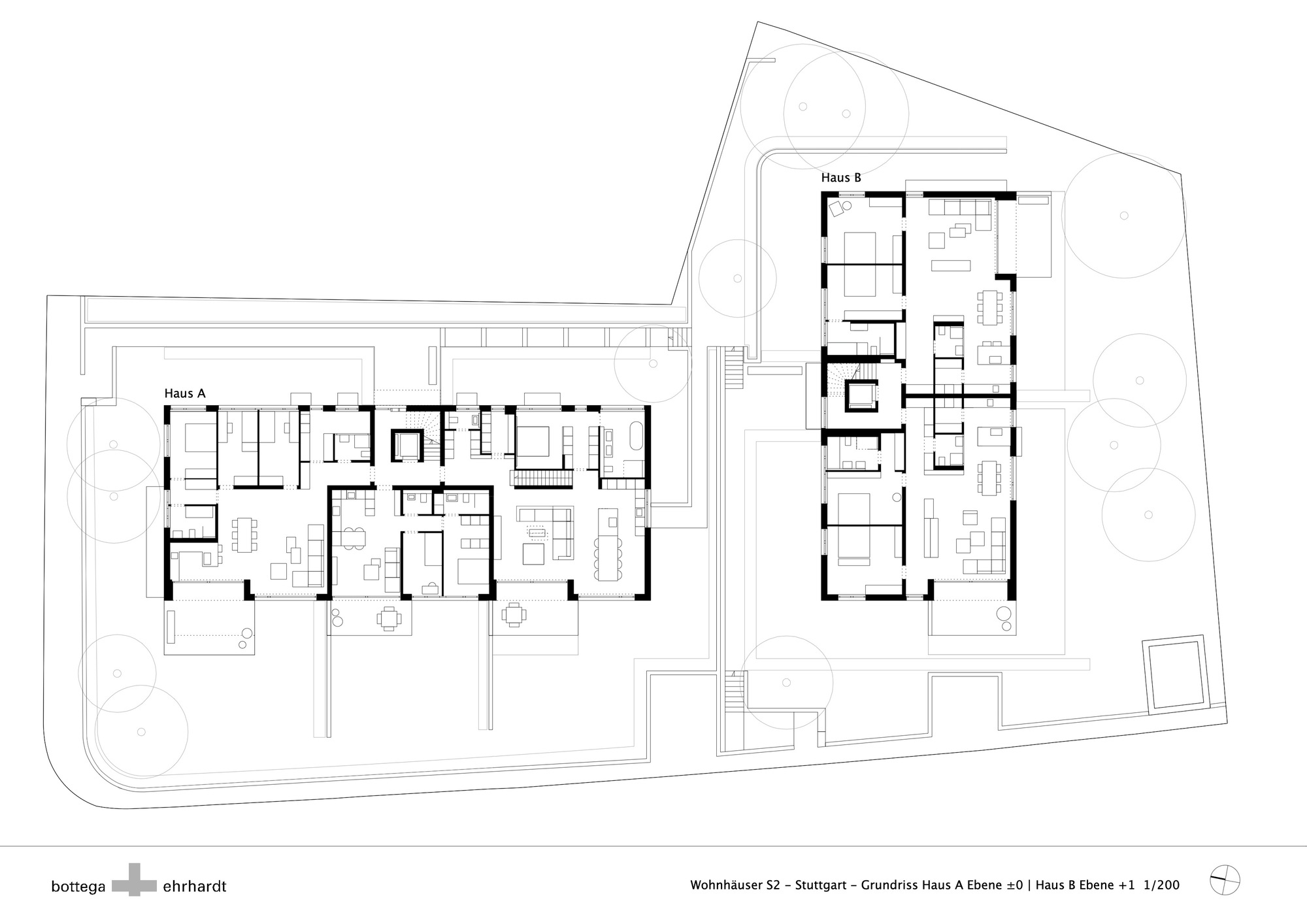
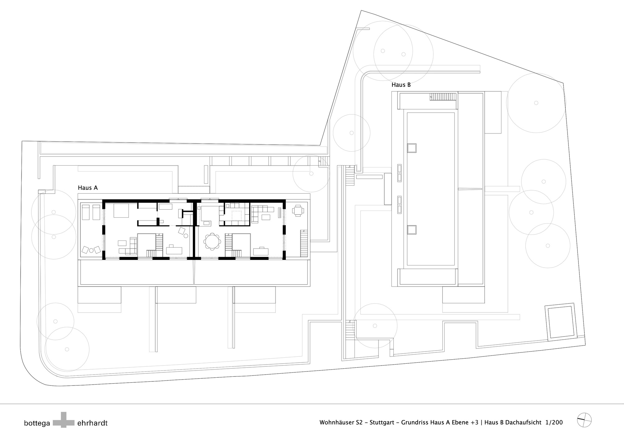
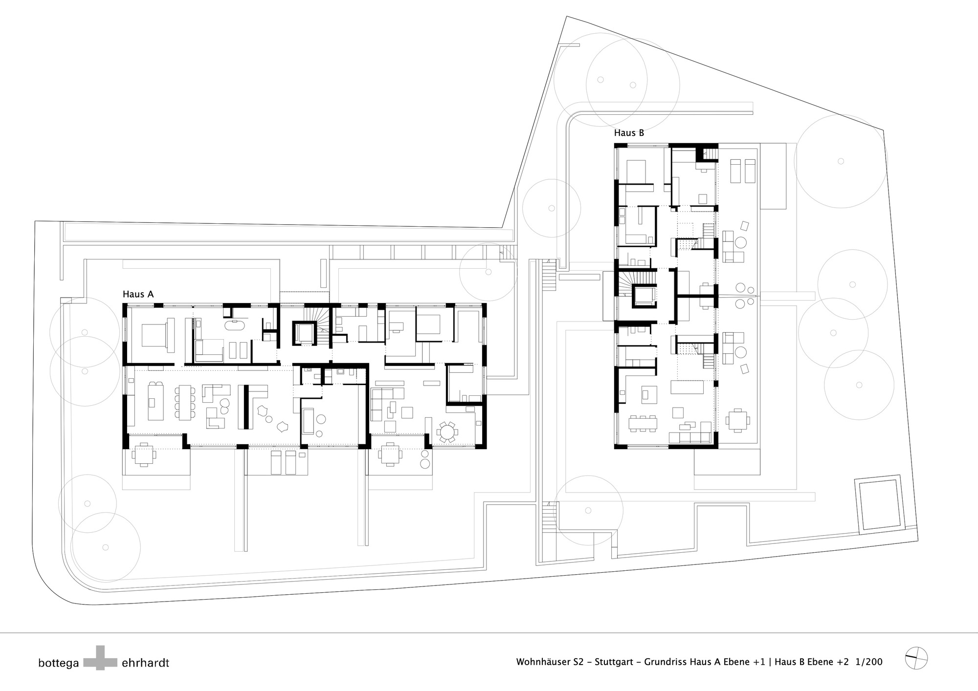
S2 Apartments, The two multi-family houses in Stuttgart represent the idea of modern, high quality as well as sustainable and urban living. The 4-storey buildings with a total of 15 apartments of different sizes position themselves along the park-like hillside property. Orthogonally offset from each other, but typologically identical, the two buildings are staggered with the topography.
Each individual building in turn staggers back upwards and experiences its very own plasticity. This is reinforced by incised loggias combined with cantilevered balconies and all-round roof terraces. A homogenizing materialization through a white aluminum facade unites both buildings and strengthens the shared identity of the new housing estate.
At the same time, the roof draft of at least 70 degrees, which is required by building law, is included in the building’s volumetric. All apartments are oriented towards the South and West, with floor to ceiling windows and sheltered outdoor spaces. The apartments offer light-flooded, high interiors and a variety of views on the green residential area and the characteristic Stuttgart basin encompassing slope edges.
The floor plans are open and allow a generous and communicative form of living. The living and dining areas, in combination with the cooking areas and the adjacent balconies and terraces create a tangible space flow. Each apartment access is spatially associated with a corresponding wardrobe and bedrooms. Attached bathrooms and dressing rooms in turn guarantee a high degree of privacy.
The development of the apartments is barrier-free via bright stairwells; central lifts and directly connected underground garages, which also offer generous bike storage. A high but healthy level of building automation guarantees sustainable living. Well-proportioned interior and exterior spaces and intercommunicating buildings of high-quality and durable materials characterize the contemporary architectural language used here.
Project Info
Architects: Bottega + Ehrhardt Architekten
Country: Germany, Stuttgart
Area: 2000 m²
Year: 2018
Photographs: David Franck
Manufacturers VELUX Commercial, Gutbrod, Otis, Reckli, Reynobond: VELUX Commercial
































