Rundtjernveien Apartment Renovation | Studio Et al
Rundtjernveien Apartment Renovation, Total refurbishment of a 100 m² apartment in a functionalist apartment building on the outskirts of Oslo.
The project is about stripping back rather than adding. The floor and walls are sanded down to the structural layer, to be left exposed. Materials are added where necessary to create warmth, intimacy, and subtly separate spaces. Massive boards of Douglas fir are added directly on top of the structural layer as low platforms for the more intimate functions of the house.
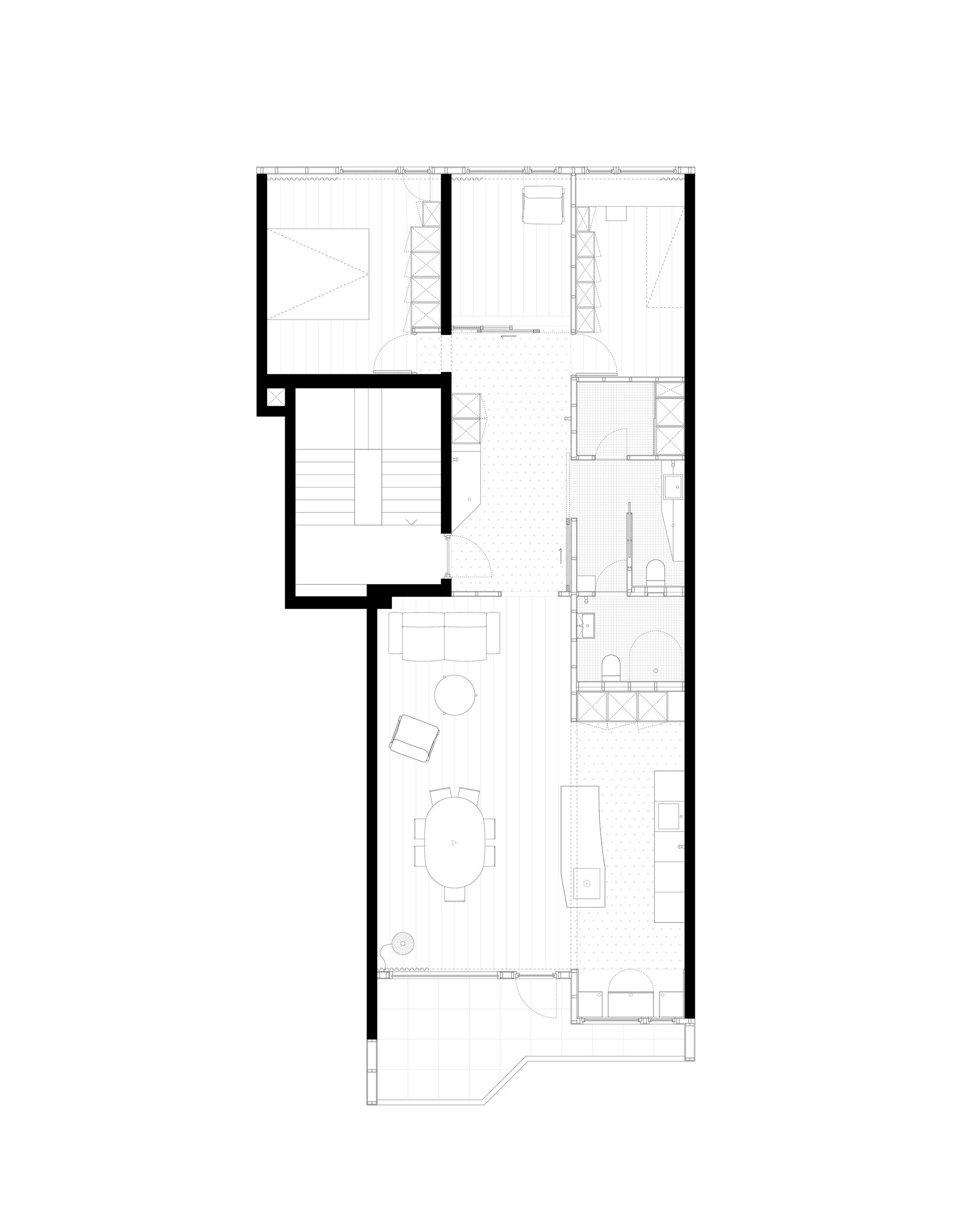
The apartment building is constructed of concrete with load-bearing slabs and shear walls. The plan is essentially an open plan, and the apartment is very narrow, with the potential of being connected to both sides of the building. The new plan enhances the length and sight lines through the house with a generous hall as a connecting space. Light wooden frames with sheets of fibreglass permit daylight to filter into the deep spaces of the plan.
A custom kitchen island cast in concrete with local aggregate mediates the space between the kitchen and living room. A few place-built furniture pieces in pine and stained oak are added to create a warm niche in the kitchen, a place to tie your shoes, put your towels, etc – constructed most directly and simply possible.
The material combination of the house is a composition of natural materials and surfaces, in the materials’ own colors, coming together as a whole, revealing the structural layers of the existing building. The separation of architectonic elements provides the opportunity to change or replace building parts or adapt the structure to a new purpose, while the main structure remains. Together, forming an aesthetic of something unfinished or in constant change.
Project Info
Architects: Studio Et al
Country: Norway, Oslo
Area: 100 m²
Year: 2024
Photographs: Willem Pab
Design Team: Studio Et al
Engineering & Consulting > Other: Byggmester Nerli























Madeline Brooks is a Projects Editor at Arch2O, where she has been shaping and refining architectural content since March 2024. With over a decade of experience in editorial work, she has curated, revised, and published an array of projects covering architecture, urbanism, and public space design. A graduate of the Harvard University Graduate School of Design, Madeline brings a strong academic foundation and a discerning editorial eye to each piece she oversees. Since joining Arch2O, she has played a pivotal role in shaping the platform’s editorial direction, with a focus on sustainability, social relevance, and cutting-edge design. Madeline excels at translating complex architectural ideas into clear, engaging stories that resonate with both industry professionals and general readers. She works closely with architects, designers, and global contributors to ensure every project is presented with clarity, depth, and compelling visual narrative. Her editorial leadership continues to elevate Arch2O’s role in global architectural dialogue.





