Designed by Design in Motion, Ratchut School design reflects the ‘Montessori’ ideal learning environment, where a learning space should resemble a home more than a typical classroom. Therefore, the learning area is split into multiple small-sized “rooms”, where all the children could feel more like home when they come to school. The layout of these “rooms” has been designed to correlate with each of children’s activities.
The best learning environment for children this age is nature, that why the building layout has been carefully planned to support children’s self-learning and integrated both indoors and outdoors spaces, architecture, and landscape to provide different learning activities. This layout consists of different “nature” elements, each suitable for different stages of child’s development. The selected natural elements that have been used to create an ideal learning environment for this project include caves, sand, mounds, and trees.
1. The “cave” concept has been transformed into wooden layers at the entrance. The spaces in between cascaded layers allow the natural light to pass through making them dominant, interesting and creating a gently fresh atmosphere for the kids.
2. “Sand” is used in the playground around the Toddler Building to facilitate the development of the sense of touch in toddlers.
3. Freeform“Mound” is used in the landscape of the court and surrounding areas, where children could run around and utilize the space for an outdoor learning experience. This area also uses to connect all the buildings and learning spaces together.
4. “Trees” are planted to provide shades for outdoor learning spaces.
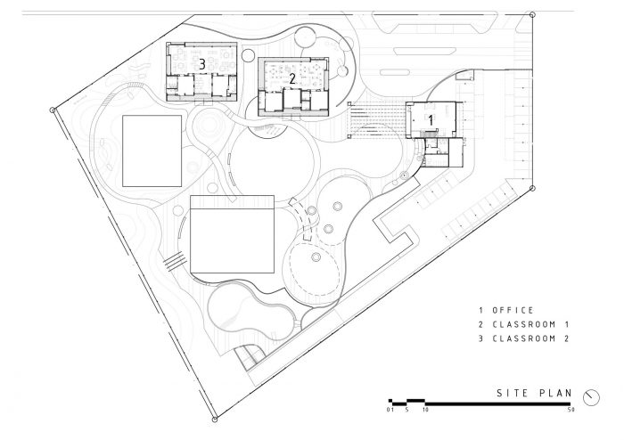
This project also includes one building for parents, and two buildings for classrooms, where the buildings are interconnected with roofed corridors. All the building was painted in grey tones alternating with wooden slat to create a smooth, yet warm feeling to the eyes of the outsiders. The architecture is designed to be simple, which allow children to easily understand the layout of the project. Also, wooden slat helps filter out sunlight from outside, so that children are exposed to just enough sunlight that’s optimal for their visions and learning.
Additionally, this wooden slat will limit children’s view of the outside, which can help decreasing distractions from outside the classrooms and help children to focus better on their current tasks. The classroom buildings also consist of multiple smaller rooms that serve different activities. This planning was inspired by a child’s home, wherein each ‘room’ they could play, learn and develop different skills and knowledge. Thus, a ‘smaller room’ is more suitable and more stimulating for children in learning than a big regular open room.
Project Info:
Architects: Design in Motion
Location: Tambon Hua Nong, Thailand
Lead Architects: Pakapong Leelatian, Narin Bunjun, Sirin Vanichvoranun
Area: 1100.0 m2
Project Year: 2016
Photographs: Ketsiree Wongwan
Manufacturers: AGC, BEGER, Shera
Project Name: Ratchut School




























