RandstandRail Station Beatrixlaan Den Haag | Zwarts & Jansma Architecten
Randstadrail is the new light urban rail network project that is to link The Hague and Rotterdam. The network runs over areas of existing tram and railway tracks, therefore new sections needs to be added. In the centre of Hague, the Beatrixwartier office district, a link between the trams viaduct at the Ternoot stop and the NS (Dutch Railways) a railway embankment was need. So a viaduct was built over the entire length of Beatrixlaan, with a new station midway.
Courtesy of Zwarts & Jansma Architecten
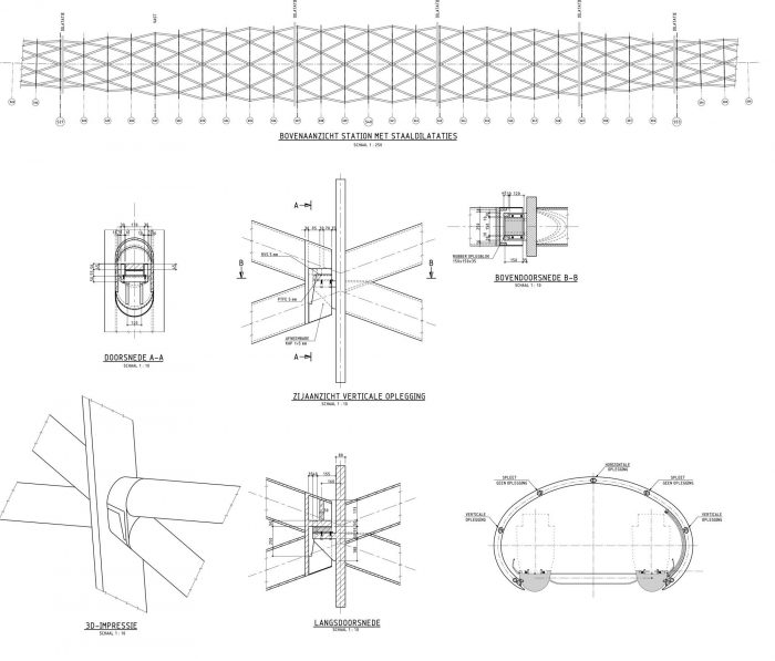
The construction of the viaduct uses a tubular space-frame structure that follows the curve that Joan Busquets had set out for the alignments along with the road networks of Beatrixlaan taken into consideration. To link this viaduct with the existing, the Ternoot stop has to be moved with a new station being designed at its new location.
Courtesy of Zwarts & Jansma Architecten
The viaduct stretches a distance of 400 meters, with a skeleton like structure from rings of mild-steel strips of 10 meters in diameter. These rings are interconnected using diagonal tubes to form an open tube structure. The structural height of the tubes makes it possible to overcome such large spans. V-shaped columns support the space-frame structure; the distance of the column is wide enough to allow two tracks for passing trains. Due to the large spans that this tubular structure can reach, around 40 to 50 meters, this means less supporting columns are needed, reducing the amount of visual obstructions at street level.
Courtesy of Zwarts & Jansma Architecten
The new Beatrixlaan station has a middle platform, in which the tracks split around, separating the ongoing and incoming. The spatial form is derived from a combination of alignment and profile of empty space. This provides the station with exactly enough space for the trains to travel around the platform in the ideal curve. The platform becomes wide where people stand waiting and thinner at the stairs access.
By Shanaire Blythe
















Courtesy of Zwarts & Jansma Architecten
Tags: Station
Anastasia Andreieva is an accomplished Architectural Projects Editor at Arch2O, bringing a unique blend of linguistic expertise and design enthusiasm to the team. Born and raised in Ukraine, she holds a Master’s degree in Languages from Taras Shevchenko National University of Kyiv. Her deep passion for architecture and visual storytelling led her to transition from translation and editorial roles into the world of design media. With a keen eye for conceptual clarity and narrative structure, Anastasia curates and presents global architectural projects with precision and flair. She is particularly drawn to parametric and digital design, cultural context, and emerging voices in architecture. When I’m not analyzing the latest architectural trends, you’ll probably find me searching for hidden gems in cityscapes or appreciating the beauty of well-crafted spaces. After all, great design—like great connections—can be found in the most unexpected places. Speaking of connections, because architecture isn’t the only thing that brings people together.




