Apartment in Tokiwadai, The surroundings of this apartment are defined as a residential area and semi-industrial area in urban planning and their height is suppressed to low by road diagonal limitation and sun shadow regulation. In this sense, the void above which nobody can occupy physically is kept as a secondary product of this regulation. In Japan, the city is always going to be renewed by the buildings scrapped and built repeatedly. On the other hand, the void in the sky keeps to exist from the past to present and it is expected to be continued to the future.
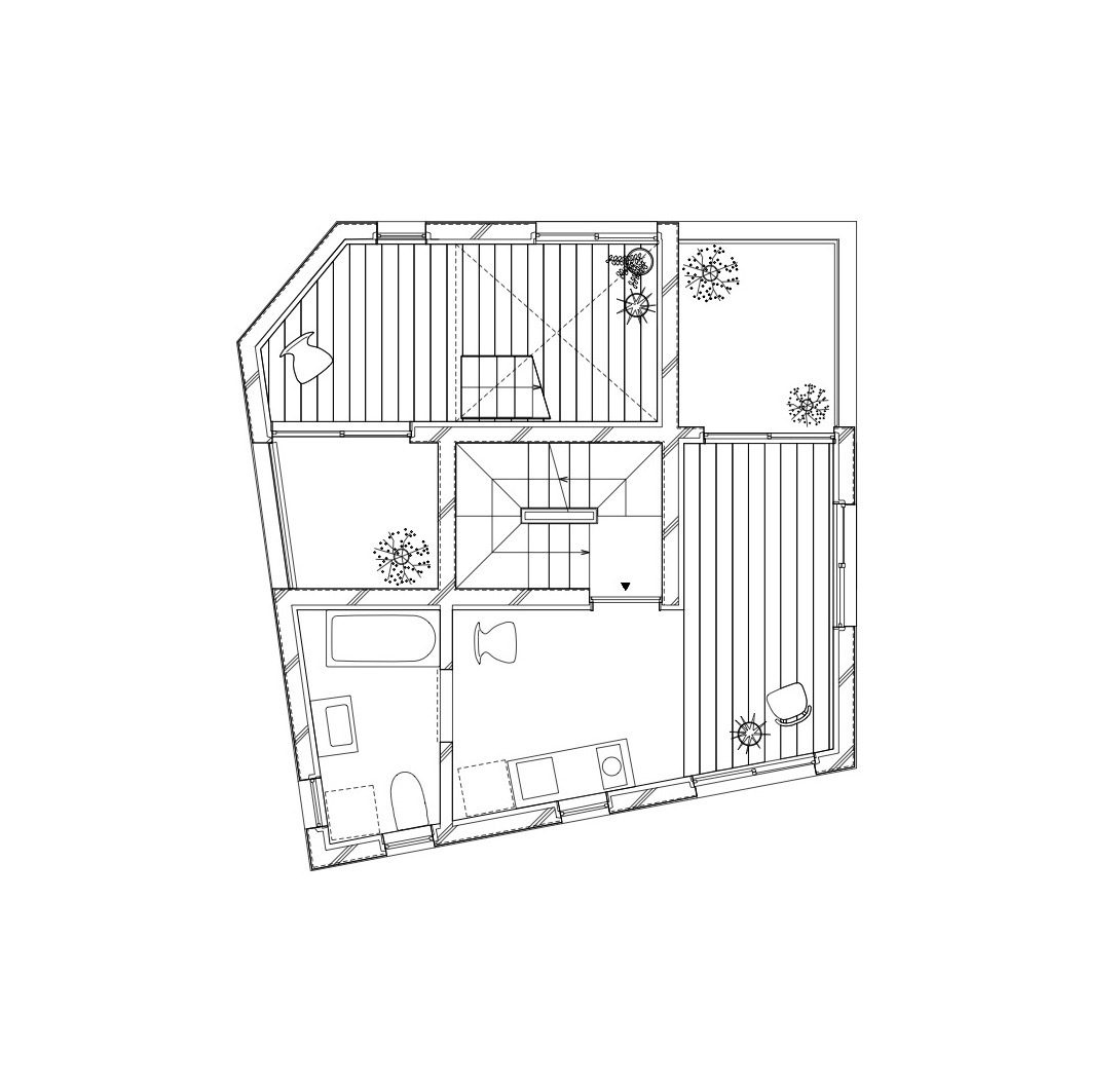
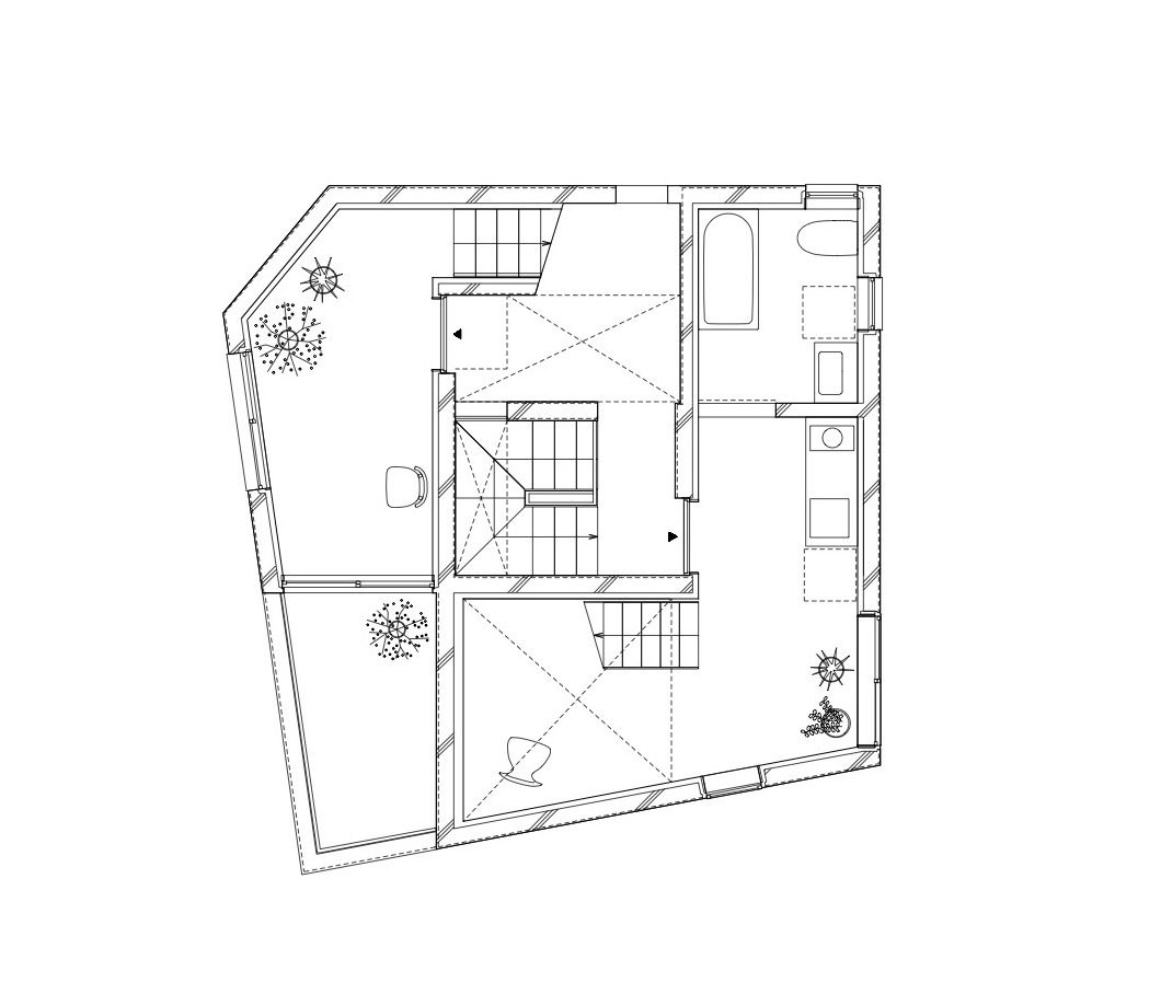
When I designing architecture in such a dynamic urban situation, the void in the sky can be referred to as the static foundation. This apartment is composed of 7 studios. They are stacked in 6 floors including a basement floor. Floor height is suppressed to 2,500mm and minimized staircase is located in the center. L-shaped unit or maisonnette unit in which L-shaped space shifted and overlapped are enclosing staircase core.
Units have more or less 2.5meters width but long dwelling volumes, and their ends are basically opened as a terrace or a bathroom. This spatial composition allows every dwelling to have multi-directed windows and they can face on the surrounding void thoroughly without generating building backside. Because of the tiny width of each dwellings, all space inside is recognized as a perimeter or window side. Whether willing or not, the distance between the body inside and window is so short that the person must feel to take a spill to the outside or that the void is held to a room inside in bodily sensation.
Project Info
Architects: MMAAA
Country: Japan, Itabashi City
Area: 220 m²
Year: 2017
Photographs: Kenta Hasegawa
Design Team: Tatsuro Miki
Clients: True Property Management Co.ltd.
Engineering: Yoshinori Tokuyasu
























