Phan Rang House | H.a

Phan Rang House is often referred to as the “Desert of Vietnam”. It endures a harsh climate, with up to 9 months of arid sunlight and prolonged drought. This sunburnt landscape is covered by endless fields of rocks & stone. Yet, these rocky surfaces are not lifeless or desolate—they are home to resilient vitality.

© Quangdam1

© Quangdam

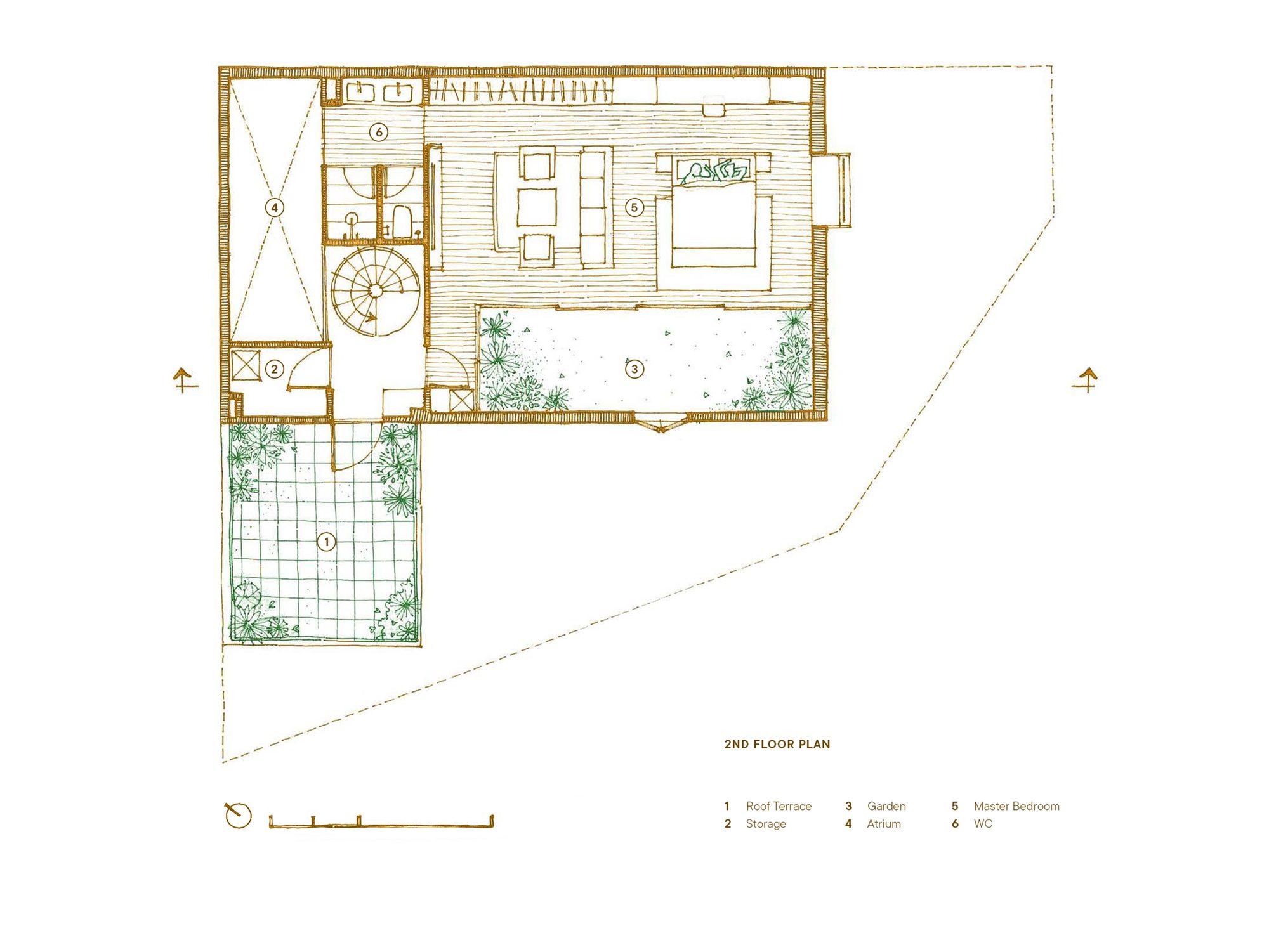
Located at a three-way intersection, the house benefits from open vistas, yet this advantage also presents significant challenges under the harsh conditions of Phan Rang’s climate. This place is directly exposed to intense sunlight from both the east and west. In addition, the southeastern edge of the site receives seasonal monsoon winds carrying the ocean’s heat and humidity into the house. This residence was designed for three generations living together. The requirements include the reflection of the local context while adapting well to the regional climate.

Axonometric2

© Quangdam

Design process – To reduce the intense heat from the east and west – especially under the arid sunlight of Phan Rang – the house is conceived as a stone slab being lifted up, in order to create a buffer space beneath, much like a massive canopy that shelters people from the sun. Private spaces are intentionally compacted; therefore, the house has voids for connections, thermal buffers, and cool air circulation.

© Quangdam3

© Quangdam

The reflection of the local context

Axonometric4

© Quangdam

Adapting well to the regional climate

© Quangdam5

© Quangdam

The existence of balconies, gardens, and windows not only in their aesthetic contribution to residential design, but also in their role as active elements that directly influence the environment and microclimate of the house, shaping the comfort and perception of its occupants.

Project Info
Architects: H.a
Country: Vietnam, Phan Rang–Tháp Chàm
Area: 104 m²
Year: 2023
Photographs: Quangdam

H.A
Arch2O.com
Logo
Send this to a friend