Community centre Herstedlund | Dorte Mandrup Arkitekter
Architectural Concept :
Community Centre Herstedlund provides the framework for joint activities for a new residential area, housing approximately 600 families.The site plan, designed by Juul & Frost, is based on the idea of “the forest and the glades”. We elaborated on this theme as we designed the building as a large stylized tree at the edge of a glade.
The programme of the building had to be very open and with the possibility to grow along with the new inhabitants. The community centre should be able to incorporate many different ages and interests over time, and many types of communities from the informal meeting around an event, summer festival, a big football or presentation to the special interests and common eating.
It will be a local user-driven house of culture where it is possible for multiple independent users to use the building at the same time. The building provides space for all kinds of smaller cultural events in the broadest sense.It should be available to be used at all hours for teaching, dancing, sports, theatre, aerobics, yoga, barbecue, lectures, bridge tournament, children’s theatre and weddings.
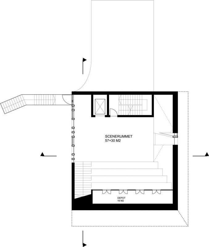
Spatial Disposition :
To exploit the square feet available we cross-programmed the scheme to use the building and surrounding area both independently and in a flow of spatial connections.To emphasize the possibility of mix use, you may enter the building on both ground floor and directly to the first floor by an outdoor staircase.In the following passage, we describe the different types of space and connections:
The Community Centre is surrounded by common outdoor activities. There is direct access to the toilets so that they can be used for all outdoor activities.
A skate board ramp climbs the wall on one side, mountaineering wall on the other and through a hatch in the wall the indoor kitchen is connected to an outdoor barbequing area and eating facilities.In summer time, the kitchen is the heart of outdoor events from summer festivals to Friday bars or spontaneous get-togethers. In the winter the kitchen could also be used as a satellite kitchen for private events in the settlement in addition to events in the building.The Performance Space on the first floor extends the building’s layout by adding a staircase for audience to the volume. The walls lean out and emphasize a stage floor measuring approximately 50 sqm.
It is possible to close the room by shutting a sliding gate in the wall towards the entry. When closed, the stage floor may also be used for smaller events, when there is a need for a smaller spatial area. This is where the adults are drinking coffee after eating together, and this is where the hip hop dance team works out.When open the Performance space is connected by an open staircase to the multipurpose area on the second floor.
The multipurpose space is the largest common space measuring 125 m2. Connecting the performance space is the perfect spatial combination for common eating and parties. Clearance and stowage of tables and food leftovers can be done without disturbing the simultaneous serving of drinks and warming up the dance floor.

The multipurpose space could also be the framework for bridge tournament or serve as a large meeting room which can function independently of the other floors.The Roof terrace offers 145 m2 on the third floor under the sun. It has direct access from the main staircase and lift and contains a water line and a small enclosed court yard for ball playing. It is an out door space, covered with a net catching basket balls astray. It serves as a withdrawn out door space for joint events and complements common activities in the building.
Design and Materials :
The construction is concrete columns and a deck construction of Filigree slabs. Stabilizing concrete elements represents the lift / stair case core.The closed facades are self-supporting sandwich elements in steel.Glass panels consist of energy glass with wood / alu -frames.
External cladding is carried out in a combination of solid or perforated anodized aluminium plates.Interior walls are made of concrete and plaster.The floor on the ground level is slip-resistant vinyl and the overlying levels are floors made with sealants free painted industrial floors. The roof terrace is coated with rubber granules.Ceilings are constructed of fibre glass stretched lanes with underlying acoustic absorbents and basic lighting.

Sustainability :
The project meets the Tier 2 Energy, and has the following environmental initiatives included:
– Solar panels on top of the stair cases in combination with soil heating.
– Differential ventilation principles (Full mechanical, hybrid and control ventilation).
– Possibility for thermo active decks using soil heating for cooling in the summer.
– Collected Rainwater is used for flushing.
– Omission of hot water in toilets.
– Motion-controlled taps and lighting.
Project Info:
Architects: Dorte Mandrup Arkitekter
Project Location: 2620 Albertslund, Denmark
Project Year: 2009
Photographs: Adam Mørk
Project Area: 875.0 sqm
Client: Freja Ejendomme A/S
Constractor: N. H. Hansen og Søn A/S
Construction Engineer: Jørgen Nielsen A/S
Engineering,Electricity & Plumbing: Jens-Peter Madsen Ap




















Tags: 2009Adam MørkAlbertslundcommunity centreCommunity centre HerstedlundDenmarkDorte Mandrup ArkitekterMixed UsePublic ArchitectureSteelSustainable Building








