Manhattan Beach Residence | Olson Kundig

Manhattan Beach Residence, On a narrow sloping site just blocks from the ocean, the Manhattan Beach Residence draws inspiration from the honest expression of structure and utilitarian design approach characterized by California’s mid-century modern architecture, mixed with the client’s active outdoor lifestyle.

© Aaron Leitz1

© Aaron Leitz

The design complements the eclectic architectural language of the surrounding stucco, wood-framed, and mid-century homes, incorporating large awnings and proportionate massing, while retaining its own distinct expression in the dense urban neighborhood. This 5,310-square-foot residence terraces the hillside in a series of volumes, creating a puzzle of interconnected zones flowing through the topography. Varying degrees of opacity and transparency preserve privacy while maximizing views and natural light in a challenging urban infill context.

© Aaron Leitz2

© Aaron Leitz

A public greenway and pedestrian walk street flanks the home’s main entry at the mid-level. Lush plantings blend the transition between public and private spaces, leading to a shifted-access entry sequence that navigates the topography of the site. Graphically displayed black steel exterior paneling creates a clear boundary between the public walk street and the private residence, while strategically placed perforations bring daylight into the interior.

© Aaron Leitz3

© Aaron Leitz

Jutting out toward the water, the west-facing primary suite floats eight feet above the sidewalk below and captures slot views to the nearby beach. Bedrooms for the family’s young children feature bright colors and bold graphics, as well as clerestory windows to bring daylight into the bedrooms. A volumetric, open tread wood and steel stair captures links to a garage with beach entry and surf storage below, as well as filtering natural light from the main gathering space on the home’s top floor.

© Aaron Leitz4

© Aaron Leitz

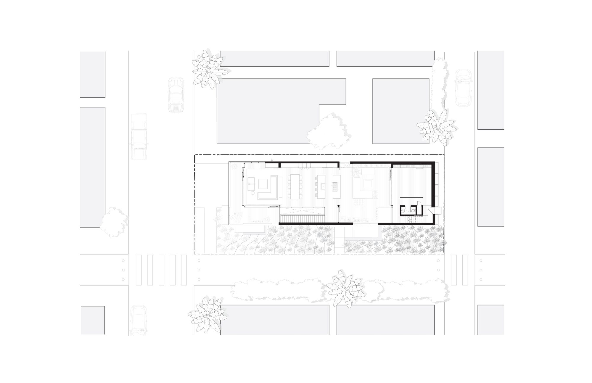
On the uppermost level, a great room combining living, kitchen, and dining occupies the western side of the floor plate. This comfortable, family-focused space is lined with sliding window walls that open to an exterior deck and views of the horizon and Pacific Ocean beyond. The kitchen is a statement to the home’s sleek, industrial character, with an all-black motif, exposed steel beams, and CMU blocks.

Section 25

© Aaron Leitz

The space is warmed with light wood floors and ceiling panels, and soft beige textiles in the living area. A counterweighted three-panel kinetic window wall and a series of telescoping doors open this volume to a central courtyard and outdoor space. On the opposite side of the courtyard, a double-height library and workspace volume incorporates eighteen-foot-tall sliding doors, which can be opened to allow activity to flow from one end of the home to the other.

Project Info
Architects: Olson Kundig
Country: United States, Manhattan Beach
Area: 5310 ft²
Year: 2021
Photographs: Aaron Leitz
Design Principals: Tom Kundig (FAIA, RIBA), Edward Lalonde
Project Architect And Project Manager: Nathan Boyd
Architectural Staff: Kozo Nozawa
Landscape Architect (Through Permitting): Michelle Arab
Kinetic Engineering And Design: Phil Turner, Stephen Wong
General Contractor: Dowbuilt
Interior Design: HRH Design, Olson Kundig
Lighting Designer: O- Lighting
Structural Engineer: PCS Structural Solutions
Civil Engineer: PE&C Engineering
Building Envelope Consultant: RDH Building Science
Landscape Design Build: Jones Landscapes
Kinetic Wall Fabrication: Meta

Olson Kundig
Arch2O.com
Logo
Send this to a friend