Linxia Grand Theater | DUTStudio
LinxiaGrand Theater is located in the core area of planned new town in LinxiaCity, Gansu Province. It covers an area of 52,300 square meters and has a ground floor area of 15,000 square meters and a total building height of 46 meters.
In the architectural design, simple geometric sphere with unique recognition is adopted, together with the classic proportion of patterns and texture. However, it is undoubtedly necessary to enlarge such a refined and figurative shape into a public building of 90 meters in diameter and 46 meters in height, which has brought huge challenges to the designer. How to reflect the pattern texture and form proportion but also to avoid concretization is the first biggest challenge faced by the designer.
Integrate modern design techniques into this traditional body, and leave a contemporary architecture with strong ethnic characteristics to the local people has become the designer’s design purposes.
After thinking over and over again, the designers abandoned the “simple” and expensive solution of the traditional metal curtain wall to realize the geometric texture of the dome. Through continuous efforts, The cross-section steel beams are welded to each other to “weave” the overall spatial structure of the dome “texture,” similar to the “Bird’s Nest” structure of the National Olympic Sports Center. Shell structure, curtain wall structure and curtain wall texture are combined into one, saving a lot of cost. As a result, the powerful permeability shell inside and outside the entire facade makes it possible to change the building from the “impervious” to the top of the “all through”, plus the facade “snow white” color selection, the dome shape of the original statue becomes abstraction. This will not only achieve the overall effect of the building, but also display the magnificent charm and immortality of the heavy steel structure. The building and the structure are seamless, unique and beautiful with strong visual impact and fully reflect the beauty of natural harmony.
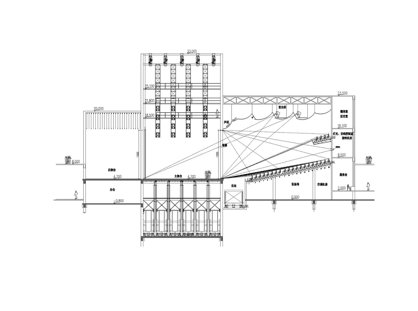
Grand Theater has the total height of about 46 meters, in order to maintain the dome height while making full use of space, the Grand Theater main body is one floor level up. The lower part is used to set up VIP lounges and large area loading and unloading venues to meet the functional needs. The theater is designed to accommodate 1,052 spectators, including 102 active seats in the pool. Auditorium is divided into the pool seat and the floor seat, pool seat can accommodate 860 people, and the floor seat can accommodate 192 spectators to watch the show. Stage is the core of the entire theater, using internationally accepted a Chinese Character as “品” shaped stage.
And has a two-part area of 120 square meters of music pool, can accommodate symphony orchestra with 100 people. Center performance area stage has a car side, 15 meters square large stage platform, ballet stage, walking turntable with diameter of 14 meters, five double electric lift stage and other functions. These functional stages can be controlled by the computer, to be raised, rotated and moved to complete the complex screen scene transformation, and fully meet the different needs of musicals, operas, ballet, drama and theatrical performances.
In terms of vision design, the farthest place of the floor seat is 26 meters less than 33 meters, with downward tilt angle of 20 degrees, the pool seat depression point is less than 35 degrees, display angle is controllable, pool seat, floor seat subject to the stage angle control, view the auditorium from the stage center, the angle is greater than 80 degrees, the first surface light bridge angle between the table is subject to 50 degrees light control. In acoustical design, the design of double walls, acoustic mats meet acoustic isolation. Air conditioning and ventilation systems are designed with mute operation. This results in a PNC value (ideal noise level) of noise control of this scheme reaches 15 or lower
. The design is a combination of two completely different building types – a concert hall and a theater with a stage. The design uses a special orchestra enclosure. When performing an orchestral show, it’s easy to move it out of place to split the stage part, translating the two spaces into one space. At the same time, lift the pool to the same level of the stage, forming a platform at the stage for the band to play.
Project Info:
Archtect: DUTStudio
Location: China
Category: Theater
Architect in Charge: Ling Zhong
Architectural design team: Youjun Yang, Ahn Yunsil, Ellix WU, Jinyin Sun
Structural design team: Xiang Fang, Mao-ming Zhang
Client: Government of Linxia
Area: 15000.0 m2
Project Year: 2016
Photograph: Qingshan Wu




































