Le Condé House, Taking inspiration from Patrick Modiano’s novel “In the Café of Lost Youth” (Dans le café de la jeunesse perdue), we endeavor to craft a structure that acts as a repository for the proprietor’s bygone years—a repository for a youth that once wandered aimlessly. Nestled within a block of townhouses, erected some two decades ago, the apartment now wears the marks of time, presenting a formidable challenge to the design team, who must tread lightly due to the potential repercussions on the adjoining units.
Against a backdrop of identikit neighboring dwellings, this house emerges as a chiaroscuro beacon, luring passersby to pause and ponder. Yet, the true marvel lies within, where the interplay of light through expansive mirrors grants the space an ethereal quality, basking in the resplendent hues of dusk. As the curtain falls on another twilight, set against the backdrop of a meticulously crafted Industrial Loft-inspired architectural canvas, the homeowner will become immersed in the vibrant tapestry of their own youthful exuberance, the wild abandon, and the tender moments of being lost.
A palette of earthy, rustic tones is deftly woven into the design, evoking a sense of vintage allure while retaining an air of sophistication. Endowed with all the trappings of modern convenience, this apartment doubles as a sanctuary, sheltering its occupants from the caprices of life’s vagaries. In the same breath, it becomes a vault, wherein the most exquisite fragment of existence—youth—finds its eternal abode.
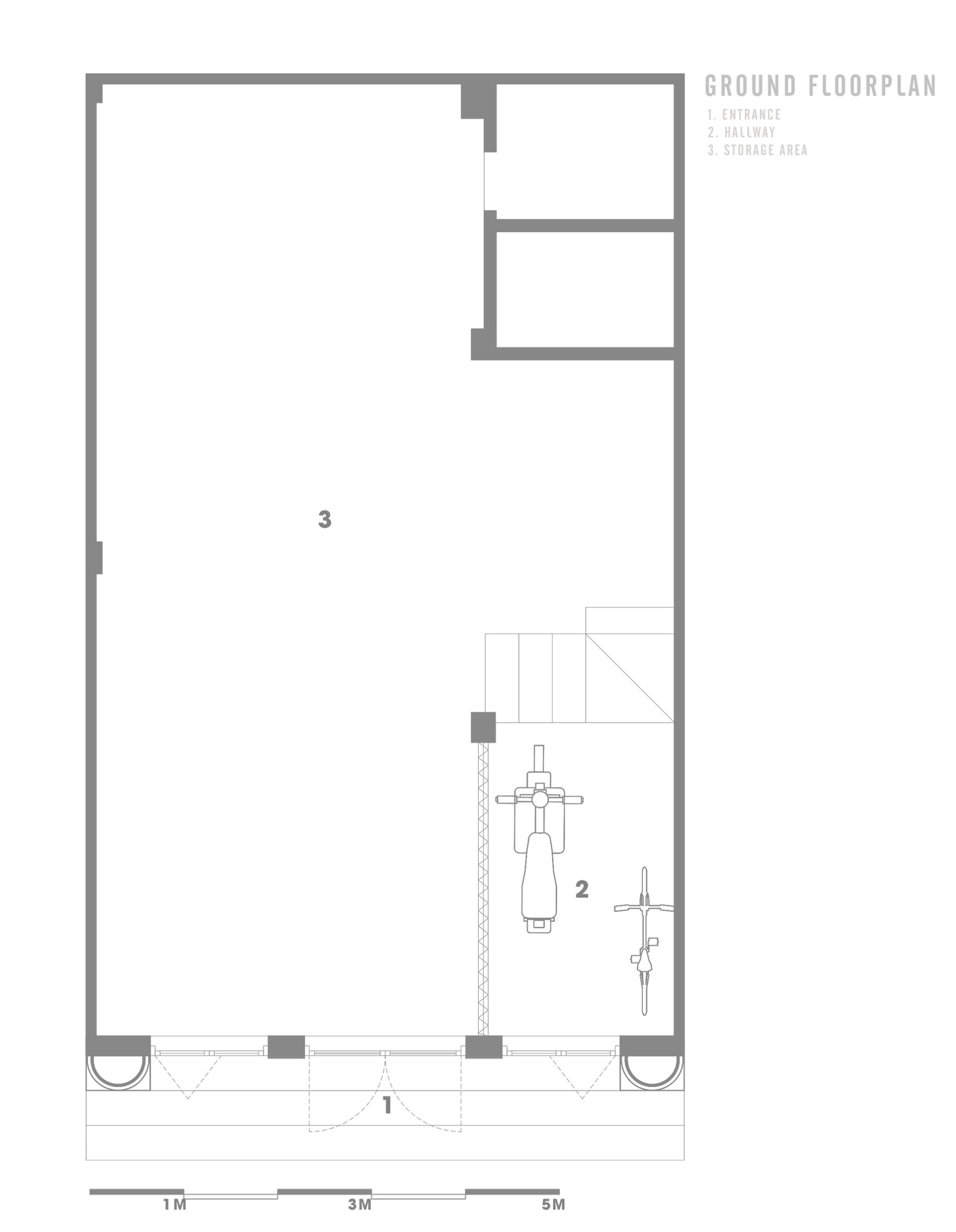
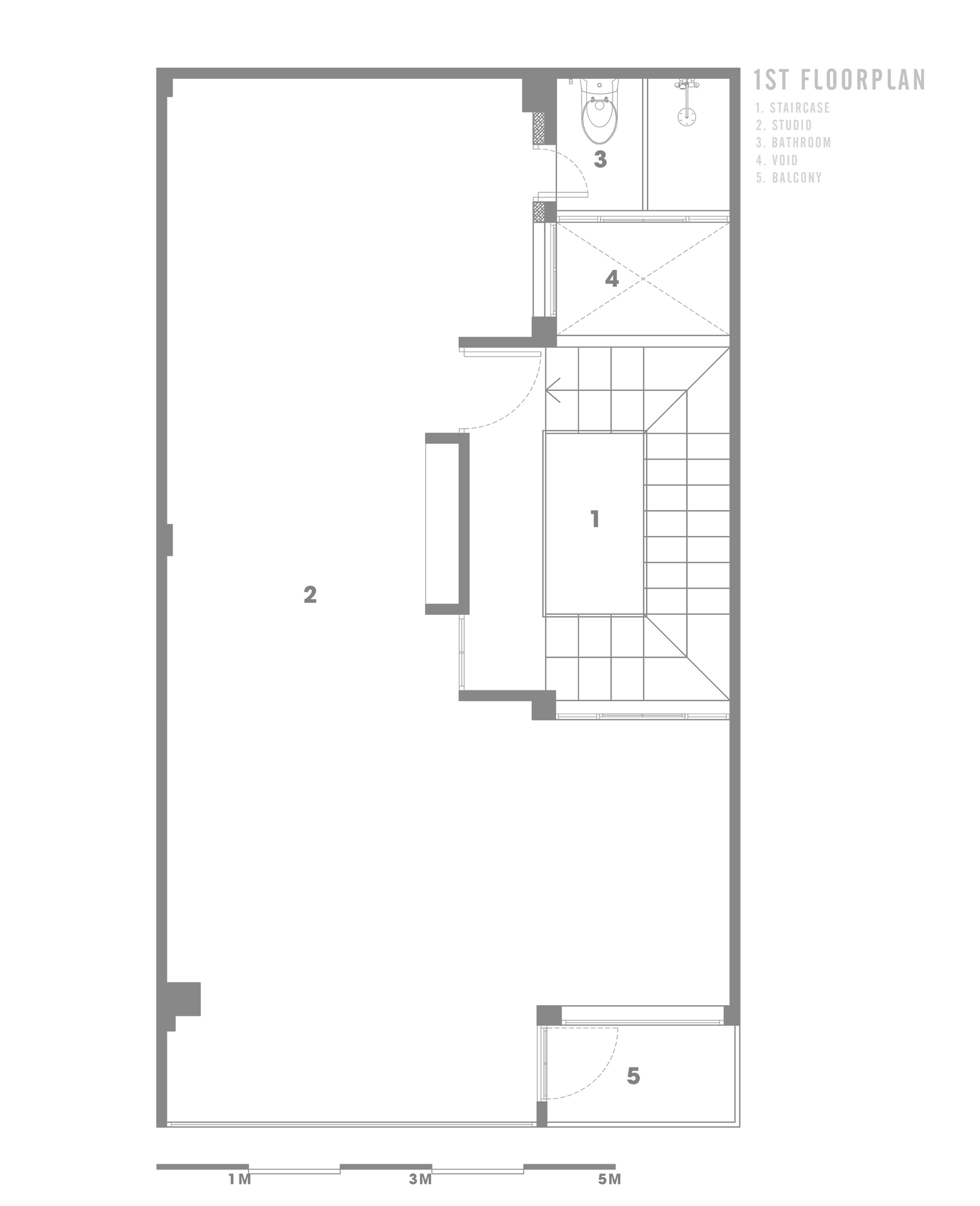
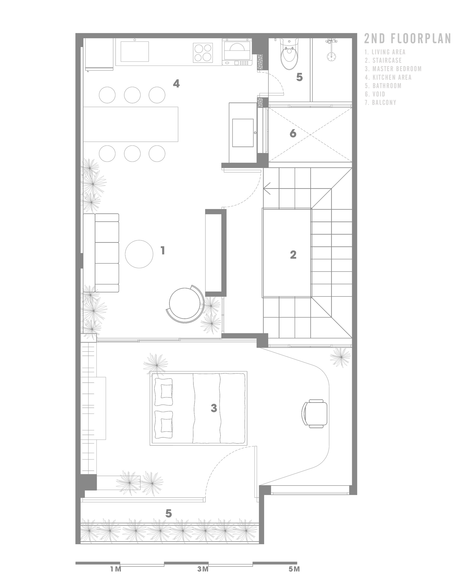
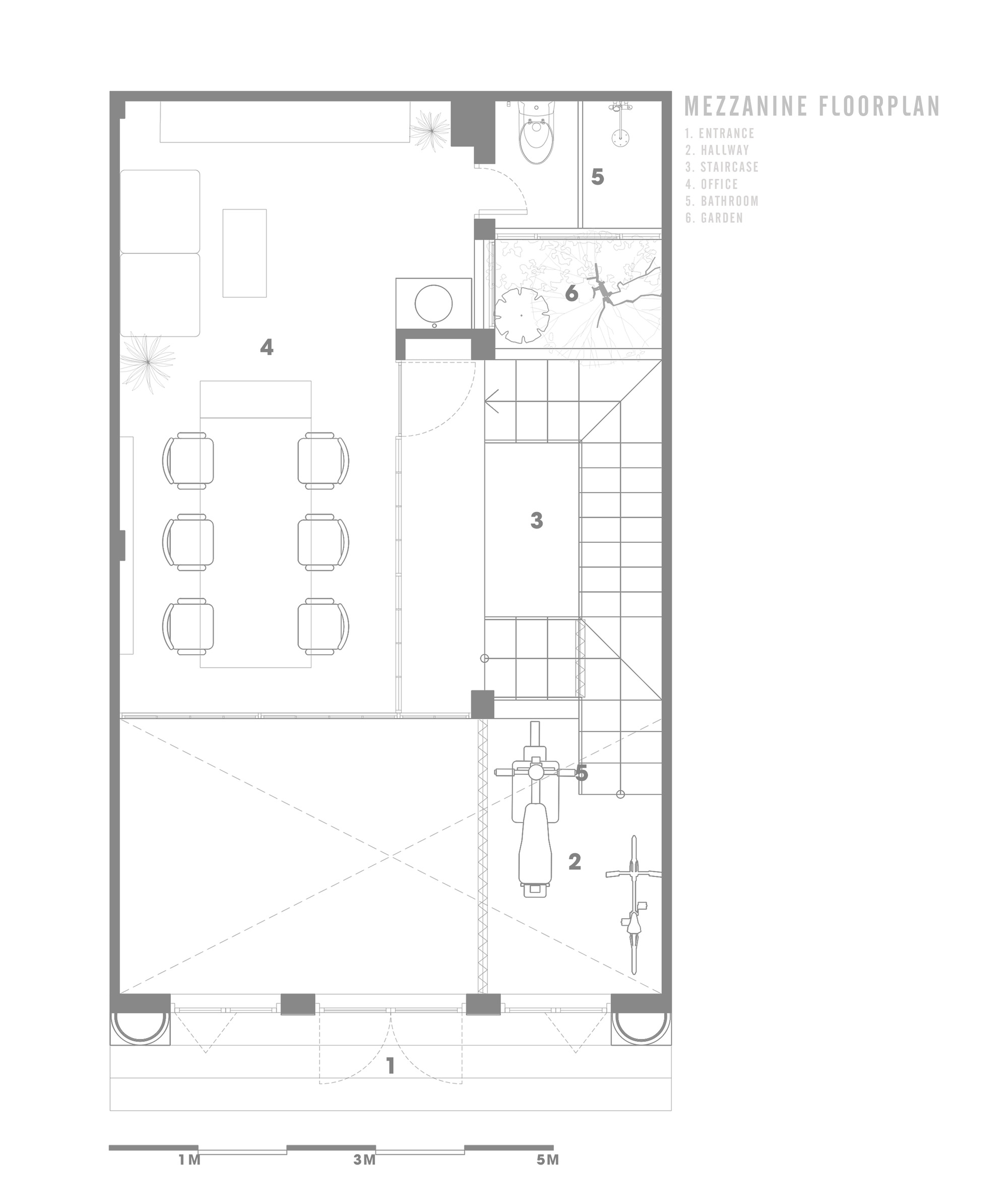
Unconstrained by the conventional linear design precepts, the apartment fosters a harmonious union between the central living quarters and the industrious lower realm. In the symphony of contiguous abodes, this dwelling takes on the role of a resonant bass note, its resonance echoing the homeowner’s own youthful symphony. The unique tapestry of those extraordinary years unfurls through the architectural canvas we’ve curated—an artistry that may well etch itself upon each individual stepping across this threshold.
Project Info
Architects: Limdim House Studio
Country: Vietnam, Hue
Area: 300 m²
Year: 2023
Photographs: Do Sy
Manufacturers Schneider Electric, Ausdoor, Panasonic, SAT Lighting: Schneider Electric
Design Team: Tran Ngo Chi Mai, Ho Nguyen Dang Khoa, Hoang Dao Khanh Linh, Doan Minh Huan
Engineering: Doan Minh Huan
























Isabelle Laurent is a Built Projects Editor at Arch2O, recognized for her editorial insight and passion for contemporary architecture. She holds a Master’s in Architectural Theory from École Nationale Supérieure d’Architecture de Paris-Belleville. Before joining Arch2O in 2016, she worked in a Paris-based architectural office and taught as a faculty adjunct at the École Spéciale d’Architecture in Paris. Isabelle focuses on curating projects around sustainability, adaptive reuse, and urban resilience. With a background in design and communication, she brings clarity to complex ideas and plays a key role in shaping Arch2O’s editorial

