La Lucia
The brief called for a relaxed family holiday beach house on the North Coast of KwaZulu Natal, South Africa. The building has been sensitively designed to gently nestle between protected milkwood trees, in an area that has strict environmental controls. A sense of arrival is enhanced by an austere entrance flanked by two of the milkwood trees. The cinematic panorama is only revealed as one enters the double-volume hallway. The ceilings are clad with aligned timber slats which draw the eye to the seascape ahead.
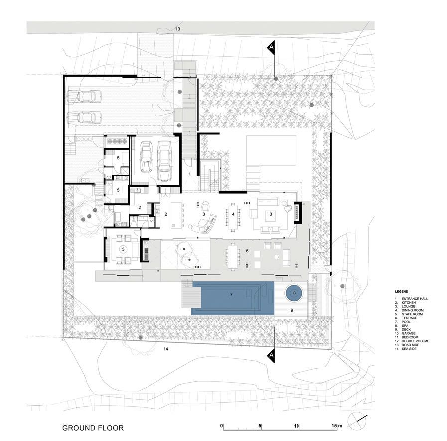
The ground level can be enjoyed as one continuous space or arranged into more individual and private spaces. All the spaces open up either onto the sea facing pool deck or to the afternoon sun lit garden on the West. The four sea-facing bedrooms are located on the upper level and open onto private individual terraces.
The East sea-facing façade is ‘wrapped’ with a series of bronzed anodised aluminium sliding screens that cocoon the structure entirely or in part. The screens, inspired by the milkwood trees, create the home’s signature.
The Interiors by Antoni Associates express simplicity and restraint while making the home comfortable and cosy. Sand-coloured polished concrete floors, bleached timber, natural leathers and grey linens, are anchored by soft neutrals and countered with touches of charcoal, teal and azure.
Project Info
Architects: SAOTA
Location: Durban, South Africa
Architects: SAOTA – Stefan Antoni Olmesdahl Truen Architects
Project Team: Mark Rielly, Ashleigh Gilmour, Staci Kinnes, Mark Rielly, Ashleigh Gilmour, Staci Kinnes
Year: 2011
Type: Residential
Photographs: Karl Beath




















