Korea Gas Corporation Headquarters, As one of the most prominent corporations in Daegu, the Korea Gas Corporation headquarters building was designed with the concept of ‘ECO VESSEL’, projecting a clean & efficient image. Considering the project location with 3 hills surrounding the site, the building was designed with low-profiles to harmonize with the surrounding nature.The design team focused on creating a headquarters building that could bring unity among its users, nature, and the local citizens.
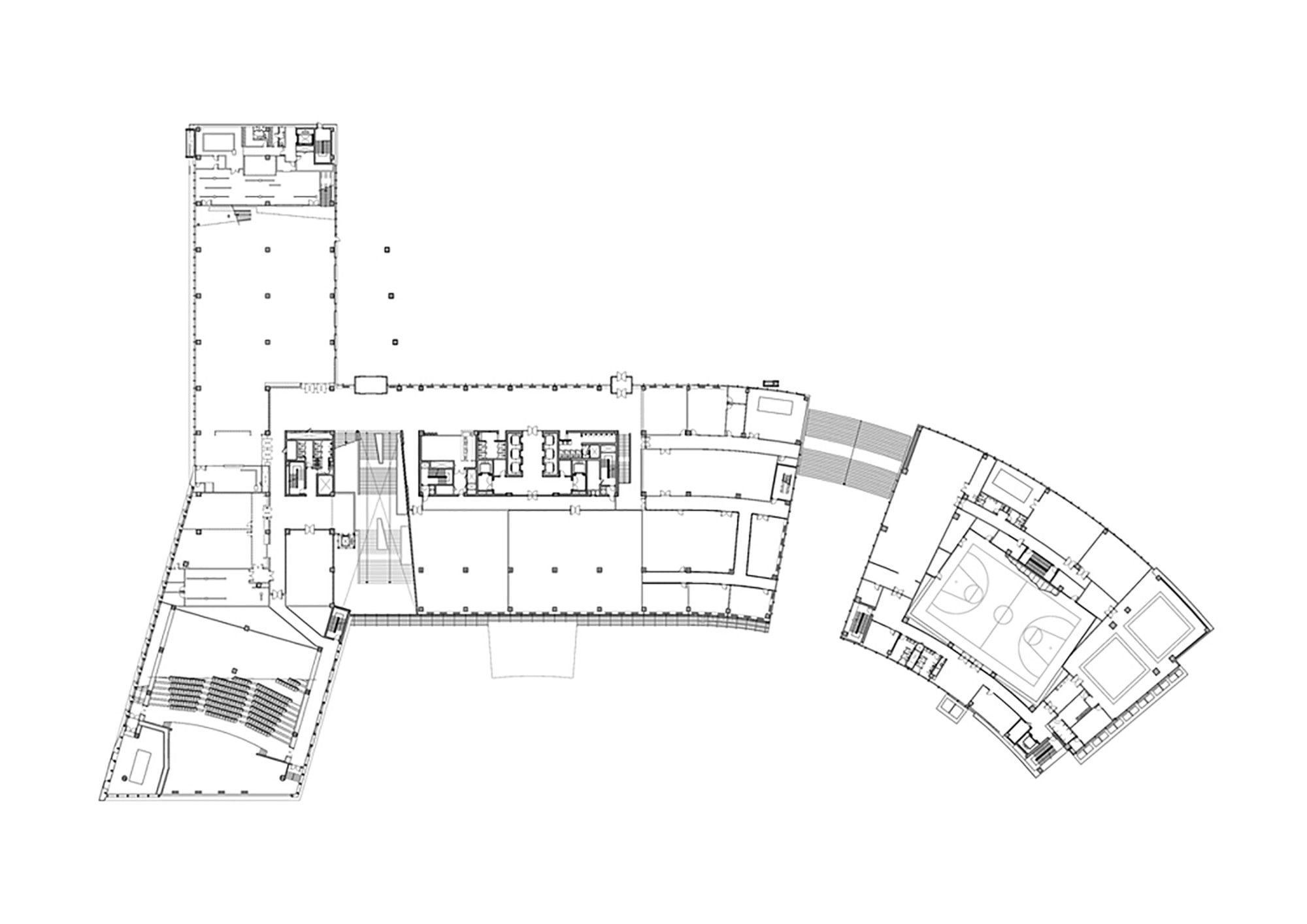
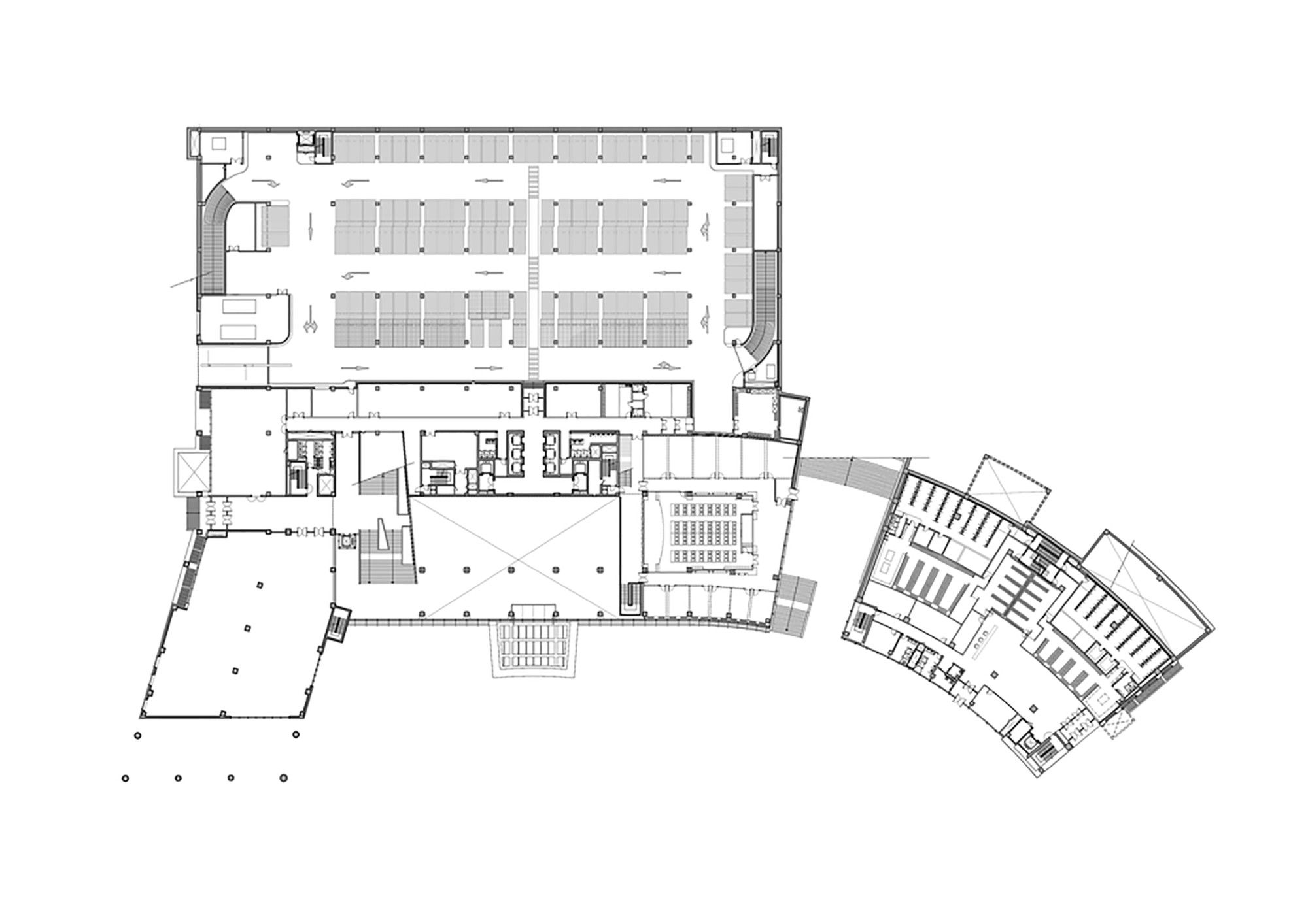
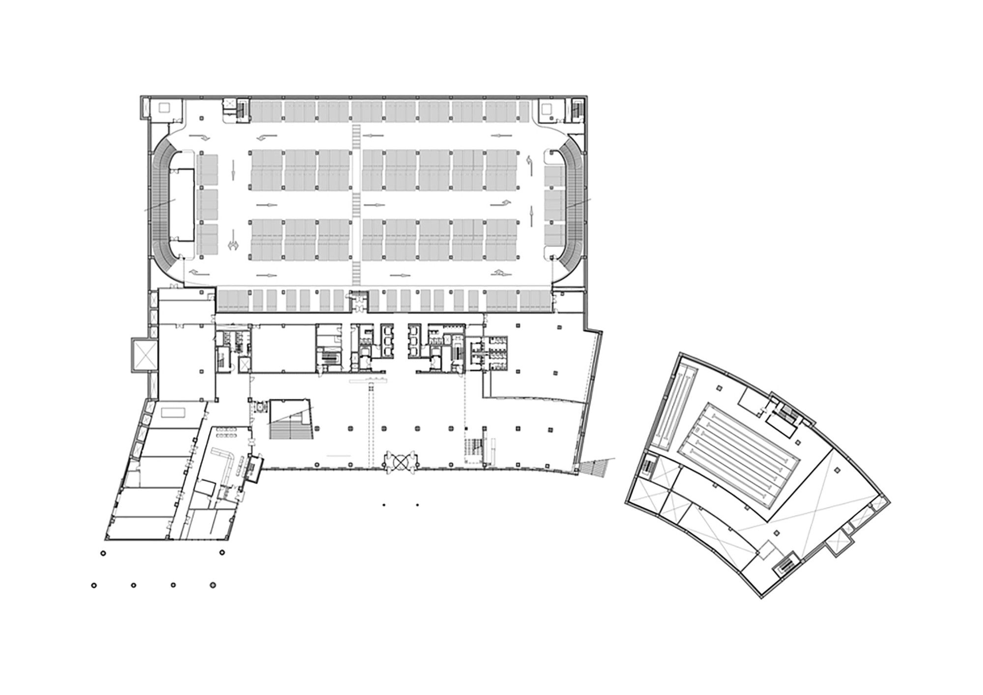
Various facilities including meeting zones and auditoriums were located independently in the podium with linkages among the facilities for maximum accessibilities. Also, a plaza located in front of the building as well as an open lobby welcomes visitors and local citizens with enough space to host events and exhibitions. The office tower was designed to represent the flow of energies creating a strong dynamic profile while integrating outdoor terraces which links the flow of greeneries from the ground to the top of the building. Outdoor terraces located on each floor of the tower allows users to easily access the terraces and to feel splendid nature. Designed as a landmark of Daegu, the new headquarters building integrates various sustainable technologies including BIPV, PV, geo-thermal heating, natural ventilation and others to realize a truly sustainable building.
Project Info:
Architects: SAMOO
Location: Daegu, South Korea
Year: 2014
Type: Aministrative / Office / Exhibition
Photographs: Young Chae Park














