Italcementi i.lab | Richard Meier & Partners

Our friends at Richard Meier & Partners have shared with us their latest completed project: Italcementi i.lab in Bergamo, Italy. The building, a new research and development center for Italcementi, one of the top five cement manufacturers in the world, is a showcase for sustainable design, already attaining one of the first LEED Platinum accreditations in Italy.

Photography by © Scott Frances – OTTO

According to the firm, Italcementi i.lab reflects not only the company’s commitment to sustainability but also “the company’s position of leadership, technological advancement and commitment to research and innovation in the use of concrete.

In the Press Release, Dukho Yeon, Design Partner-in-charge, describes the project: “i.lab is our firm’s most sustainable building to date embodied in sculptural and dramatic, but simple forms showcasing the possibilities of concrete in perfect balance with the technical purpose of the building.

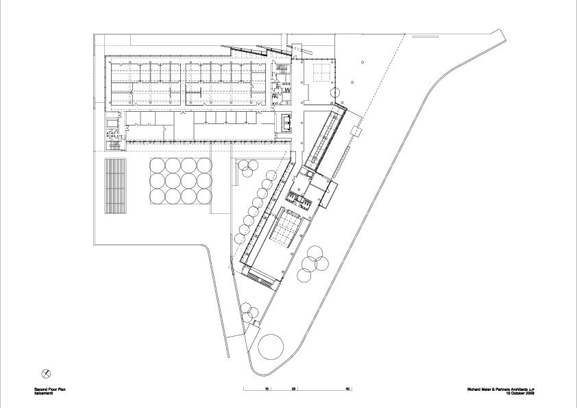
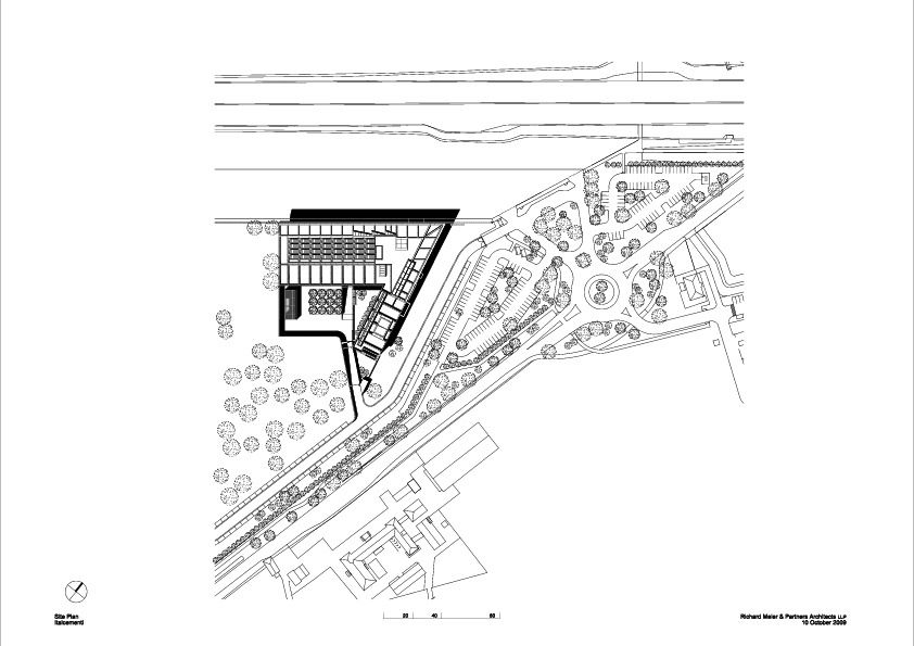
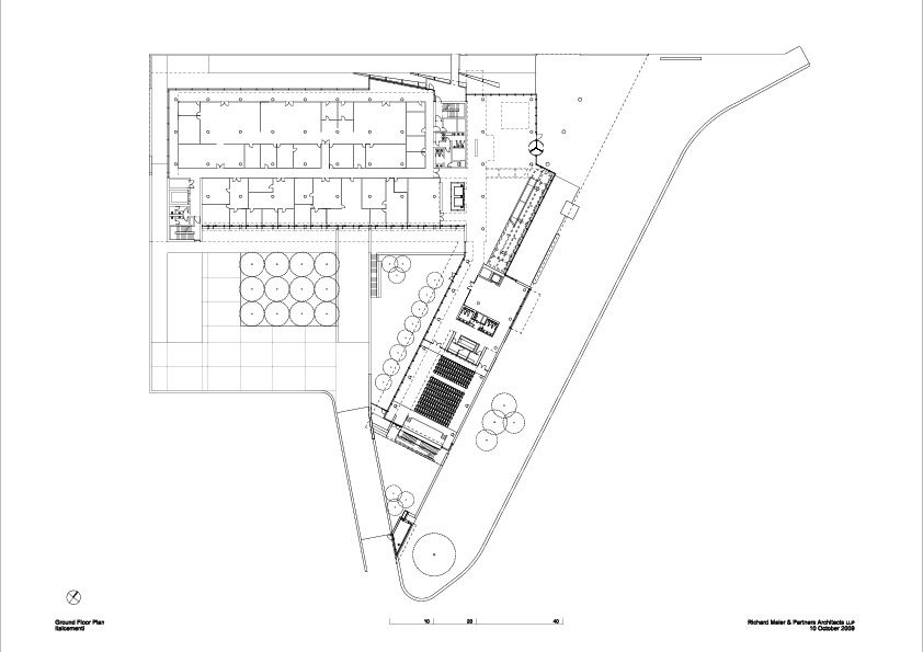
Italcementi i.lab is prominently positioned at the eastern end of the Kilometro Rosso Scientific Technology Park in Bergamo, Italy. The building addresses the LEED rating system including sustainable sites, water efficiency, design and innovation, energy and atmosphere, materials and resources, and indoor environmental quality. The V-shaped building reinforces the boundaries of the triangular site and incorporates a program of technical and administrative spaces into two wings that surround a central courtyard.

diagram

The interior organization of the laboratory wing responds to the highly specific functional requirements of the program. A simple structural grid and a central circulation corridor allow efficient and flexible layouts for various sectors.The south wing houses conference rooms, a two-story multipurpose hall and a sky-lit board room that cantilevers over the second floor. Additional below-grade courtyards provide fresh air and natural light to basement-level laboratory and mechanical spaces.

model

The roof of the structure forms a virtual fifth façade perforated with a system of skylights directing natural light into offices, circulation corridors, and laboratory spaces and animate the interiors with the changing natural light.

The implementation of an innovative high-strength, white reinforced concrete developed by Italcementi specifically for this structure will significantly abate pollution caused by car emissions and industrial activities. The white TX Active concrete reacts with ultraviolet rays breaking down harmful pollutants.

Photography by © Scott Frances – OTTO

In line with the firm’s continual efforts to address issues of energy conservation and environmental performance, the building uses high-performance custom facades, low-e insulated clear glass, and incorporates geothermal and renewable solar energy systems. Photovoltaic panels, solar panels and geothermal wells provide close to total energy self-sufficiency, meeting all of the building’s heating and cooling requirements.

Richard Meier comments: “We first began working with Italcementi and with its President, Mr. Carlo Pesenti, while designing the Jubilee Church in Rome. The Church was initially designed to be poured in place white concrete, but in conjunction with Italcementi we concluded that 12 ton white pre-cast concrete panels would be a better way to execute the design.

The white concrete developed by Italcementi and now used in the construction of the i.lab building in Bergamo is self-cleaning and therefore will always be white.

With Italcementi, we have worked together to create a new office and research building for the 21st century – a landmark that upholds and builds upon the country’s architectural tradition. The Italcementi i.lab reinforces our firm’s commitment to accessible, open and sustainable architecture.

Photography by © Scott Frances – OTTO

Project Info :

Architects : Richard Meier & Partners
Project Year : 2013
Photographs :  Scott Frances – OTTO
Design Principals : Richard Meier, Dukho Yeon
Project Architects : Vivian Lee, Simone Ferracina
Project Location : Bergamo Province of Bergamo, Italy
Collaborators : Roberto Mancinelli, Dongkyu Lee, Amalia Rusconi-Clerici, Robert Kim, Cedric M. Cornu, Wen-Yu Tu, Guillermo Murcia, Luca Aliverti, Tetsuhito Abe

 

Richard Meier & Partners
Arch2O.com
Logo