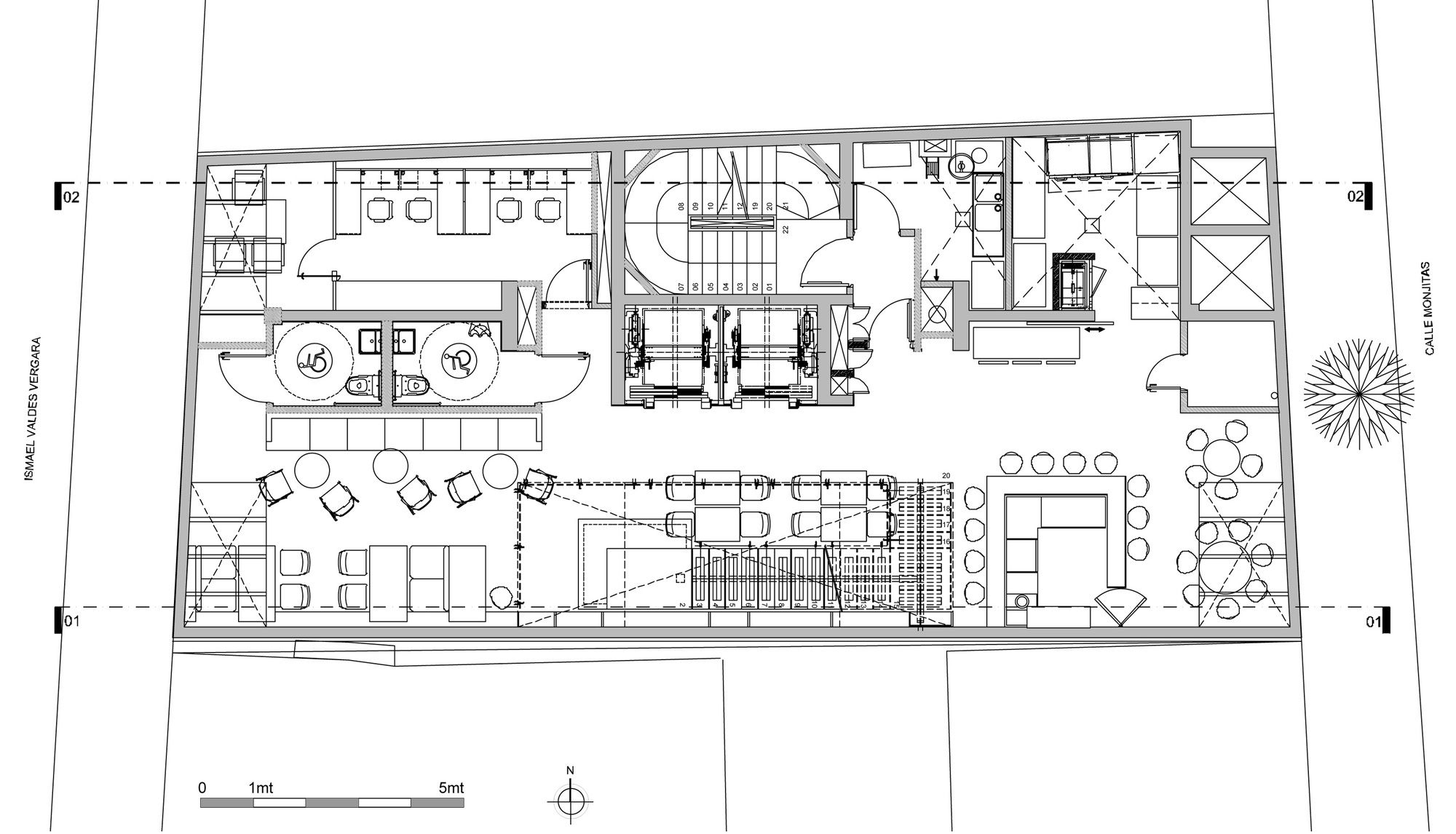
Ismael hotel is a small hotel that gets bigger due to its environment. The site has only 180 m² (9×20 meters), and overlooks two streets, Ismael Valdez Vergara and Monjitas.
Context :
The block is composed of 9-story high buildings with a continuous facade, reflecting different architectural styles from different times, as a cultural display of our architectural heritage in perfect conditions.
At the project site there used to be a 3-story building, declared “discordant and of little architectural value” by the National Monuments Council, which allowed us to think of a completely new project, with a contemporary proposal.
The project :
This is a building in the city and for the city, so we wondered, how do we insert a contemporary project into a consolidated block? We understood that our intervention was like “an extra touch on an existing painting” so we could either hit it right or ruin it.
The project however does not correspond to any of the past eras, but rather to the present and therefore we believe that it should not resemble or mimic anything, nor try to adopt some preexisting architectural style. Instead, it should propose a language that reflects contemporary architecture, in dialogue with its environment from the predominant elements, solids and voids, colors and textures.
The architectural composition of the block considers three main orders:
A. Base
B. Body
C. Top
From the viewpoint of the architectural language, the buildings on the block are characterized in each case by their balconies, as elements that are attached to the buildings, but with their balustrades, geometries and details define an architectural style and expression, either modernist, baroque or classical.
Thus, the project draws on a transparent base that makes the building appear to float above the ground, linking visually and functionally both streets. We therefore decided to break the hermetic nature of the block between the park and the city, and the building has access from both sides.
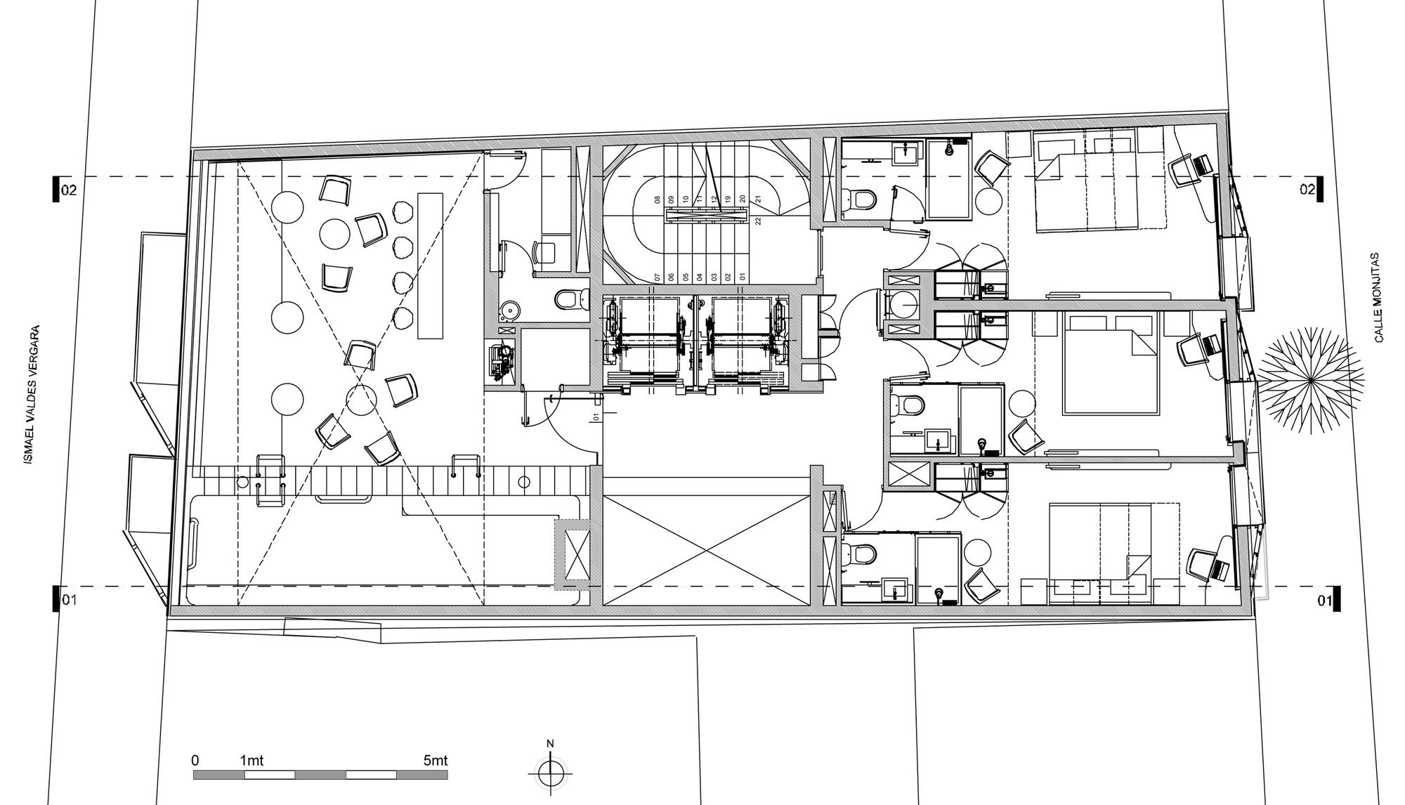
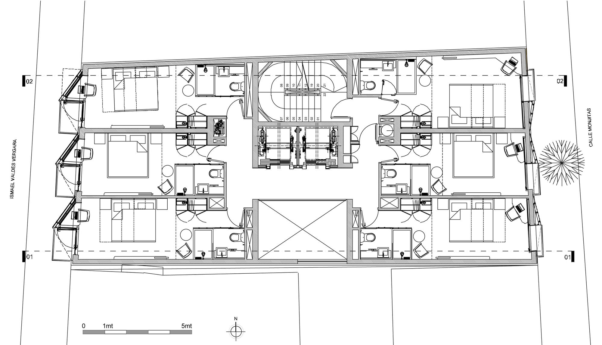
The design of the body containing the rooms has balconies off each bedroom, which like the rest of the block, are presented as an expressive and volumetric element. Not as an attachment, but rather as part of the building. Thus the walls of the facade are folded, creating and containing the balconies, and generating a side window to the inside that increases the brightness of the rooms. The top of the building is again a void that programmatically solves a terrace – pool.
Project Info:
Architects: Estudio Larrain
Project Location: Ismael Valdés Vergara 312, Chile
Project Year: 2013
Site Area: 201,30m²
Photographs: Cristobal Palma / Estudio Palma
Client: Tripode S.A.
Interiors: árbol color
Project Area: 1502.0 m2
Construction: Ecomsa S.A.
Structures: Alfonso Larrain
Proyecto Eletrico: PROPAMAT
Collaborators: Claudio Cepeda
Lighting: MONICA PEREZ & ASOCIADOS
Technical Inspection: Juan Eduardo Mujica
Acoustics: INGENIERIA EN CONTROL ACUSTICO
Project Architects: Rodrigo Larrain Galvez, Rodrigo Larrain Illanes
Manufacturers: Duromarmol, Kone, Duomo, Budnik, Atika, Minassian, Superval
























Tags: 2013ChileCristobal Palma / Estudio PalmaEstudio LarrainFSGlassHospitality ArchitectureHotelIsmael 312 Apart HotelStone
Sophie Tremblay is a Montreal-based architectural editor and designer with a focus on sustainable urban development. A McGill University architecture graduate, she began her career in adaptive reuse, blending modern design with historical structures. As a Project Editor at Arch2O, she curates stories that connect traditional practice with forward-thinking design. Her writing highlights architecture's role in community engagement and social impact. Sophie has contributed to Canadian Architect and continues to collaborate with local studios on community-driven projects throughout Quebec, maintaining a hands-on approach that informs both her design sensibility and editorial perspective.







