Interlude House
A Bangkok-based well known architectural firm, Ayutt and Associates design (AAd) proposed an alternative design solution to mitigate the urban-dwelling problematic issue by crafting a INTERLUDE house. INTERLUDE is a house designed not as the main act but for the essential little moments in between. The client’s brief was for a home that can be lived in practically, and on frequent occasions be able to host parties of up to 30 guests. Its primary function is to serve as a livable home, a welcome break away from one act of life and another in an ever-bustling Bangkok city.

Photography by © Chalermwat Wongchompoo
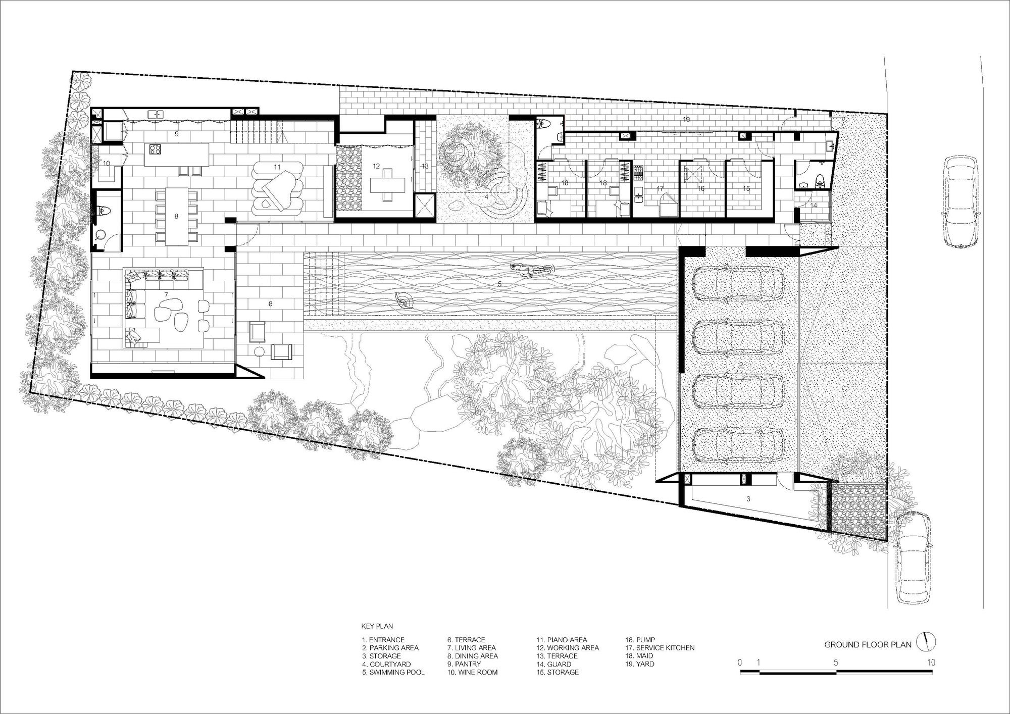
The site is situated amongst a densely constructed area, accessed only by a heavily trafficked small 4.5 meters wide road. Contiguous to its north, east, and west are apartment, condominium, and serviced apartment, respectively. This busy neighborhood never sleeps. The southern neighbor provides the only relief with their traditional two storey wooden home towards the southwest corner of the site, and a densely planted garden that occupies the area adjacent to the length of the site.
Good artists borrow, this house outright steals. The main mass of the building is placed along the three built up sides of the site which creates a substantial garden. Openings are directed towards this central court, with the pool in the foreground, green court taking center stage, and the neighbor’s garden as a backdrop. The southside of the garage is a planter and tree.

Photography by © Chalermwat Wongchompoo
The midground greenery connect with the neighboring landscape visually, an optical trick that extends the client’s spatial domain. The house is raised half level to deflect inwards looking eyes towards the ceiling maintaining privacy in areas with large openings. Expressed and accentuated as two separate mass, the ground floor is treated as an opaque black impenetrable box. While the upstairs is treated as a lighter white box.
The house on show is nothing short of a set piece designed to entertain, full of smoke and mirrors, choreographed precisely to create a sequence of events. Guests approaches from the narrow access road. Arrival is signaled as the road frontage suddenly recessed, a dark cave like mysterious box greets onlooker, with no hint to what lays beyond but a few sprouting foliage.

Photography by © Chalermwat Wongchompoo
The gate slides open revealing a densely planted patch ahead. The ceiling is white, light seeps in through the clearstory window the eyes wonder up to reveal yet more foliage. To the right, an opening, through the passage, you are directed towards the light and a long corridor awaits. The space suddenly explodes into an oasis filled with light, that gradually fades in from the darkness.
Tranquility awaits; shrubberies swaying in the wind, and gentle ripples dances on the surface of the pool. As night approaches, the sun falls low, and the house begins to take on a slightly suave and glamourous persona. On the reverse, the garage wall is lined with angular aluminum feature façade. This gives the mass above a weightless illusion, seemingly hovering.

Photography by © Chalermwat Wongchompoo
The wall reflects the garden, and pool. As people move towards it, they find copies of themselves appearing and disappearing as though passing through a house of mirrors at the fair. The wavy patterned chocolate marble wall echoes the movement of the pool runs along a linear corridor. Eyes are directed straight through to a tall black door. Moving towards it the living room comes into view through the double height glazed wall, but before more details could be examined, the solid wall on the right retreats to reveal a green pocket.
This opening accentuates the greenery of the house and provide a passage for prevailing winds. Behind the tree, are perforated mirror finished aluminum panels arranged in arbitrary angles, which multiplies the green many folds which visually expands the courtyard. The perforation is calculated to allow the maids to keep a close eye on guests from the service passage behind without being seen. Rays from this well lights up the front door, guests enter through. The client’s heritage awaits.

Photography by © Chalermwat Wongchompoo
A custom-made dining table crafted from 200 years old timber; wire brushed to show patina. Two paintings collected by the client hung immediately behind. To the left, the double height living area with a large mural of round and geometric abstractions. Upon closer inspection, the customized furniture reveals themselves to have been created or escaped from the mural itself. Above the cubist sofa, the chandelier echoes the mural with round bulbs and tubular housing.
The kitchen surface, island, and back wall are all lined with a smart black and white marble arranged in a diamond pattern aligned with millimeter precision.
The cantilever stairs precisely crafted such that the stone pattern align and runs continuously traversing from the ecstatic ground floor to the sober upstairs. Guests can only look up and envy at where it leads. The real delight lies in the relationship the owners form with the house.

Photography by © Chalermwat Wongchompoo
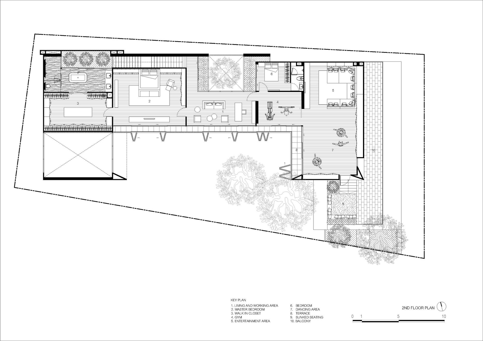
The machine for living, demonstrates throughout all the scenes of this interlude culminates in the climax; to tell the time with their stairs. From the clearstory window above the stairs, a ray of light travels down the wall and stop at the handrail, a natural sundial varying with the seasons, thick and thin rays denoting hours and minutes.
The upstairs cantilever over a third of the pool below to provide shade and ensures privacy. As the upstairs houses the private living quarters, all three sides besieged by the towering neighboring blocks must be protected from prying eyes. The fenestrations on the north, east, and west sides are tightly controlled, carefully considered, and precisely placed to introduce light into spaces without sacrificing privacy.
The southeast corner of the dance studio is opened to take advantage of the neighbor’s foliage. Privacy is maintained by framing the view and shaping the fins and eaves. The sides facing the central courtyard are generously fenestrated. Full height glazed doors run the full length of the house, affording the client with unobstructed views of the greenery on site and beyond.

Photography by © Chalermwat Wongchompoo
The house is designed to respond to the turbulent tropical climate. In addition to cantilever fins and eaves, to reduce direct sunlight and heavy rain, the glazing layer is recessed to create a continuous balcony. When the doors slide away, the threshold of inside outside dissolves away. The external façade shutter system provides the outermost skin to dissipate the elements which allows natural ventilation to cool the building. Each shutter acts as a heat exchanger funneling air through individual aluminum fin which further reduces heat intake.
The couple has no kids so only a guest bedroom and a master bedroom are required. A palette of wood and fabric reflects the relaxed atmosphere for a restful act. The space of the master suite flows naturally from bedroom to dressing room to bathroom fluidly. Though privacy is maintained with wardrobe planes and edges. The show pieces reserved for the owners to enjoy privately are less flamboyant than those shared with the guests.

Photography by © Chalermwat Wongchompoo
The bathroom is such space, finished in solemn matured green marble, the simple interior projects serenity and stillness. The shower wall is finished in a white marble with black veins, arranged to form a pattern of three mountains. The sculptural bath is the center piece, the semi outdoor garden provides the backdrop, naturally lit with a dissolved glass-block wall.
The house with all its smoke and mirrors is at the end of the day, an oasis to be lived in. Its spaces designed to deliver exactly as required, to supplement the functional and emotional needs of the client. The architecture does not actively draw attention unto itself, seeking only to be a place that elevates the living quality of the client, a place to seek solace before heading outside where the next act awaits.

Photography by © Chalermwat Wongchompoo
Project Info:
Architects: Ayutt and Associates design
Location: Khet Sathon, Thailand
Area: 950 m²
Project Year: 2021
Photographs: Chalermwat Wongchompoo
Manufactures: COTTO, Hafele, Lamptitude, Minotti, Champaca, Siamtak, Sun Paradise, TOA







































Tags: Khet SathonApartmentAyutt and Associates DesignbuildingChalermwat WongchompooDesignFacadeGardenHousespaceThailand

