Icelandic Institute of Natural History | ARKÍS architects
Designed by ARKÍS architects, The Institute of Natural History is a public institution, carrying out diverse research and monitoring of nature. Research is especially focused on botany, ecology, taxonomy geology and zoology.
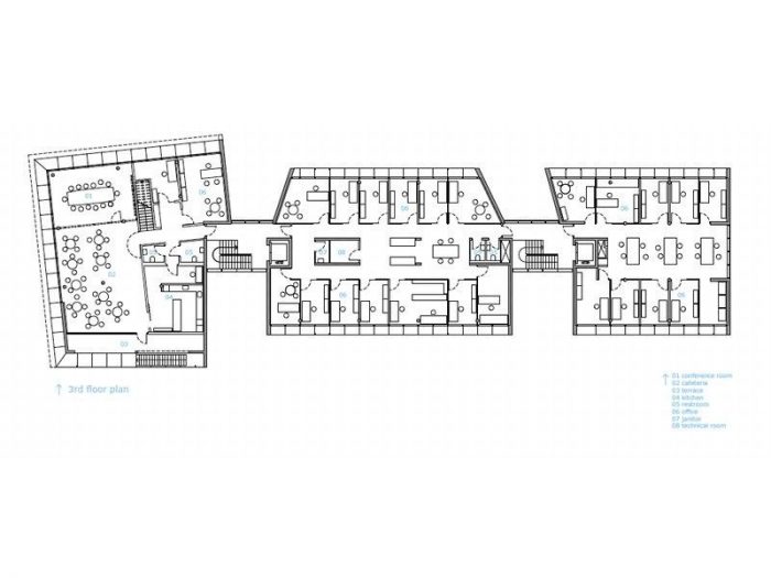
The new building for the Icelandic Institute of Natural History houses research facilities and offices for 50 scientists and other employees. Furthermore, the building houses the Institute’s research specimen collections and scientific library.
Urridaholt Master Plan
The master plan for Urridaholt development has received numerous international recognition and awards for planning and advanced sustainability measures; including the Award of the Boston Society of Architects and the Nordegrio Award. In addition, the master plan was awarded the second prize at the 2007 LivCom Awards.
The Urridaholt master plan is characterized by mixed-use development and an emphasis on sustainable development, diversity, and respect for both environment and community. Good access to outdoor recreation and pedestrian routes is ensured. Streets are designed to support safety and relaxed traffic speeds. Moreover, the Urridaholt development employs integrate surface drainage systems that have been specially designed to protect the ecology of a nearby lake; Urridaholtsvatn.
Building Form
As one of the first buildings to rise in Urridaholt, the Icelandic Institute of Natural History will mark the entry to the development ́s business avenue. The building is divided into three parts by two fissures that visually reduce the building mass and communicate the gradual rhythm and human scale of the streetscape prescribed in the master plan. Moreover, the three-part plan figure reflects the composition of an insect body, thereby connecting building form to the Institute’s function.
Towards the north-west, the building rises upwards and out towards the spectacular view, its form mirroring the profile of Mount Keilir to the south.
The fissures are bridged with transparent corridors and stairwells, accented with a bright green color that becomes brilliantly illuminated at night. However, the primary purpose of the fissures is to provide the Institute’s employees with breaks from the office environment on their way through the building. When passing through the fissures, one comes into strong visual contact with the surroundings; light, weather, sky, and horizon.
Project Info:
Architects: ARKÍS architects
Location: Garðabær, Iceland
Area: 3500.0 m2
Project Year: 2010
Project Name: Icelandic Institute of Natural History
All Images Courtesy Of ARKÍS architects














Tags: 2010ARKÍS architectsConcreteGlassIcelandIcelandic Institute of Natural HistoryNatural HistorySustainableSustainable Building








