Hoshakuji Station seemed like a common story in a lot of urban communities: a neighborhood divided by the railroad and lost its link and connectivity. Hoshakuji Station is no different, and the architect recognizes the situation. Thus the architects focused and emphasized on “creating ‘pores,’ things could be pulled together and restore the community that had been long fragmented.”
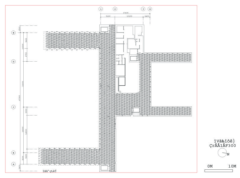
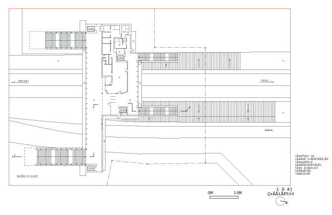
The aim was to restore the connection and link the west and east town of Takanezawa, and between the station and Chokkura Plaza & Shelters. The design revolves around designing an opportunity of openings, rather than adding another enclosure. This aperture begins from the Chokkura Plaza where they preserved the old warehouse of Oya stone.
The pores in the Oya stone were then used into the new structural system that was combined diagonally and added into the warehouse system. Continuing to the design, the diagonal skin was extended to the station which visually draws the users into the location. The design of this station is one that obtained its inspiration from the local landscape of the town: paddy fields and wooden houses.
This is why the material, wood, was chosen. It is vital in the revival of the humane and warm atmosphere of the once cold railway. The wood is suspended on steel hangers that serve to create a varied spatial experience through the ceiling.
The changing depth of the ceiling creates spatial qualities ranging from a lofty space to a mentally perceived enclosed barrier. There was a lot of thought that gone into the advanced techniques used for these Ooya stone and wood. In most cases, an installment that is for ornamental use is disjointed from the ability to contribute as a structure.
However, the architect and his team of engineers researched intensively on the diagonal form of construction that consists of a steel basket attached to a rod of the same material. This ensures that the stone, aside from acting like a cladding material, will also have the ability to act as the building’s structural skeleton. This is not a common practice of architects, and is certainly a detail that should been noted and applaud.
Project info:
Architects: Kengo Kuma
Country: Japan, Tochigi Prefecture, Takanezawamachi
Year: 2008
Photographers: Daici Ano
Engineers: Oak Structural Engineering
Contractors: Totetsu Kogyo Co., Ltd.

























