Hilltop House, The community center is located on a hilltop, with a row of old mango trees along the road in front and a mixed bamboo grove on gently sloping farmland behind. These are common and familiar scenes in rural southern Taiwan.
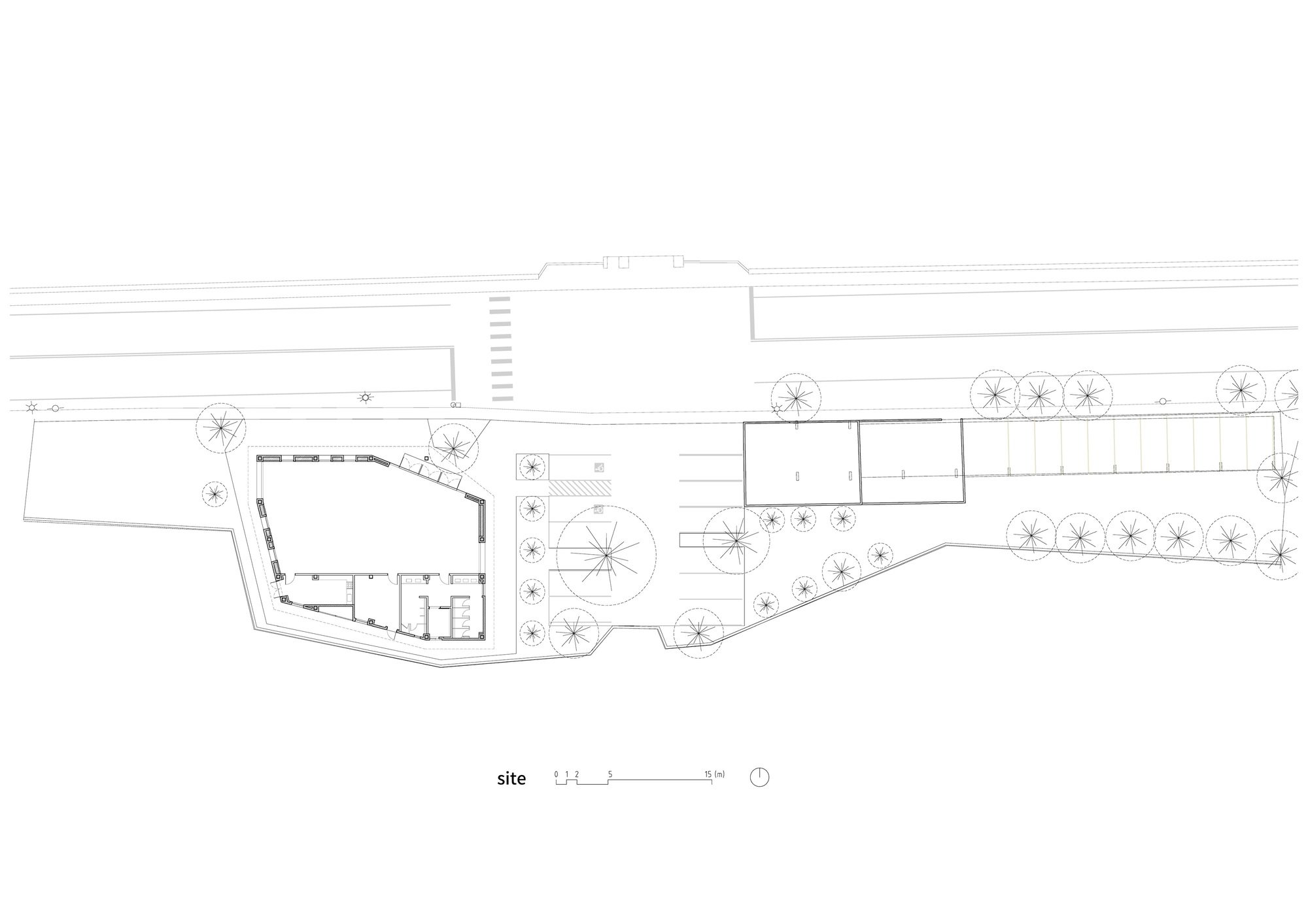
As people approach the site along the uphill country road, they first see the row of mango trees, followed by the building itself. The site does not have extra space to fully express the building’s volume, so the sloped roof allows the building’s sides to blend into the trees and fit a human scale. In rural areas, it is common for buildings to be squeezed into irregular plots, resulting in polygonal shapes. The eave heights change slightly along the edges according to the plot boundaries. This creates the formal dynamic of the project.
Because of site limitations, the main entrance is positioned off-center, creating a slight turn in the circulation and facing the school gate to welcome students. Entering through a low 2.5-meter porch, the space opens into a large space with a 7.5-meter-high ceiling. Skylights reflect light onto a silver metal ceiling, and two large windows frame views of gardens and trees on both sides. Service spaces are located at the back and also also benefit from skylight illumination.
We intentionally highlight the site constraints to make the building look as if it naturally grew from the land, creating a sense of familiarity tied to people’s perception, body, and memory. At the same time, the building carries a sense of monumentality, aiming to establish its presence in the streetscape. The abstracted form and muted colors reduce the visual impact of materials, making the building feel quiet. All the windows are deeply recessed, with clerestory windows running along the high edges beneath the roof, creating a calm, almost spiritual atmosphere.
Through the balance of monumentality and intimacy, the building aims to help form a shared memory for future generations. Even if future urban development changes the surrounding environment, this small building, with its simple form under a typical roof, may continue to provide a lasting and recognizable presence in the evolving city.
Project Info
Architects: Office Archipel
Country: Taiwan, Kaohsiung City
Area: 335 m²
Year: 2025
Photographs: Studio Millspace
Design Team: Charlin Yang



























Isabelle Laurent is a Built Projects Editor at Arch2O, recognized for her editorial insight and passion for contemporary architecture. She holds a Master’s in Architectural Theory from École Nationale Supérieure d’Architecture de Paris-Belleville. Before joining Arch2O in 2016, she worked in a Paris-based architectural office and taught as a faculty adjunct at the École Spéciale d’Architecture in Paris. Isabelle focuses on curating projects around sustainability, adaptive reuse, and urban resilience. With a background in design and communication, she brings clarity to complex ideas and plays a key role in shaping Arch2O’s editorial





